EasyManua.ls Logo

Sharp WH-237DP - Wiring Diagram

Sharp WH-237DP
21 pages
Print Icon
To Next Page IconTo Next Page
To Next Page IconTo Next Page
To Previous Page IconTo Previous Page
To Previous Page IconTo Previous Page
Loading...
1.6. If the control lamp is orange means that the water temperature is automatically controlled.
Illuminated : The water temperature will be controlled at the preset level.
Flash : Water ows too much and the warm water temperature is out of control.
If the incoming water temperature upward then press the temperature button and the control
lamp will illuminate.
1.7. If the control lamp ash, the water volume knob should be reduced by turning the water volume
knob counterclockwise until the lamp stops ashing. (If the incoming water ows too much and
the warm water temperature is out of control then the control lamp will ash).
1.8. Bath a cold water by pressing the temperature button until the temperature is lower then 32
o
C.
The indicator will display OF and ashes 3 times. Press the temperature button again when
OF is ashing and OF (off) will stop ashing and the (orange) lamp will also be off.
5
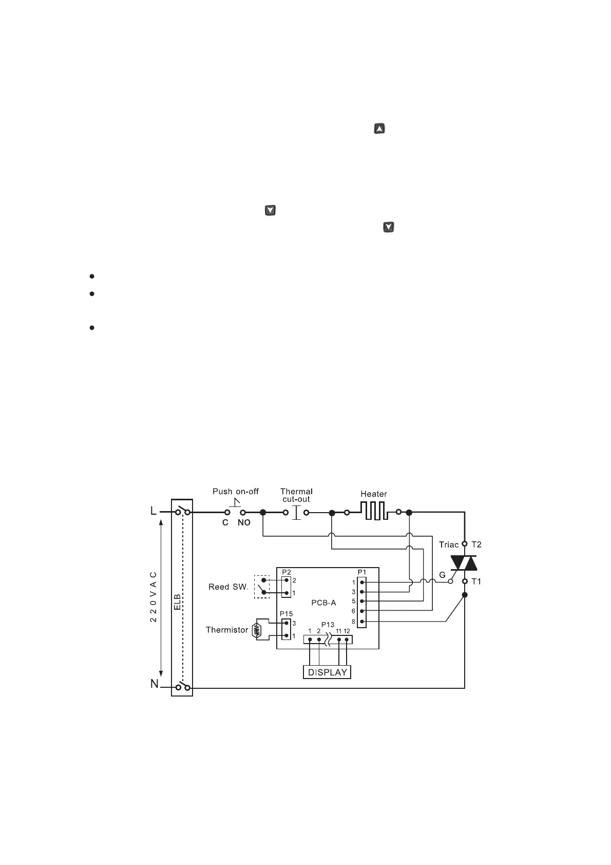
WIRING DIAGRAM
2. Using the water volume knob.
Turn the button clockwise to increase water volume knob.
Turn the button counterclockwise to decrease volume.
3. Using the Power SW. button.
Press the button and the ELB lamp indicator will illuminate and water will ow from the shower
head, press the button again to turn off the heater.

Related product manuals