EasyManua.ls Logo

Siemens FDCIO223

Siemens FDCIO223
8 pages
To Next Page IconTo Next Page
To Next Page IconTo Next Page
To Previous Page IconTo Previous Page
To Previous Page IconTo Previous Page
Loading...
2
Building Technologies 009124_d_--_--
Fire Safety & Security Products 12.2009
24 V
0 V
0 V
3 V
RL = 30 ... 3k3
I/O
FDCIO223
+
2 AT
10 V
0 V
3k3
I/O
FDCIO223
24 V
0 V
+
2 AT
Fig. 9 Fig. 10
Fig. 11
en Legend es Leyenda
Fig. 6 Detector line Fig. 6 Línea de detectores
Fig. 7 Detector line with safety barrier (Ex Zone 1+2) Fig. 7 Línea de detectores con barrera de seguridad (zona Ex
1+2)
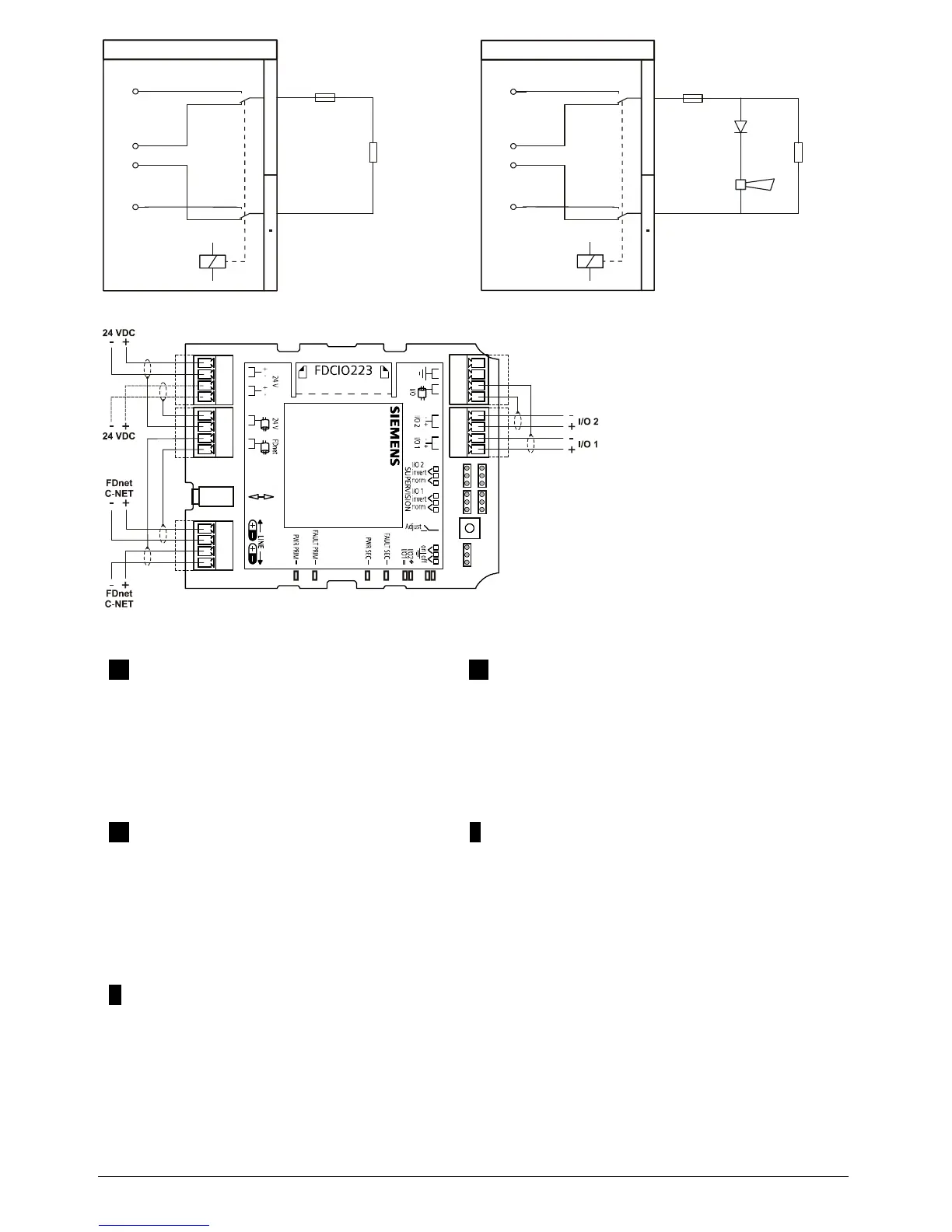
Fig. 8 Contact inputs
1 … 3 = monitoring for short-circuit and open line
4 = monitoring for open line
Fig. 8 Entradas de contacto:
1 … 3 = Monitorización en cuanto a cortocircuito y circuito
abierto
4 = Monitorización en cuanto a circuito abierto
Fig. 9 Control output with equality polarity monitoring Fig. 9 Línea de mando con monitorización de la misma polaridad
Fig. 10 Control output with reversed polarity monitoring Fig. 10 Línea de mando con monitorización de polaridad inversa
de Legende it Leggenda
Fig. 6 Melderlinie Fig. 6 Linea di rivelatori
Fig. 7 Melderlinie mit Sicherheitsbarriere (Ex-Zone 1+2) Fig. 7 Linea di rivelatori con barriera di sicurezza (zona Ex 1+2)
Fig. 8 Kontakteingänge:
1 … 3 = Überwachung auf Kurzschluss und Unterbruch
4 = Überwachung auf Unterbruch
Fig. 8 Ingressi contatti:
1 … 3 = monitoraggio per cortocircuiti e interruzioni
4 = monitoraggio per interruzione
Fig. 9 Steuerlinie mit gleichgepolter Überwachung Fig. 9 Linea di pilotaggio con monitoraggio dotato di polarità
uguale
Fig. 10 Steuerlinie mit gegenpoliger Überwachung Fig. 10 Linea di pilotaggio con monitoraggio dotato di polarità
opposta
fr Légende
Fig. 6 Ligne de détection
Fig. 7 Ligne de détection avec barrière à sécurité intrinsèque
(zone Ex 1+2)
Fig. 8 Entrées de contact :
1 à 3 = contrôle de court-circuit et d'interruption
4 = contrôle d'interruption
Fig. 9 Ligne de commande avec surveillance homopolaire
Fig. 10 Ligne de commande avec surveillance de pôles
opposés

Other manuals for Siemens FDCIO223

Related product manuals