EasyManua.ls Logo

Siemens LOGO! 230RC - Stairwell Light Switch

Siemens LOGO! 230RC
236 pages
To Next Page IconTo Next Page
To Next Page IconTo Next Page
To Previous Page IconTo Previous Page
To Previous Page IconTo Previous Page
Loading...
LOGO! Manual
A5E00067781 01
122
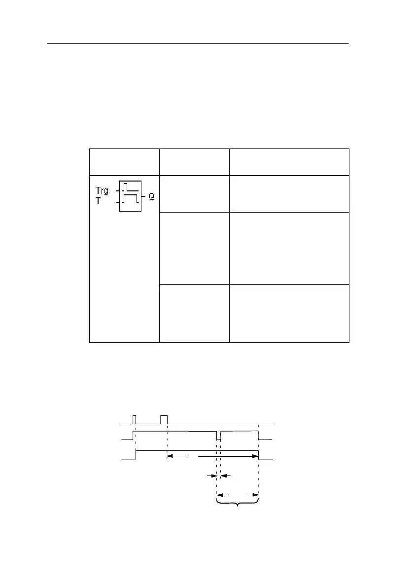
4.4.19 Stairwell Light Switch
Brief description
Following an input pulse (edge-controlled), a parameteriz-
able timed period starts. The output is reset when the de-
fined period has elapsed. 15 s before the time has elapsed,
an off warning is issued.
Symbol in
LOGO!
Connection Description
Input Trg Use the Trg (trigger) input to
start the time for the stair-
well light switch (off delay).
Parameter T T is the time after which the
output is switched off (out-
put state changes from 1
to 0).
Minutes are set as the de-
fault time base.
Output Q Q is switched off when the
time T has elapsed. 15 s be-
fore the time has elapsed,
the output switches to 0 for
1 s.
Parameter T
Please refer to the note in Section 4.3.2 when specifying
the values.
Timing diagram
15s
T
a
starts
T
1s
Q
Trg
Warning time
Warning duration
LOGO! Functions

Table of Contents

Related product manuals