EasyManua.ls Logo

Siemens SCALANCE X308-2M - Page 295

Siemens SCALANCE X308-2M
314 pages
To Next Page IconTo Next Page
To Next Page IconTo Next Page
To Previous Page IconTo Previous Page
To Previous Page IconTo Previous Page
Loading...
Graphics
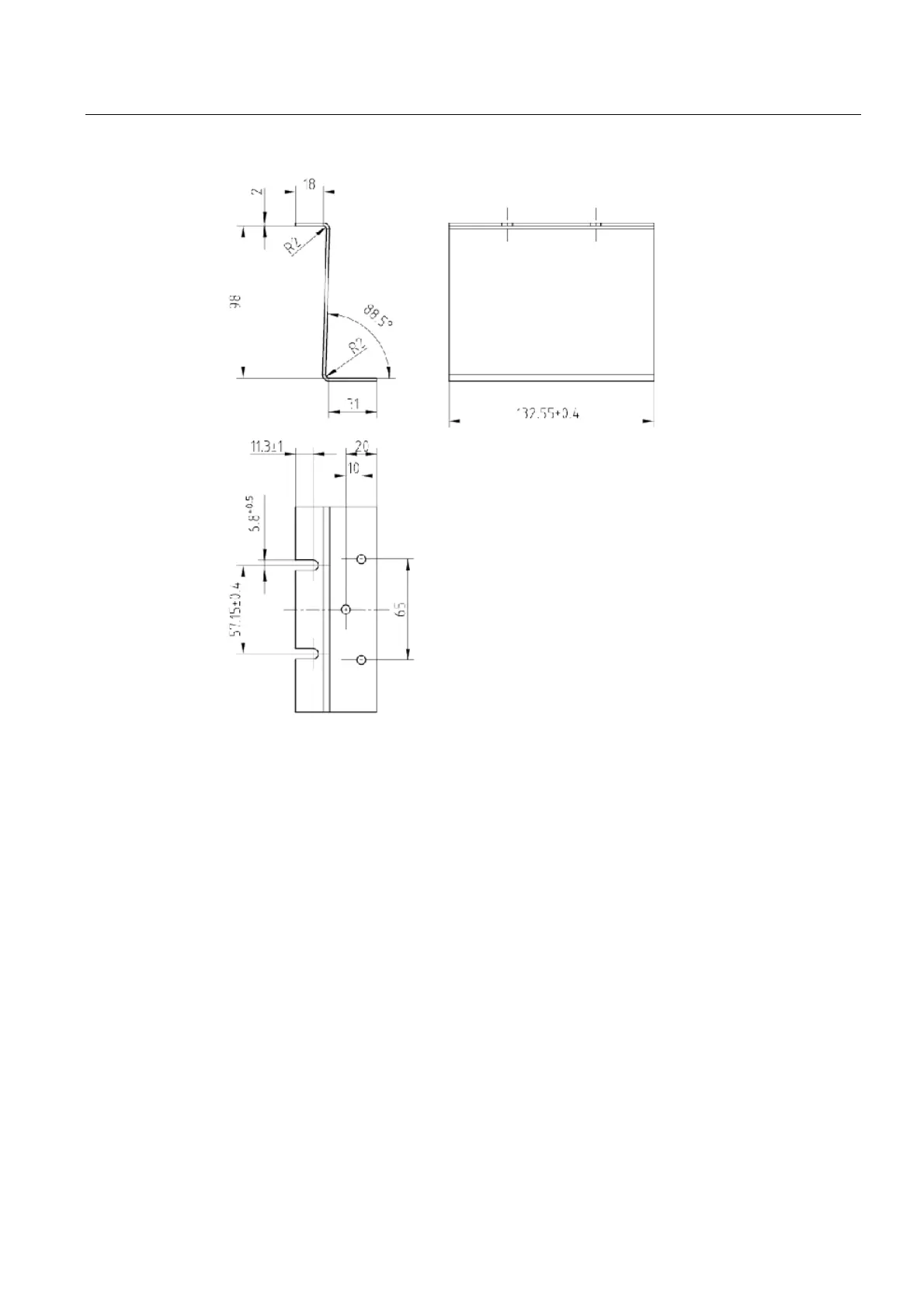
11.5 XR-300M EEC dimension drawings
SCALANCE X-300
Operating Instructions, 02/2012, A5E01113043-12
295
Figure 11-20 Side part of mounting support for X-300EEC (dimensions in mm)
Material: Plate 2.0 DIN EN10152 DC01+ZE25/25

Table of Contents

Related product manuals