EasyManua.ls Logo

Siemens SGIM-3258C

Siemens SGIM-3258C
52 pages
To Next Page IconTo Next Page
To Next Page IconTo Next Page
To Previous Page IconTo Previous Page
To Previous Page IconTo Previous Page
Loading...
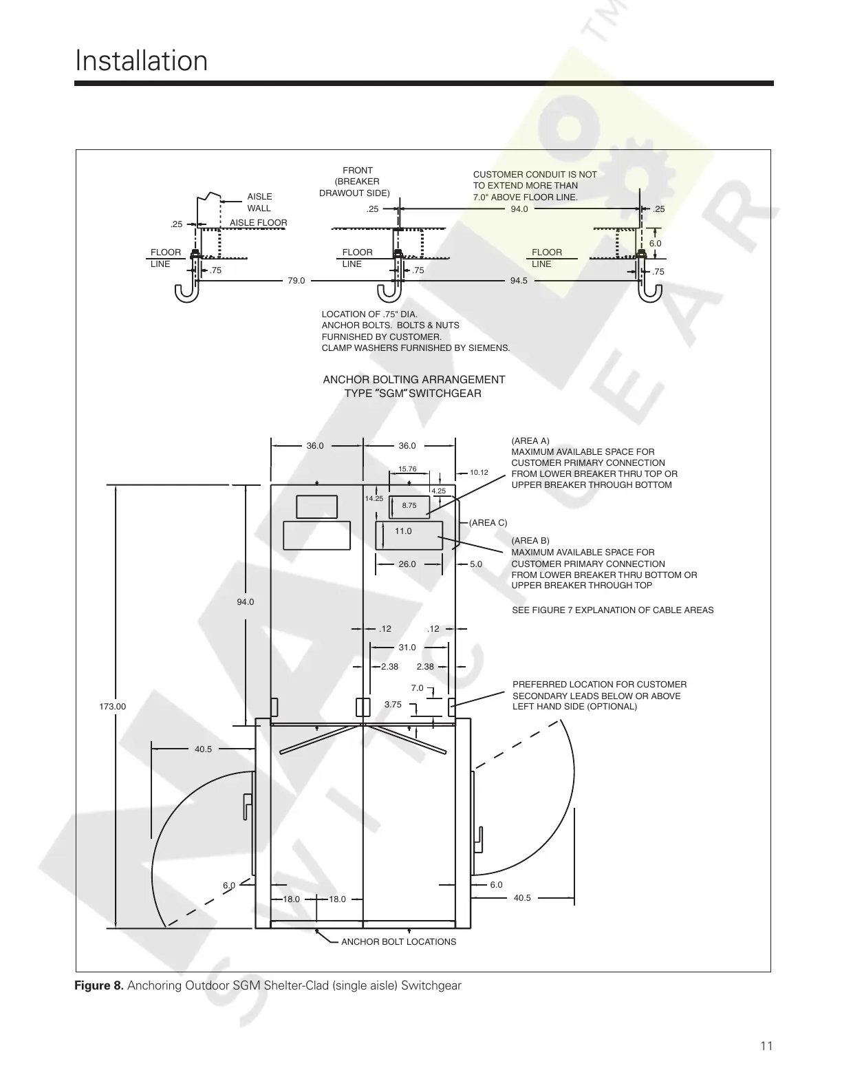
Figure 8. Anchoring Outdoor SGM Shelter-Clad (single aisle) Switchgear
UPPER BREAKER THROUGH TOP
UPPER BREAKER THROUGH BOTTOM
173.00
(AREA C)
(AREA A)
(AREA B)
SEE FIGURE 7 EXPLANATION OF CABLE AREAS
36.0 36.0
94.0
6.0
40.5
18.0
ANCHOR BOLT LOCATIONS
18.0
2.38
31.0
.12 .12
2.38
3.75
7.0
40.5
6.0
.25
.75
.75
6.0
.2594.0
94.579.0
.75
.25
14.25
11.0
26.0 5.0
15.76
4.25
8.75
10.12
MAXIMUM AVAILABLE SPACE FOR
CUSTOMER PRIMARY CONNECTION
FROM LOWER BREAKER THRU BOTTOM OR
FROM LOWER BREAKER THRU TOP OR
CUSTOMER PRIMARY CONNECTION
MAXIMUM AVAILABLE SPACE FOR
SECONDARY LEADS BELOW OR ABOVE
PREFERRED LOCATION FOR CUSTOMER
LEFT HAND SIDE (OPTIONAL)
FLOOR
LINE
DRAWOUT SIDE)
AISLE
WALL
FLOOR
LINE
AISLE FLOOR
FLOOR
LINE
FRONT
(BREAKER
LOCATION OF .75" DIA.
ANCHOR BOLTS. BOLTS & NUTS
FURNISHED BY CUSTOMER.
CLAMP WASHERS FURNISHED BY SIEMENS.
ANCHOR BOLTING ARRANGEMENT
TYPE `SGM' SWITCHGEAR
TO EXTEND MORE THAN
7.0" ABOVE FLOOR LINE.
CUSTOMER CONDUIT IS NOT
Installation
11
Courtesy of NationalSwitchgear.com

Table of Contents

Related product manuals