EasyManua.ls Logo

Siemens SIRIUS 3RW3003 - Page 4

Siemens SIRIUS 3RW3003
8 pages
Print Icon
To Next Page IconTo Next Page
To Next Page IconTo Next Page
To Previous Page IconTo Previous Page
To Previous Page IconTo Previous Page
Loading...
4 Bestell-Nr. / Order No.: 3ZX1012-0RW30-2AA1
ACHTUNG ATTENTION IMPORTANT ATENCIÓN
Der Sanftstarter 3RW3...-1..1.
wurde als Gerät der Klasse B
gebaut.
The Soft Starter 3RW3...-1..1. has
been designed for class B equip-
ment.
Le démarreur progressif 3RW3...-
1..1. est conçu en tant qu’appareil
de classe B.
El arrancador suave 3RW3...-1..1.
ha sido diseñado para equipos de
clase B.
ATTENZIONE ATENÇÃO DİKKAT ВНИМАНИЕ
L'avviatore dolce 3RW3...-1..1. è
stato costruito come apparecchio
della classe B.
A chave de partida suave 3RW3...-
1..1. foi construída em forma de
dispositivo da classe B.
Yumusak yol verici 3RW3...-1..1. ,
B sinifi cihaz olarak üretilmistir.
Устройство плавного пуска
3RW3...-1..1. было
сконструировано как устройство
класса В.
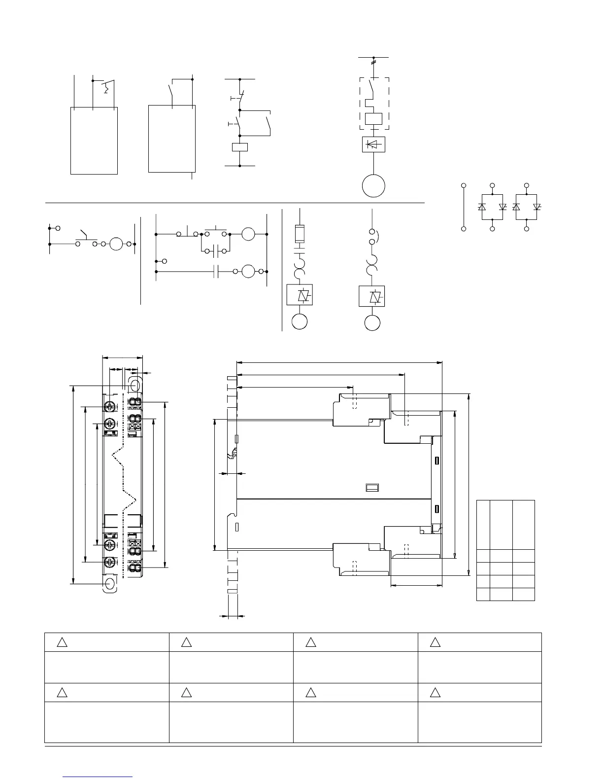
A2
A1
1
ON/OFF
A1
IN1
K1
K1
K1
ON
OFF
3RW3003
3RV
I >
A2
M
3 ~
N (L-)
L1 (L+)
L1(L+)N (L-)
1FU
1O
1M
2M
M
3
k
1CB
1OL
M
3
k
1M
Run
1
1M
A2
A1
Off
2M
13
14
A1
Stop
Start
1
2M
1M
A2
2M
1
)
L1 L2 L3
T1 T2 T3
3RW3003
1
)
3RW3003
1
)
1
)
3RW3003-1...
3RW3003-2...
a94
b65
c 82,6 84,4
d 101,6 103,4
73,5
5
a
b
28,8
c
d
115
6
22,5
7,2
87,2
68,2
110,5 x 15
2,5
7,2
75,1
94,1
!
!
!
!
!
!
!
!

Related product manuals