EasyManua.ls Logo

Siemens SIRIUS Series - Installation and Physical Specifications; Device Dimensions and Mounting Clearances; Cooling and Ventilation Requirements

Siemens SIRIUS Series
18 pages
Print Icon
To Next Page IconTo Next Page
To Next Page IconTo Next Page
To Previous Page IconTo Previous Page
To Previous Page IconTo Previous Page
Loading...
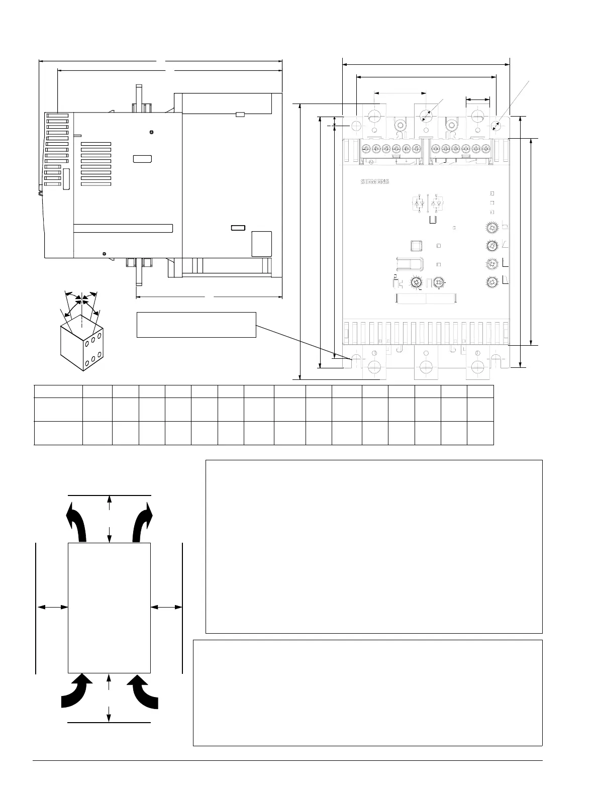
10 3ZX1012-0RW40-1AA1
mm (inch)
a bcdef g h i k lmnop
3RW40 5 180
(7.09)
120
(4.72)
37
(1.46)
17
(0.67)
167
(6.57)
100
(3.94)
223
(8.7)
250
(9.84)
180
(7.09)
148
(5.82)
6,5
(0.25)
153
(6.02)
7
(0.28)
198
(7.80)
9
(0.35)
3RW40 7 210
(8.27)
160
(6.30)
48
(1.89)
25
(0.98)
190
(7.48)
140
(5.51)
240
(9.36)
278
(10.94)
205
(8.07)
166
(6.54)
10
(0.39)
166
(6.54)
9
(0.35)
230
(9.06)
11
(0.43)
3RW4056_mit_bem.dsf
RESET MODE
OVERLOAD
DEVICE
5
10
CLASS
0
20s
U = 200...460V
e
e
xI
3RW4056- 6AB44
STATE/BYPASSED
40 100%
4T2
OVERL OAD/
FAI LURE
d. c. / c. d.
24 V
max.
123 23
e
I
0
t
U
t
I
RESET/TEST
+ -
A1 A2
SI RI US
1L1
5L3
2T1
6T3
3L2
FAILURE
1.3
5
G/031212 *E01*
20
OFF
15
AUTO
MAN
ON/
RUN
162A
87
102
137
122
10
5
10
20s
3.1
95
96
98
NONC
BYPASSED
IN
NO
13 14/24
230 V
50/60 Hz
NO
b
f
c
d
n
o
a
e
l
i
k
p
h
g
m
seitenansicht3RW405.dsf
22,5°
22,5°
90°
90°
3RW40 5: 6 ... 10 Nm / 89 lb·in
3RW40 7: 8 ... 15 Nm / 134 lb·in
1
1
3
5
2
4
6
5mm
[0.2 in]
ACHTUNG
Ausreichend Freiraum lassen, damit genug Luft für Kühlung zirkulieren kann. Das Gerät wird von unten nach
oben belüftet.
NOTICE
Leave sufficient free space to ensure that the air required for cooling purposes can circulate from the bottom
to the top of the unit.
IMPORTANT
Respecter un espace libre suffisant pour assurer la circulation de l’air nécessaire au refroidissement, qui se
fait par ventilation du bas vers le haut.
ATENCIÓN
Deje espacio libre suficiente para garantizar la circulación del aire necesario para el enfriamiento, que se
realiza por ventilación de abajo hacia arriba.
ATTENZIONE
Lasciare abbastanza spazio libero, per consentire una circolazione sufficiente di aria di raffreddamento.
L'apparecchio viene ventilato dal basso verso l'alto.
ATENÇÃO
Deixe bastante espaço livre, para que possa circular ar suficiente para a refrigeração. O equipamento é ven-
tilado de baixo para cima.
5mm
[0.2 in]
100 mm
[4in]
75 mm
[3in]
Darauf achten, dass keine Flüssigkeit, kein Staub oder leitender Gegenstand in den Sanftstarter gelangt.
Check that no liquids, dust or conductive objects can get into the soft starter.
Veiller à ce que des liquides, de la poussière ou des objets conducteurs ne s'infiltrent pas dans le démarreur pro-
gressif.
Preste atención que no pueda ingresar líquido, polvo o algún objeto conductor al interior del arrancador suave.
Fare attenzione che né del liquido, né della polvere oppure un oggetto conduttore finiscano nello avviatore dolce.
Tenha em atenção que o arrancador suave não entre em contacto com líquidos, pó ou objectos condutores.

Other manuals for Siemens SIRIUS Series

Related product manuals