EasyManua.ls Logo

SIMAG SPN 255 AS - SPN 405 Machine Specifications

Default Icon
42 pages
Print Icon
To Next Page IconTo Next Page
To Next Page IconTo Next Page
To Previous Page IconTo Previous Page
To Previous Page IconTo Previous Page
Loading...
SPECIFICATIONS
Start Electric power cons.
Amps Kwh per 24 HR
Water req.
lt/24 HR
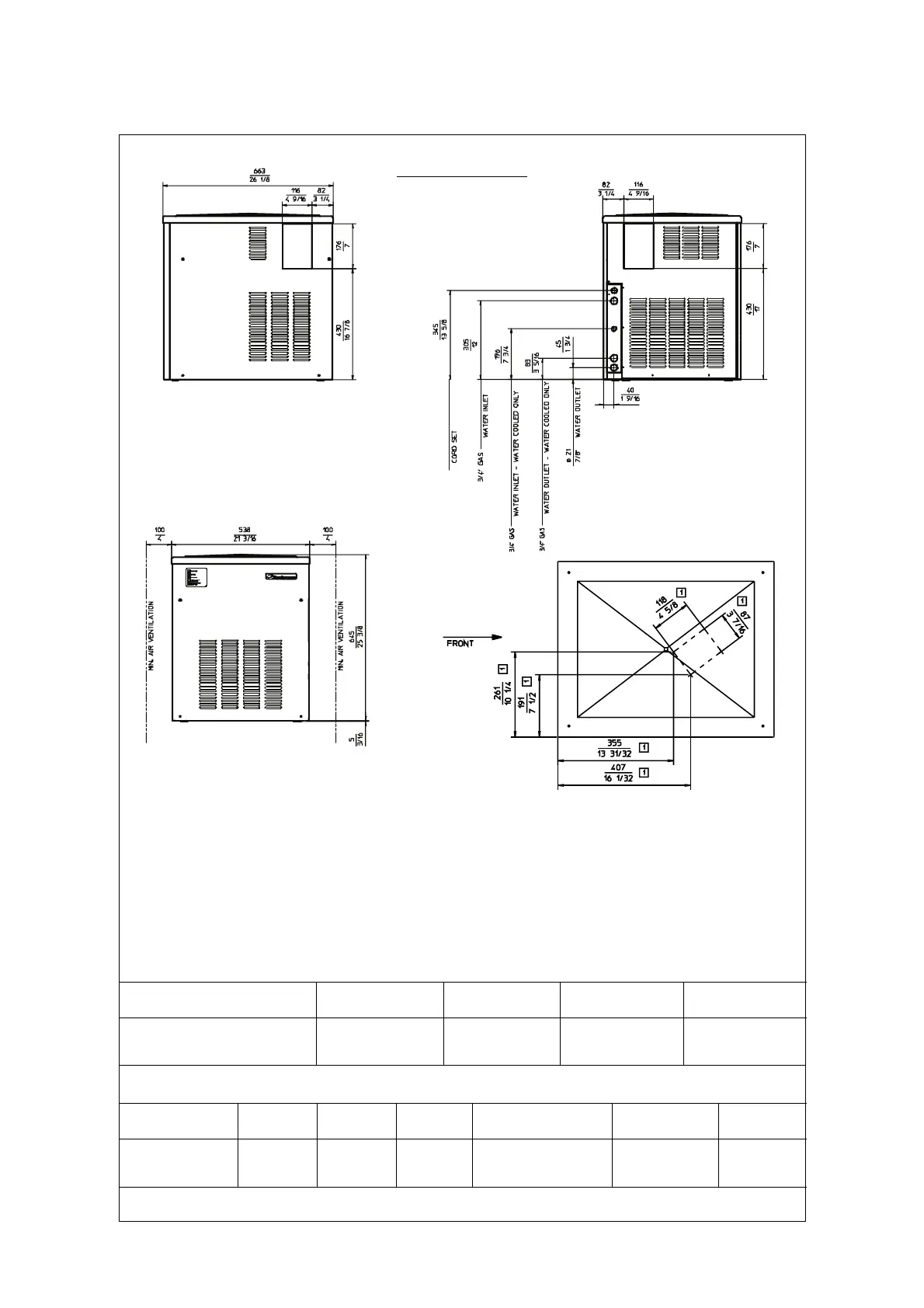
SPN 405 - MACHINE SPECIFICATIONS
Dimensions:
HEIGHT (less legs) 645 mm.
HEIGHT (with legs) 650 mm.
WIDTH 535 mm.
DEPTH 660 mm.
WEIGHT 77 Kg.
Model
Finish
Cond. unit
Comp. HP
* A 15°C water temperature
SPN 405 AS Air 320*
SPN 405 WS Water 1800*
S. Steel 1
Basic electr. Amps Watts Nr. of wires Amps fuse
230/50/1 5.2 29 1200 26 3 x 1.5 mm 16
2
Page 7

Related product manuals