EasyManua.ls Logo

Sime Brava One 25 BF - Circuit Hydraulique Principal; Sondes; Vase Dexpansion

Sime Brava One 25 BF
Print Icon
To Next Page IconTo Next Page
To Next Page IconTo Next Page
To Previous Page IconTo Previous Page
To Previous Page IconTo Previous Page
Loading...
15
FR
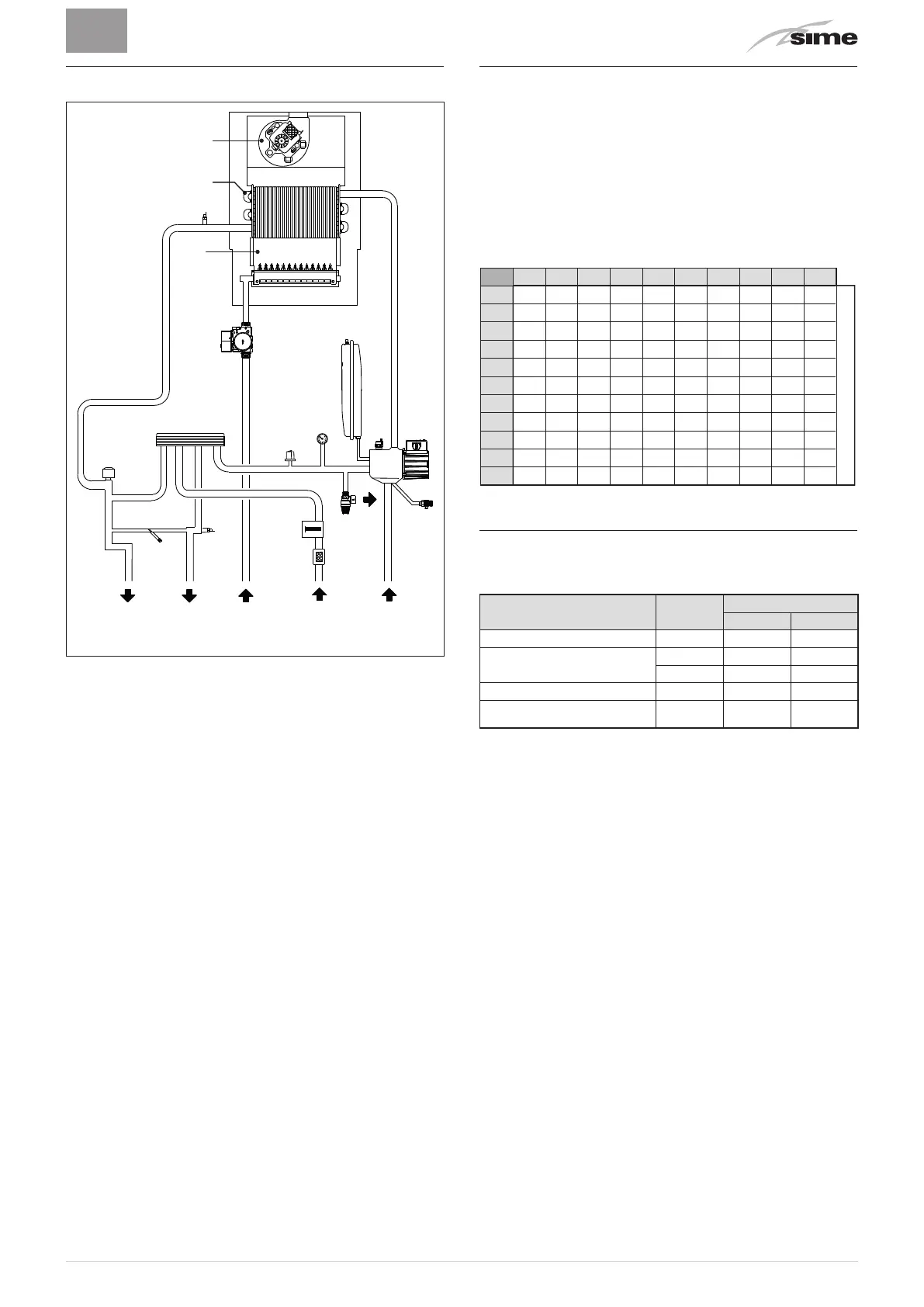
5.6 Circuit hydraulique principal
1
4
5
3
6
8
16
109
15
18
17
12
11
14
S
13
7
M U G E R
2
Fig. 12
LÉGENDE :
M Refoulement de l'installation
R Retour de l'installation
U Sortie d'eau sanitaire
E Entrée eau sanitaire
S Décharge de la soupape de sécurité
G Alimentation du gaz
1
Ventilateur
2
Échangeur (mono-thermique)
3
Sonde double (refoulement/sécurité thermique)
4
Chambre de combustion
5
Vanne de gaz
6
Échangeur d'eau sanitaire
7
Sonde du circuit sanitaire
8
Vanne de déviation
9
Purgeur automatique
10
Pompe
11
Débitmètre du circuit sanitaire
12
Filtre de l'eau sanitaire
13
Chargement de l'installation
14
Soupape de sécurité de l'installation
15
Pressostat eau
16
Évacuation de la chaudière
17
Vase d'expansion de l'installation
18
Manomètre eau
5.7 Sondes
Les sondes installées ont les caractéristiques suivantes :
sonde double (refoulement/sécurité thermique) NTC R25° C;
10kΩ β25°-85°C: 3435
sonde du circuit sanitaire NTC R25°C; 10kΩ β25°-85°C: 3435
sonde externe NTC R25°C; 10kΩ β25°-85°C: 3435
Correspondance Température Relevée/Résistance
Exemples de lecture :
TR=75°C → R=1925Ω
TR=80°C → R=1669Ω.
TR
0°C 1°C 2°C 3°C 4°C 5°C 6°C 7°C 8°C 9°C
Résistance R (
Ω)
0°C
27279
17959
12090
8313
5828
4161
3021
2229
1669
1266
973
26135
17245
11634
8016
5630
4026
2928
2164
1622
1232
25044
16563
11199
7731
5440
3897
2839
2101
1577
1199
24004
15912
10781
7458
5258
3773
2753
2040
1534
1168
23014
15289
10382
7196
5082
3653
2669
1982
1491
1137
22069
14694
9999
6944
4913
3538
2589
1925
1451
1108
21168
14126
9633
6702
4751
3426
2512
1870
1411
1079
20309
13582
9281
6470
4595
3319
2437
1817
1373
1051
19489
13062
8945
6247
4444
3216
2365
1766
1336
1024
18706
12565
8622
6033
4300
3116
2296
1717
1300
998
10°C
20°C
30°C
40°C
50°C
60°C
70°C
80°C
90°C
100°C
5.8 Vase d'expansion
Le vase d'expansion installé sur les chaudières a les
caractéristiques suivantes :
Description U/M
Brava One BF
25 30
Capacité totale l 8,0 9,0
Pression de gonflage
kPa 100 100
bar 1,0 1,0
Capacité utile l 4,0 5,0
Contenu maximum de
l'installation (*)
l 109 124
(*) Conditions de :
Température moyenne maximale de l'installation 85°C
Température initiale lors du remplissage de l'installation
10°C.
m
AVERTISSEMENTS
Pour des installations ayant une contenance d'eau
supérieure au contenu maximum de l'installation
(indiqué dans le tableau), il est nécessaire de prévoir
un vase d'expansion supplémentaire.
La différence de hauteur entre la soupape de sécurité
et le point le plus haut de l'installation peut être
de 6 mètres au maximum. Pour des différences
supérieures, augmentez la pression de gonflage du
vase d'expansion et de l'installation à froid, de 0,1 bar
pour chaque mètre supplémentaire.

Table of Contents

Other manuals for Sime Brava One 25 BF

Related product manuals