EasyManua.ls Logo

Sime Brava One 25 BF - Main Water Circuit; Sensors; Expansion Vessel

Sime Brava One 25 BF
Print Icon
To Next Page IconTo Next Page
To Next Page IconTo Next Page
To Previous Page IconTo Previous Page
To Previous Page IconTo Previous Page
Loading...
55
EN
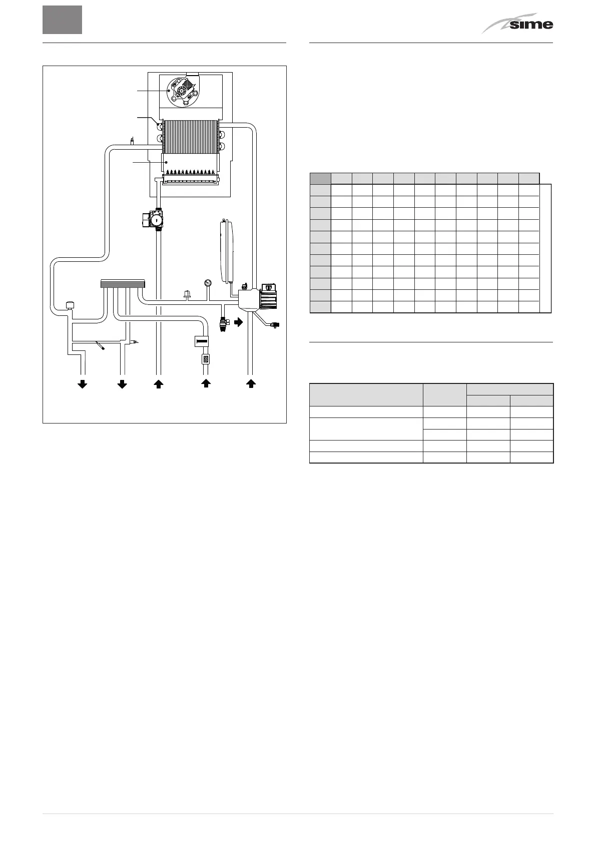
5.6 Main water circuit
1
4
5
3
6
8
16
109
15
18
17
12
11
14
S
13
7
M U G E R
2
Fig. 12
KEY:
M System delivery
R System return
U Domestic hot water outlet
E Domesti hot water inlet
S Safety valve outlet
G Gas supply
1
Fan
2
Heat exchanger (mono-thermal)
3
Dual sensor (thermal safety/delivery)
4
Combustion chamber
5
Gas valve
6
Domestic hot water heat exchanger
7
Domestic hot water sensor
8
Diverter valve
9
Automatic bleed valve
10
Pump
11
Domestic hot water flow meter
12
Domestic hot water filter
13
System filling
14
System relief valve
15
Water pressure switch
16
Boiler drain
17
System expansion vessel
18
Water pressure gauge
5.7 Sensors
The sensors installed have the following characteristics:
Dual sensor (thermal safety/output) NTC R25°C; 10kΩ β25°-
85°C: 3435
domestic hot water sensor NTC R25°C; 10kΩ β25°-85°C: 3435
external sensor NTC R25°C; 10kΩ β25°-85°C: 3435
Correspondence of Temperature Detected/Resistance
Examples of reading:
TR=75°C → R=1925Ω
TR=80°C → R=1669Ω.
TR
0°C 1°C 2°C 3°C 4°C 5°C 6°C 7°C 8°C 9°C
Resistance R (
Ω)
0°C
27279
17959
12090
8313
5828
4161
3021
2229
1669
1266
973
26135
17245
11634
8016
5630
4026
2928
2164
1622
1232
25044
16563
11199
7731
5440
3897
2839
2101
1577
1199
24004
15912
10781
7458
5258
3773
2753
2040
1534
1168
23014
15289
10382
7196
5082
3653
2669
1982
1491
1137
22069
14694
9999
6944
4913
3538
2589
1925
1451
1108
21168
14126
9633
6702
4751
3426
2512
1870
1411
1079
20309
13582
9281
6470
4595
3319
2437
1817
1373
1051
19489
13062
8945
6247
4444
3216
2365
1766
1336
1024
18706
12565
8622
6033
4300
3116
2296
1717
1300
998
10°C
20°C
30°C
40°C
50°C
60°C
70°C
80°C
90°C
100°C
5.8 Expansion vessel
The expansion vessel installed on the boilers has the following
characteristics:
Description U/M
Brava One BF
25 30
Total capacity l 8,0 9,0
Prefilling pressure
kPa 100 100
bar 1,0 1,0
Useful capacity l 4,0 5,0
Maximum system content (*) l 109 124
(*) Conditions of:
Average maximum temperature of the system 85°C
Start temperature at system filling 10°C.
m
CAUTION
For systems with water content exceeding the
maximum system content (as indicated in the
table) an additional expansion vessel must be
prearranged.
The difference in height between the relief valve
and the highest point of the system cannot exceed
6 metres. If the difference is greater than 6 metres,
increase the prefilling pressure of the expansion
vessel and the system when cold by 0.1 bar for each
meter increase.

Table of Contents

Other manuals for Sime Brava One 25 BF

Related product manuals