EasyManua.ls Logo

Sime Format Series - Page 13

Sime Format Series
Print Icon
To Next Page IconTo Next Page
To Next Page IconTo Next Page
To Previous Page IconTo Previous Page
To Previous Page IconTo Previous Page
Loading...
11
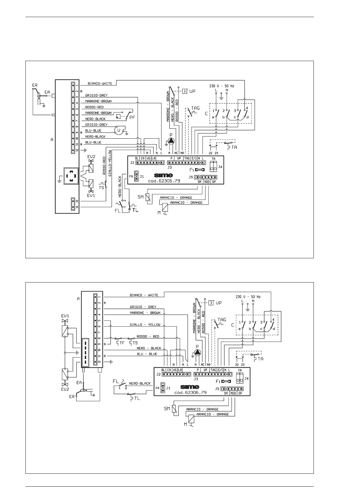
2.12.4 Schema elettrico “25 BFTS - 30 BF TS” con apparecchiatura SIT
Fig. 20/a
LEGENDA
EV1 Bobina valvola gas
EV2 Bobina valvola gas
EA Elettrodo accensione
ER Elettrodo rivelazione
A Apparecchiatura SIT 503
TS Termostato sicurezza 100°C
PF Pressostato fumi
V Ventilatore
FL Flussostato
P Pompa
VP Valvola pressostatica
TAG Termostato antigelo (optional)
C Selettore OFF/EST./INV./SBLOCCO
TA Termostato ambiente
M Modulatore
SM Sonda riscaldamento
TL Termostato limite
Nota: Il termostato ambiente (TA) deve essere collegato ai morsetti 22-23
2.12.5 Schema elettrico “25 OF C - 30 OF C” con apparecchiatura HONEYWELL
Fig. 20/b
LEGENDA
EV1 Bobina valvola gas
EV2 Bobina valvola gas
EA Elettrodo accensione
ER Elettrodo rivelazione
A App. HONEYWELL S4565CF
TS Termostato sicurezza 100°C
TF Termostato fumi
FL Flussostato
P Pompa
VP Valvola pressostatica
TAG Termostato antigelo (optional)
C Selettore OFF/EST./INV./SBLOCCO
TA Termostato ambiente
M Modulatore
SM Sonda riscaldamento
TL Termostato limite
Nota: Il termostato ambiente (TA) deve
essere collegato ai morsetti 22-23
CODICI RICAMBI CONNETTORI:
J1 cod. 6260966
J2 cod. 6260960
J3 cod. 6260968
J5 cod. 6260957
CODICI RICAMBI
CONNETTORI:
J1 cod. 6260956
J2 cod. 6260961
J3 cod. 6260968
J5 cod. 6260964

Related product manuals