EasyManua.ls Logo

Sime RX 48 - 1 Technical Features and Dimensions; Boiler Description

Sime RX 48
16 pages
Print Icon
To Next Page IconTo Next Page
To Next Page IconTo Next Page
To Previous Page IconTo Previous Page
To Previous Page IconTo Previous Page
Loading...
1.1 BOILER DESCRIPTION
The new series of “RX” gas-fired heating boilers has
been designed and manufactured to ensure maximum
user-friendliness and to ease both the installation and the
maintenance operations for the installer.
They are equipped with all safety and control devices
required by the law and their technical and operating
specifications meet the requirements of the specifica-
tions on the safety and use of combustible gas.
Moreover they have been designed and manufactured in
compliance with European Directive EN 297.
They can be fuelled with natural gas or L.P.G. Should a
gas other than that for which the boiler is equipped be
used, the conversion will be carried out directly by the
authorized engineer during the commissioning operation.
This manual contains the instructions for the following
boiler models:
“RX 19 ÷ 55 CE” with piezoelectric ignition;
“RX 19 ÷ 55 CE IONO” with electronic ignition and
flame ionization;
“RX 19 - 26 PVA CE” with pump, expansion vessel and
piezoelectric ignition;
“RX 19 - 26 PVA CE IONO” with pump, expansion ves-
sel, electronic ignition and flame ionization.
This manual contains all the instructions needed by the
installer for the correct installation and commissioning of
the equipment.
1
1 Technical features and dimensions
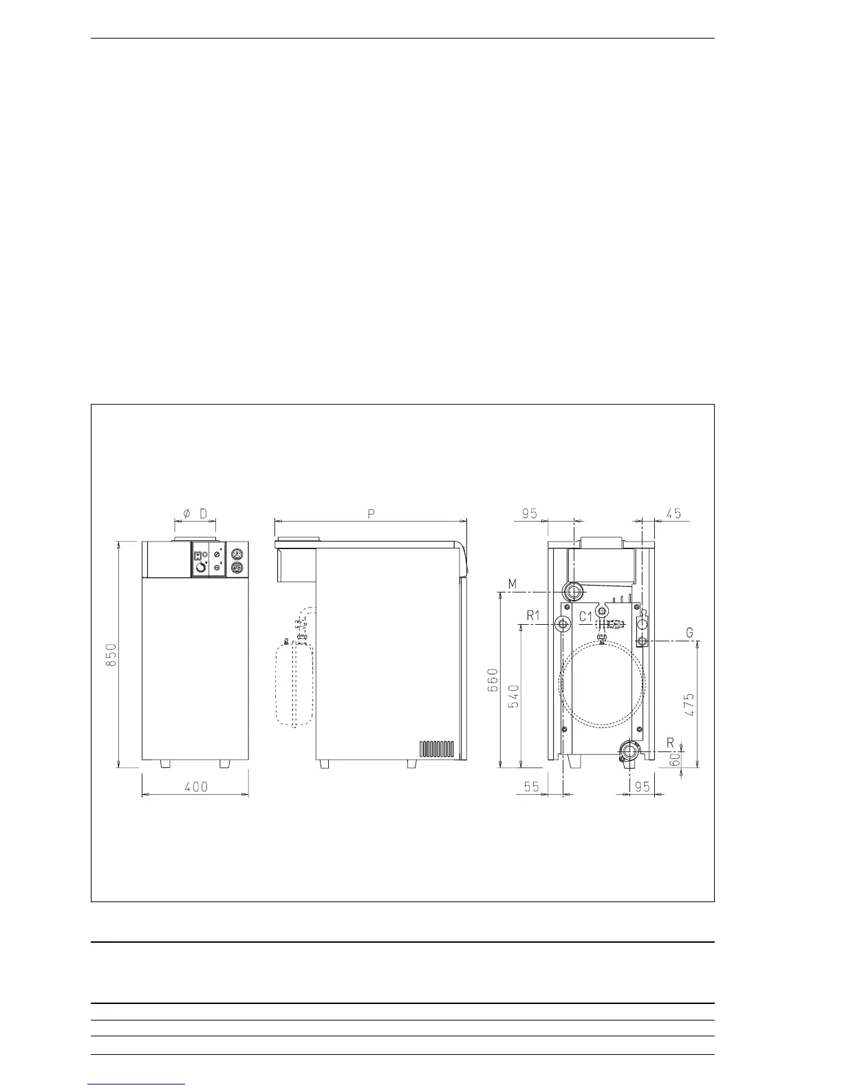
1.2 DIMENSIONAL DETAILS
1.2.1 “RX 19-26” dimensions
TABLE 1
Model Depth Flue C.H. C.H. return C.H. Gas Filling
socket flow with pump return connection connection
PDMR1RG C
mm Ø mm Ø Ø Ø Ø Ø
RX 19 595 130 1 1/2” 1” 1 1/2” 1/2” 1/2”
RX 26 720 150 1 1/2” 1” 1 1/2” 1/2” 1/2”
Fig. 1

Related product manuals