EasyManua.ls Logo

Skyjack 7127 - Page 76

Skyjack 7127
85 pages
Print Icon
To Next Page IconTo Next Page
To Next Page IconTo Next Page
To Previous Page IconTo Previous Page
To Previous Page IconTo Previous Page
Loading...
Mid Size & Full Size RT’s
Engine Powered February 2008
SKYJACK, Page 79
Labels Section 2 - Operation
No. Label Pictorial Description
8
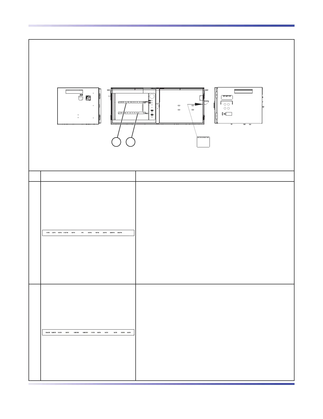
Relay Names - Lower (Model 71xx)*
Relay names for Model 71XX electrical panel (lower bank)
*Note: Relay names will vary with differing units
9
Relay Names - Upper (Model 71xx)*
Relay names for Model 71XX electrical panel (upper bank)
*Note: Relay names will vary with differing units
89
Electrical Panel and Hydraulic/Fuel Compartment (Continued)

Table of Contents

Related product manuals