EasyManua.ls Logo

Smeg SCV115A - Positioning and Levelling the Appliance; Electrical Connection; Overall Dimensions

Smeg SCV115A
16 pages
Print Icon
To Next Page IconTo Next Page
To Next Page IconTo Next Page
To Previous Page IconTo Previous Page
To Previous Page IconTo Previous Page
Loading...
Instructions for the Installer
24
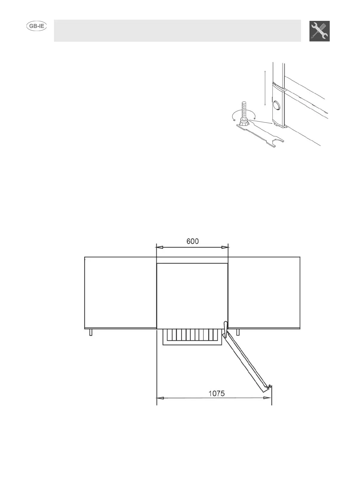
4.1 Positioning and levelling the appliance
Place the wine cellar on a firm, level surface. To compensate for
any unevenness in the floor, the appliance has 2 adjustable feet.
To adjust them, turn the screw as shown in figure 1 to level the
appliance.
4.2 Electrical connection
Before switching the wine cellar on for the first time, leave it standing upright for about two hours. Then
connect the appliance's power supply lead to a mains socket with earth contact, installed in accordance
with electrical safety regulations. The rated voltage and frequency are stated on the nameplate inside
the wine cellar. The appliance must be connected to the electrical mains and earthed in compliance with
the relevant regulations and requirements. The appliance is able to withstand brief voltage fluctuations of
not more than 15% below or 10% above the rated value. If the power supply lead has to be replaced, this
operation must only be carried out by an authorised Smeg technical service engineer.
4.3 Overall dimensions
The drawing below shows the appliance's maximum overall dimensions with the door open.

Related product manuals