EasyManua.ls Logo

Smeg UD515D - Overall Dimensions (Raised Models)

Smeg UD515D
39 pages
Print Icon
To Next Page IconTo Next Page
To Next Page IconTo Next Page
To Previous Page IconTo Previous Page
To Previous Page IconTo Previous Page
Loading...
11
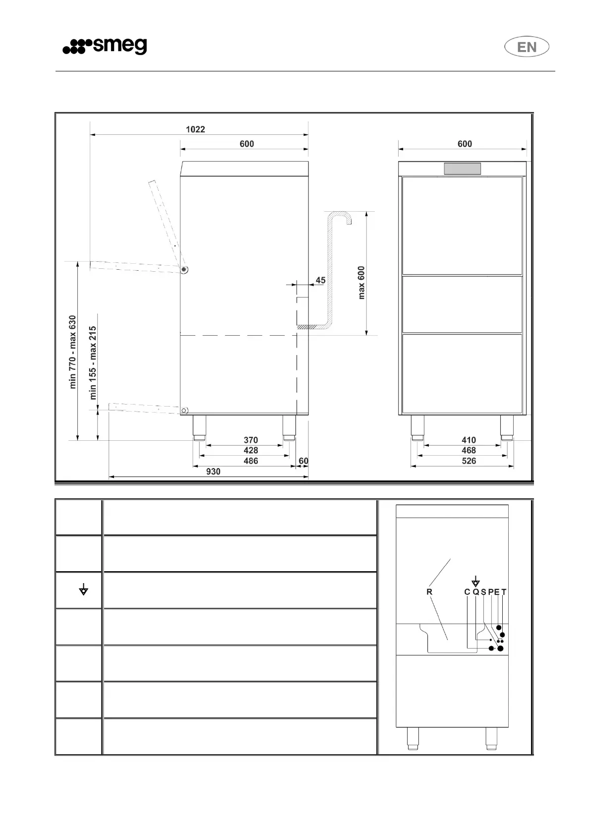
4.3 Overall dimensions (raised models)
R
LOWER BACK PANEL
C
FILLER HOSE
Q
EARTH TERMINAL
E
ELECTRICITY SUPPLY CABLE
P
PERISTALTIC HOSES
S
DRAIN HOSE
T
EXTERNAL DISPENSER POWER CABLE ENTRY POINT

Related product manuals