EasyManua.ls Logo

Snapper S150XK0H2348 - Electrical Schematic - Ignition Grounding Circuit; Operator Presence

Snapper S150XK0H2348
56 pages
Print Icon
To Next Page IconTo Next Page
To Next Page IconTo Next Page
To Previous Page IconTo Previous Page
To Previous Page IconTo Previous Page
Loading...
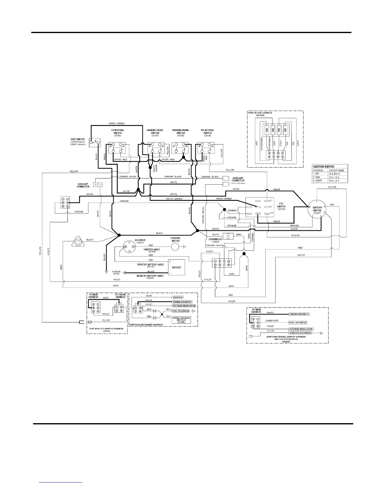
Electrical Schematic - Ignition Grounding Circuit / Operator Presence
331eswi0
The above parts group applies to the following Mfg. Nos.:
#Name
52
© Copyright Briggs and Stratton. All Rights Reserved.
5900665
5900686
5900696
5900697
TP 400-7331-F-M1-SP

Related product manuals