EasyManua.ls Logo

Snapper SPE361 - Section 8 - Electrical

Snapper SPE361
34 pages
Print Icon
To Next Page IconTo Next Page
To Next Page IconTo Next Page
To Previous Page IconTo Previous Page
To Previous Page IconTo Previous Page
Loading...
26
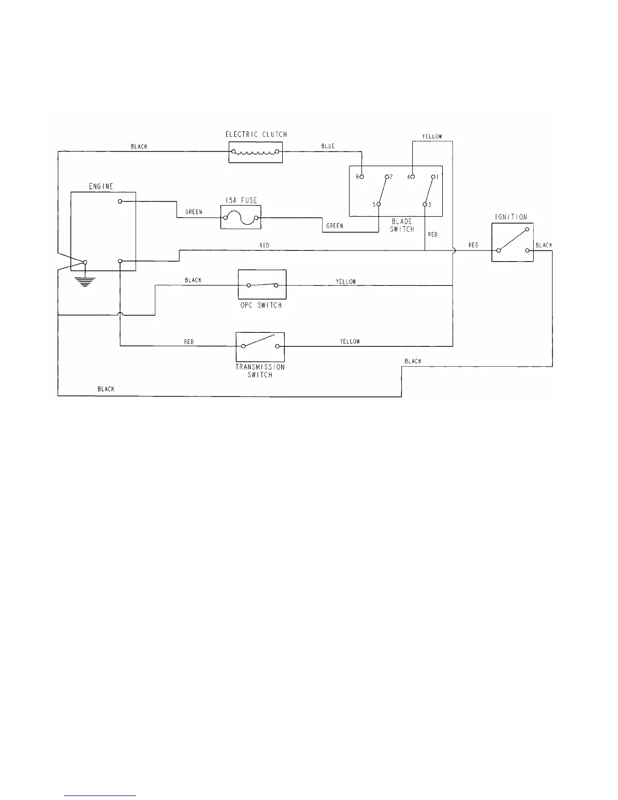
SECTION 8 - ELECTRICAL
FIGURE 8.1

Related product manuals