EasyManua.ls Logo

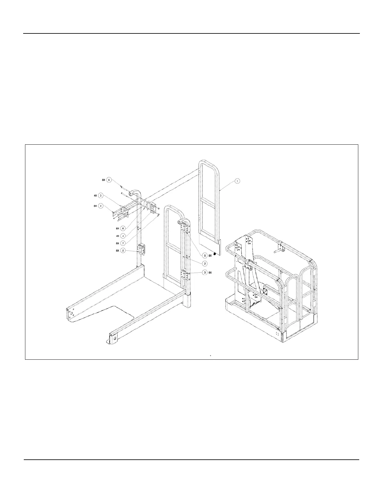
Snorkel TM12E - SALOON DOOR ASSEMBLY

Snorkel TM12E
232 pages
Print Icon
To Next Page IconTo Next Page
To Next Page IconTo Next Page
To Previous Page IconTo Previous Page
To Previous Page IconTo Previous Page
Loading...
REPAIRPARTS
TM12E PARTS MANUAL SALOON DOOR ASSEMBLY
SALOON DOOR ASSEMBLY Mon Feb 15 04:09:32 UTC 2021 2-27

Table of Contents

Related product manuals