EasyManua.ls Logo

Sony ICF-C793 - Technical Diagrams; Block Diagram

Sony ICF-C793
35 pages
Print Icon
To Next Page IconTo Next Page
To Next Page IconTo Next Page
To Previous Page IconTo Previous Page
To Previous Page IconTo Previous Page
Loading...
ICF-C793/C793L
– 9 – – 10 –
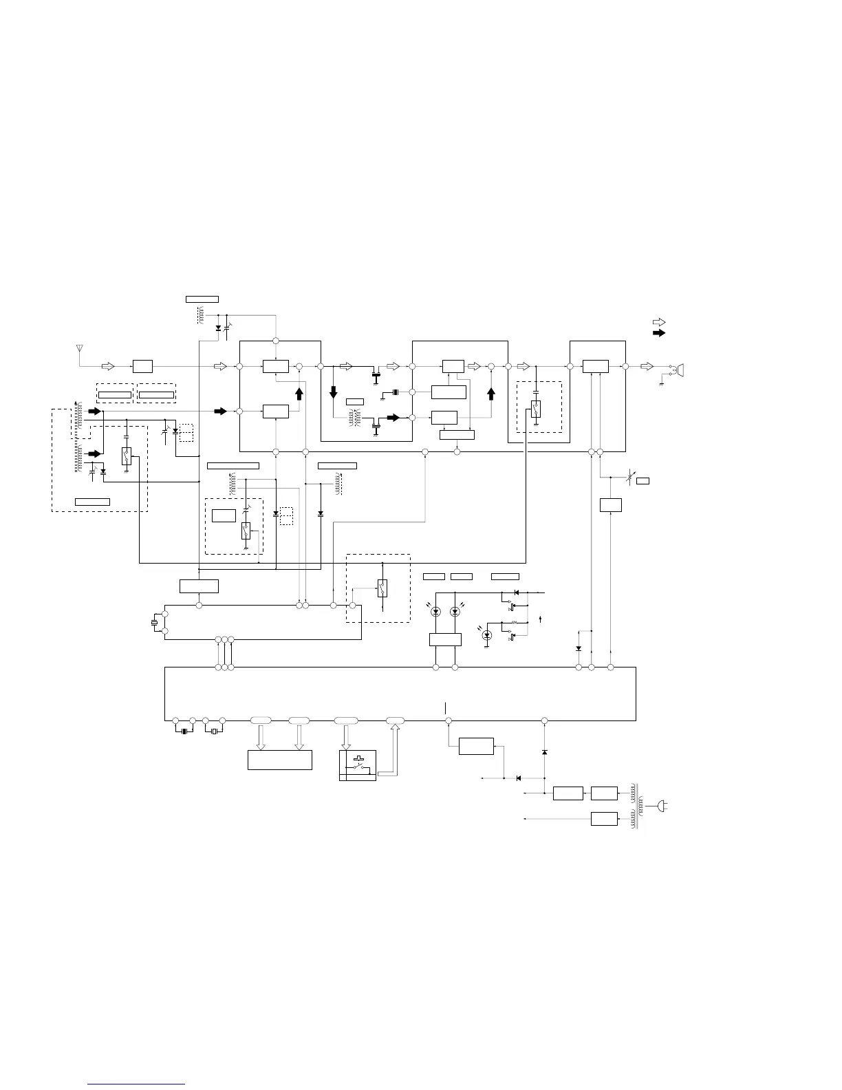
SECTION 4
DIAGRAMS
4-1. BLOCK DIAGRAM
12
9
14 17
10
5 7
FM
FRONT-END
FM
IF AMP
AF
POWER AMP
AM IF AMP,
AGC, DET
AM
FRONT-END
16
19
FM RF
IN
FM/AM
FE OUT
CF2
10.7MHz
CF1
450kHz
CF3
10.7MHz
FM
RF
FM
IF IN
2
FM
DISCRIMINATOR
TUNING METER
FM
DISCRI
27
AF
OUT
SP301
(SPEAKER)
AF
IN
23
24
DET
OUT
AM
IF IN
METER
NF
VOL
15
1
2
3 4
FM/AM
BAND
SELECT
AM OSC
L5
AM (MW/LW)
OSC
L4
FM OSC
X50
75kHz
L1
AM (MW/LW)
FERRITE-ROD
ANTENNA
ANT1
FM LEAD
ANTENNA
FM OSC
AM RF
IN
L3
FM RF
FM/AM FRONT-END,
FM/AM IF AMP, DET, AGC, AF AMP
IC1
FM/AM PLL
IC50
SYSTEM CONTROLLER,
LCD DRIVER, KEY CONTROL
IC100
TC1
D4-1
D1-1
(C793)
(C793L)
L1-1
(MW)
L1-2
(LW)
Q1
MW/LW
SWITCH
Q3
MW/LW
SWITCH
B+
B+
Q52
MW/LW
SWITCH
CONTROL
(C793)
(C793L)
(C793L)
TC4
TC3
VR1
VOL
+
+
L4
FM VCO VOLTAGE
D74
A RADIO
D75
B BUZZER
S50
BRIGHTNESS
(LCD BACK LIGHT)
D70 – 73
(LCD BACK LIGHT)
D74 D75
–2
–1
L5
AM (MW) VCO VOLTAGE
TC4
LW VCO
VOLTAGE
L1, TC1
AM TRACKING
L3, TC3
FM TRACKING
T1
AM IF
B.P.F.
BPF1
LOW-PASS FILTER
Q50, 51
LED DRIVE
Q53, 54
MUTING
Q4
• SIGNAL PATH
: FM
: AM (MW/LW)
05
D1-2
D2
D3
AC IN
BACKUP B+
(SYSTEM CONTROLLER IC100 B+)
B+
BZ-CTRL
35
ALM A
6
ALM B
7
BUZZER
36
DATA
DA
PD1
27
5
15
CLK
CK
26
4
CE
CE
34
3
MUTE
PDET
33
28
RESET
18
AM IN
11
FM IN
XOUT
XIN
22 23
X101
4.19MHz
X1
X2
19 20
X100
32.768kHz
XT1
XT2
S0 – S23
12
P0
P1
78
D100
D101
VT B+
RECT
D351 – 354
REGULATOR
Q57
T301
POWER
TRANSFORMER
RECT
D355
RESET SIGNAL
GENERATOR
IC101
COM0 – COM3
S101, 201 – 218
(KEY MATRIX)
60 – 37
61 – 64
KS0 – KS4
10 – 13, 8
KR0 – KR3
14 – 17
LIQUID CRYSTAL DISPLAY
LCD100
L1-1, TC1
MW TRACKING
L1-2, TC2
LW TRACKING
TC2
Q5
TONE
CONTROL
SWITCH
D4-2
D1-3
(C793)
(C793L)
(C793L)
(C793L)
(C793L)
D102
D60, 61
HIGH
LOW

Related product manuals