EasyManua.ls Logo

Sony MZ-N10 Notes: installing & operating OpenMG - Page 46

Sony MZ-N10 Notes: installing & operating OpenMG
66 pages
Print Icon
To Next Page IconTo Next Page
To Next Page IconTo Next Page
To Previous Page IconTo Previous Page
To Previous Page IconTo Previous Page
Loading...
46
MZ-N10
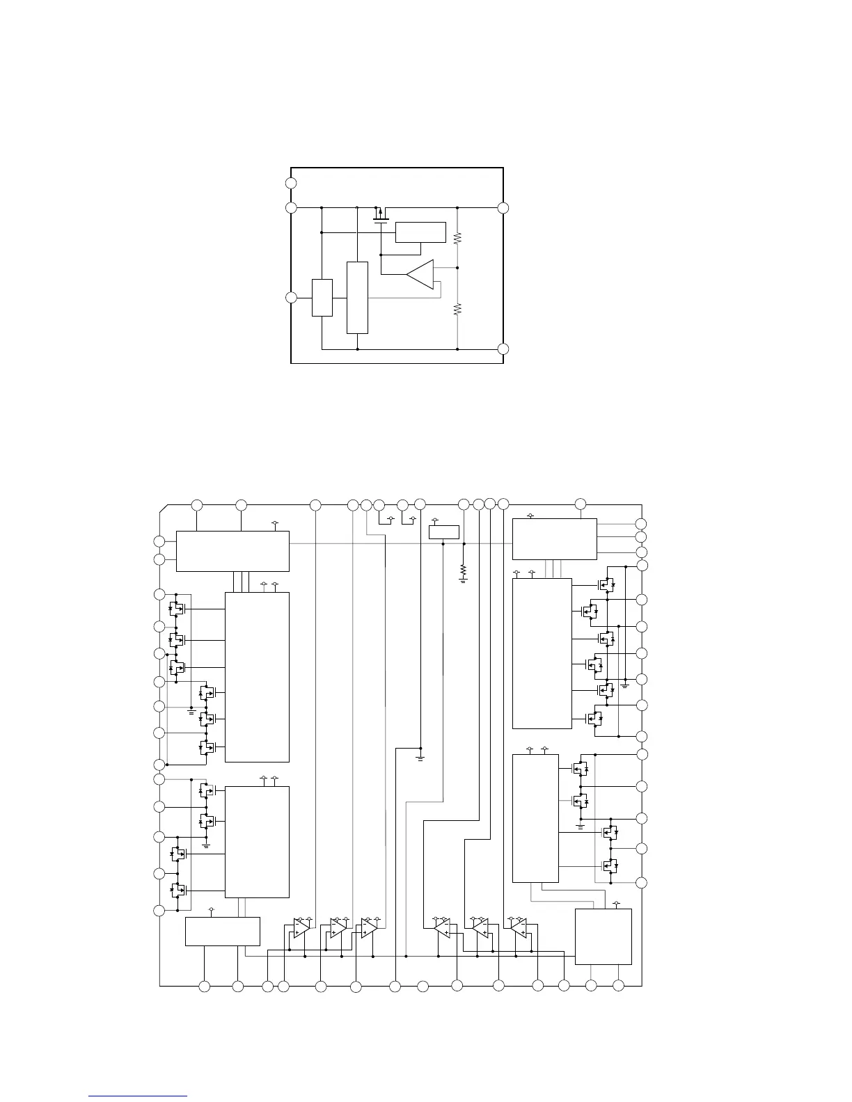
IC502 XC62HR2202MR
IC503 XC62HR2502MR
NC
VIN
CE
VSS
VOUT
CURRENT
RESTRICTION
OUTPUT
CONTROL
4
5
1
2
+
THE SOURCE OF
CONSTANT VOLTAGE
3
IC701 SC111258EPR2
14
13
56 55
CPWI2
CPVI2
CPUI2
COM2
RI2
FI2
UI1
PWM1
CPUO1
CPWO1
VG
VC
36
37
38
39
40
41
52 51 50
49
48
47
46
45
44
43
42
23
24
25
12
11
10
9
8
7
6
5
4
3
2
1
GND1
OE
OE
OE
CPWO2
CPVO2
CPUO2
PWM2
UI2
VI2
WI2
PGNDW2
WO2
VMVW2
VO2
PGNDUV2
29
30
31
32
33
34
35
UO2
VMU2
VMR2
RO2
PGND2
FO2
VMF2
VI1
WI1
PGNDW1
WO1
WMVW1
VO1
PGNDUV1
UO1
VMU1
VMR1
RO1
PGND1
FO1
VMF1
19
18
17
16
15
FI1
RI1
COM1
CPUI1
CPVI1
22
21
20
CPWI1
GND2
NC
BIAS
VC
ROE
VC
3Phase
control
ch1
3Phase
control
ch2
3Phase
Pre driver
ch1
H-BRIDGE
PRE
DRIVER
CH1
H-BRIDGE
CONTROL
CH1
VC
VC
VG
VC
VG
VC VC
OE
VG VG
VC
VG
VC
VG
GND
VG
VC
VG
VC
VG
VC
VG
VC
VC
VC
U
VW
UVW
H-BRIDGE
CONTROL
CH2
VCVG
3Phase
Pre driver
ch2
H-BRIDGE
PRE
DRIVER
CH2
26
27 28
CPVO1
5354

Related product manuals