EasyManua.ls Logo

Sony RMT-DSC2 - Power Supply System Diagrams

Sony RMT-DSC2
73 pages
Print Icon
To Next Page IconTo Next Page
To Next Page IconTo Next Page
To Previous Page IconTo Previous Page
To Previous Page IconTo Previous Page
Loading...
3-3
DSC-H50_L2
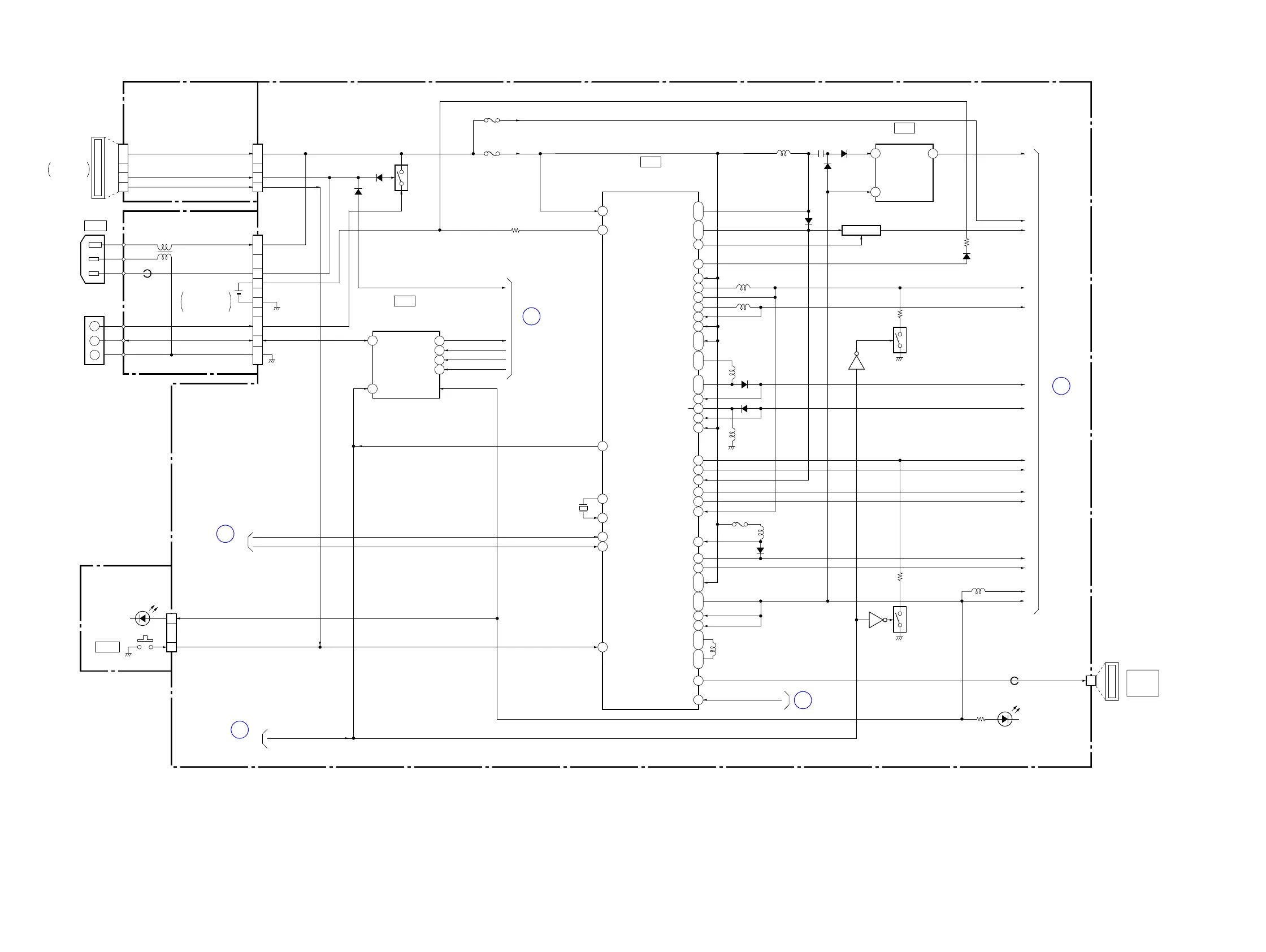
3-3. POWER BLOCK DIAGRAM (1/2)
( ) : Number in parenthesis ( ) indicates the division number of schematic diagram where the component is located.
CN707
Q003
B+ SWITCH
BATTERY
DETECTOR
(2/10)
IC201
DC/DC CONVERTER,
FRONT CONTROL
(1/10)
IC001
SY-201 BOARD (1/2)
CONTROL SWITCH
BLOCK
Q001, 002
F002
BATT_XEXT
UNREG2
ACV_UNREG
ACV_UNREG
ACV_DET
XACV_DET
XACV_DET
XPWR_ON
XACV_IN
D001
D002
LF001
BATT_XEXT
25 - 29
23
XPOWER_ON
24
6 - 11
1
BH001
BATTERY
TERMINAL
BOARD
+
S
-
TXRX
E4
UNREG
G6
L001
XRESETB2
XSYS_RESET
OSCI
OSCO
C9
XPWR_ON1
D7
XPWR_OFF
C10
XRESET_REQ
XPWR_OFF
XIC_211_RST_REQ
XPWR_OFF
XIC_211_RST_REQ
XDD_SYS_RST
XDD_SYS_RST
D6
P144_SOA0
D5
DDC1P2_PWR
B3
DDC5_PSW
H1
LD03P1E_OUT
F5
P143_SIA0
C5
P142_XSCKA0
B5
P120_INTP0
IC_211_1_SI
IC_211_1_SO
XIC_211_1_SCK
XCS_IC_201
B1
6.4V REG. (1/10)
IC002
6
VCONT
1
VOUTVIN
4
F001
ST_UNREG
PANEL_6.4V
D_3.1V
A_3.1V
MS_VCC
DDC2P9_VFB
G1
MS_PWR_ON
G3
L006
M_5.0V
MS_PWR_ON
MS_PWR_IN
F4
VL_3V
D006
D011
D010
D_3.1V
R008
POWER (2/2)
(PAGE 3-4)
E
POWER (2/2)
(PAGE 3-4)
C
POWER (2/2)
(PAGE 3-4)
B
POWER (2/2)
(PAGE 3-4)
D
2 - 5
BATT_SIG
BATT_UNREG
BATT_SIG
BATT_UNREG
REG_GND
JK-371
FLEXIBLE
BOARD
DC-111
FLEXIBLE
BOARD
CN001
MULTI
CONNECTOR
23, 25
19
7
L009
DDC1P8_LX
A8
DDC1P8_PWR
B8
DDC1P8_VFB
B6
D_1.85V
L008
DDC1P2_LX
A4
DDC1P2_VFB
B2
D_1.25V
CAM_3.5V
LD03P4_OUT H3
D_1.5V
LD01P5_OUT A6
DDR_1.8V
LD01P8_OUT A7
BL_H
DDCBL_VO F9
BL_L
DDCBL_VL
E10
USB_3.2V
LD03P1U_OUT J5
MS_PWR_OUT
F3
D007
D008
DDC12_LX_1
DDC12_LX_2
J9
K9
DDC12_VFB
H8
CAM_13V
DDC5_LX_1
DDC5_LX_2
J3
K3
DDC5_VO_1
DDC5_VO_2
J2
K2
DDC2P9_VO_1
DDC2P9_VO_2
DDC2P9_PWR_1
DDC2P9_PWR_2
F1
F2
DDC2P9_LH_1
DDC2P9_LH_2
E1
D1
DDC2P9_LL_1
DDC2P9_LL_2
C1
D2
C2
B1
DDCM7P5_LX
J10
DDCM7P5_PWR
H10
LD03P1U_IN
H4
DDC1P8_PSW_IN
B7
DDCBL_LX
F10
DDCM7P5_VFB F8
CAM_-7.5V
D009
CN702
D001
(POWER)
D_3.1V
12
XPWR_ON XPWR_ON
9
POWER
S002
VL_3.0V
20
BT001
LITHIUM
RECHARGEABLE
BATTERY
D004
R005
RTCBAT
H5
Q305
(2/2)
3.5V
DISCHARGE
R360
R761
R064
Q005 (2/2)
1.8V DISCHARGE
Q005
(1/2)
INVERTER
DDC12_PWR_OUT_1
DDC12_PWR_OUT_2
J8
DDC12_PWR_IN_1
DDC12_PWR_IN_2
G8
G7
K8
L002
L010
L004
CN712
( )
J001
1
3
DC IN
19
12
13 - 18
K7
K6
X001
32.768kHz
D705
CN713
(MS ACCESS)
9
MEMORY
STICK
DUO
Q305
(1/2)
INVERTER
F003
2
FB001
XDD_SYS_RST
POWER (2/2)
(PAGE 3-4)
A
FB002
L005

Related product manuals