EasyManua.ls Logo

Sony STR-DE1075 Primary - Digital component hookups

Sony STR-DE1075 Primary
56 pages
Print Icon
To Next Page IconTo Next Page
To Next Page IconTo Next Page
To Previous Page IconTo Previous Page
To Previous Page IconTo Previous Page
Loading...
9
Hooking Up the Components
VIDEO
OUT
R
AUDIO
OUT
OUTPUT
L
DIGITAL
COAXIAL
OUTPUT
VIDEO
OUT
R
AUDIO
OUT
OUTPUT
L
DIGITAL
OPTICAL
OUTPUT
DIGITAL
OPTICAL
OUTPUT
BD
E
DB
PHONO
CD/SACD
MD/DAT TAPE
IN IN
OUT
IN
MULTI CH IN 2
OUT OUT
IN
SIGNAL
GND
U
CONTROL
A1
FRONT
SURROUND
CENTER
2ND ROOM
SUB
WOOFER
L
R
L
R
L
R
L
R
MONITOR
AUDIO
IN
IN
VIDEO
CTRL S
OUT
OUT
VIDEO
CTRL S
OUT
CTRL S
STATUS IN
CTRL S
IN
AUDIO
OUT
VIDEO 1
AUDIO
IN
TV/SAT
AUDIO
IN
DVD/LD
AUDIO
IN
AUDIO
OUT
VIDEO 2
S-VIDEO
IN
VIDEO
S-VIDEO
OUT
VIDEO
S-VIDEO
IN
VIDEO
S-VIDEO
IN
VIDEO
S-VIDEO
OUT
VIDEO
MULTI CH IN 1
FRONT
SURROUND
CENTER
SURROUND
BACK
SUB
WOOFER
DIGITAL ANTENNA
MD/DAT
OPTICAL
IN
TV/SAT
OPTICAL
IN
DVD/LD
OPTICAL
IN
FM
75
COAXIAL
DVD/LD
COAXIAL
IN
MD/DAT
OPTICAL
OUT
AM
U
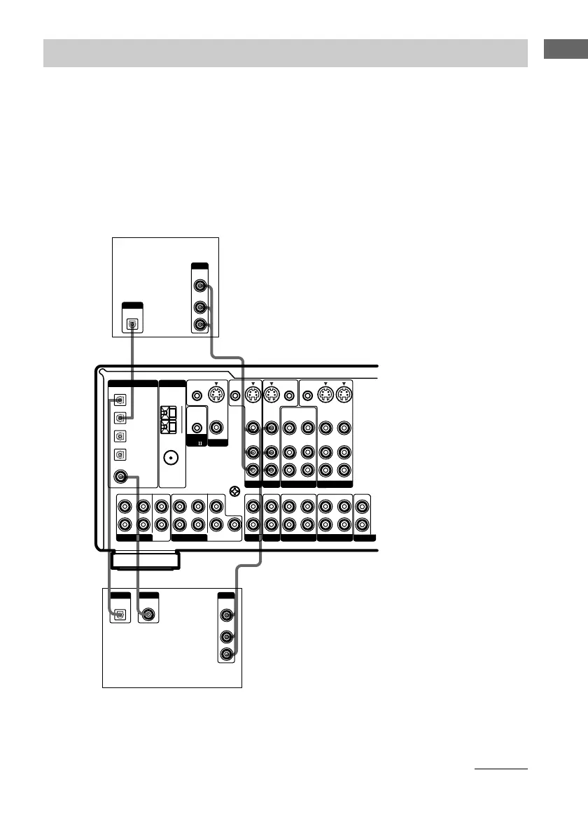
Digital component hookups
DVD or LD player
(etc.)*
Connect the digital output jacks of your DVD player and satellite tuner (etc.) to the receiver’s digital
input jacks to bring the multi channel surround sound of a movie theater into your home. To fully
enjoy multi channel surround sound, five speakers (two front speakers, two surround speakers, and a
center speaker) and a sub woofer are required. For 6.1 channel surround sound, you will also need a
surround back speaker. You can also connect an LD player with an RF OUT jack via an RF
demodulator, like the Sony MOD-RF1 (not supplied).
Note
You cannot connect an LD player’s DOLBY DIGITAL RF OUT jack directly to this unit’s digital input jacks.
You must first convert the RF signal to either an optical or coaxial digital signal. For details, see
“Troubleshooting” on page 44.
TV or satellite
tuner
* Make either coaxial or optical connections. We recommend making coaxial connections instead of optical
connections.
continued

Related product manuals