EasyManua.ls Logo

Sony TRINITRON BVM-D9H5U - Page 123

Sony TRINITRON BVM-D9H5U
166 pages
Print Icon
To Next Page IconTo Next Page
To Next Page IconTo Next Page
To Previous Page IconTo Previous Page
To Previous Page IconTo Previous Page
Loading...
10-5
BVM-D9H1U/D9H5U/D9H1E/D9H5E/D9H1A/D9H5A
10-5
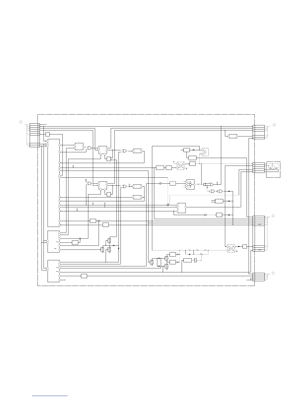
D (1/2)D (1/2)
H/V OSC, Dynamic Focus
D Block (1/2)
D Block (1/2)
7
1
2
8
5
AFC
CN2501
H SYNC
V SYNC
V TIM
SDA
4
SCL
CN1101
MB BOARD
AFC
6
SDA
41
SCL
40
IC2503
DEF CONTROL
5
3
1
H BLK
CONT
IC2506
A2
12
B1
5
10
Q2
2
Q1
14
CX2 CX1
IC2513
H BLK SYNC
1
2
4
IC2521
DELAY
7
1
2
4
IC2517
22
H BLK
38
H SYNC
21HD
37
DTC
B1
5
6
Q1
IC2505(1/2)
H SYNC
PULSE GEN
29
VD-
32
V DF
B1
12
B1
5
9
Q2
2
Q1
14
CX2 CX1
IC2509
V BLK SYNC
7
1
2
4
IC2516
B2
11
10
Q2
IC2505(2/2)
V SYNC
PULSE GEN
3PLL INH
Q1
6
4A1
33V SYNC
BUFF
Q2527
28
VD+
30
V RET
31
H PIN
15
PROT
5H BLK(L)
IC2501
D/A CONV
SDA
14
SCL
15
4H BLK(R)
7V BLK(B)
6V BLK(T)
3
H SIZE
21125/50
9
VDL
IC2502
D/A CONV
SDA
14
SCL
15
10
HDL
7HCENT
430K
615K
1
POWER
2
DEGAUSS
POWER ON
Q2533
Q2534
D2528
D2529
Q2532
6
4
3
1
T2503
HDT
H DRIVE
Q2535
BUFF
Q2512,2513
H OUT
Q2514
4
AFC
CN2502
1
H BLK
6
V BLK
7
VD BLK
2
ABL
B2
11
10
Q2
IC2523(1/2)
V BLK PULSE GEN
CN303
B BOARD(2/2)
VD-
1
IC2504
V OUT
VD+
7
FB
3
5
OUT
RELAY SW
Q2521
S-CAP
ON/OFF
Q2520
Q2523
S-CAP
ON/OFF
Q2519
Q2522
5
3
1
2
L2505
HLC T2504
RY2501
T2502
CURRENT
H
L
BUFF
Q2531
23
V BLK
17H DF
10
4:3/16:9
IC2523(2/2)
PLL
PULSE GEN
12
DC IN
DC IN
IC2512
Q2502
TP2501
HD
1
2
4
IC2522
DELAY
IC2519
Q2503
TP2503
V SYNC
TP2502
V RET
HV PROT
Q2528
SW
Q2524
TP2507
VD-
TP2508
VD+
SW
Q2529
D2533
L2509
HLC
BUFF
Q2517
D2513
D2525
D2526
Q2530
12V
TP2509
AFC
H SENTER
BIAS
Q2516
31
IC2518
5
2
1
3
4
IC2507
H CENTER AMP
L2504
HCC
V PROT
Q2526
D2518
HC+
HC N
HC-
2
1
4
IC2508
2
1
4
2
1
4
IC2515 IC2514
6
H DY+
CN2504
4
H DY-
2
V DY-
1
V DY+
DY
6
8
T2501
HRT
H +B
DRIVE
Q2509
D2505
DC IN
D2521
LATCH
Q2510,2511
D2506
DC IN
+12V
CN506
P BOARD
M
CN2506
5
1
4
7
6
2
9
H PWM
HD
H PIN
MUTE DET
PROT
H FB
15K
CN501
P BOARD
N
CN2503
9
ABL
8
DEGAUSS ON
7
DC IN
6
DC IN
DC IN
D
(
)
H/V OSC
DYNAMIC FOCUS
(1/2)
BUFF
Q2507,2508
+5V
Q2525

Table of Contents

Related product manuals