EasyManua.ls Logo

Sony TRINITRON BVM-D9H5U - Page 127

Sony TRINITRON BVM-D9H5U
166 pages
Print Icon
To Next Page IconTo Next Page
To Next Page IconTo Next Page
To Previous Page IconTo Previous Page
To Previous Page IconTo Previous Page
Loading...
10-9
BVM-D9H1U/D9H5U/D9H1E/D9H5E/D9H1A/D9H5A
10-9
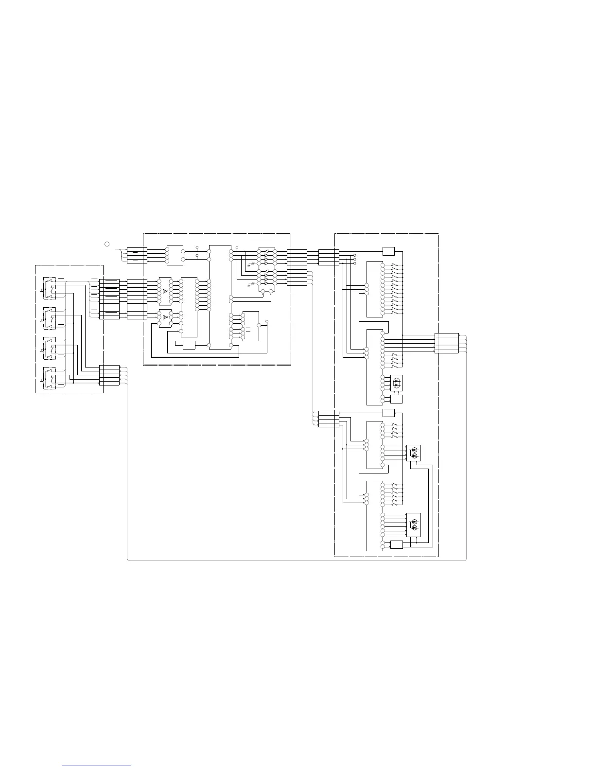
HA, HB, HCHA, HB, HC
HA Block
HB Block
HC Block
Serial to Parallel Converter
HA Block
Switch
HB Block
Main CPU
HC Block
HB
LED SW
Q202,203
S1203
CONTRAST
CN1201
S1202
BRIGHT
S1201
CHROMA
S1200
PHASE
ENCODER 3
10
9
ENCODER 3
ENCODER 2
8
7
ENCODER 2
ENCODER 1
6
5
ENCODER 1
ENCODER 0
4
3
ENCODER 0
3
4
5
6
7
8
9
10
EN 3A
EN 3B
CN3
EN 2A
EN 2B
EN 1A
EN 1B
EN 0A
EN 0B
5
3
1
9
11
13
6
4
2
8
10
12
IC9
5
3
6
4
IC10
11
10
RESET
IC11
BUFFER
D7
2
D6
3
D5
4
D4
5
D3
6
D2
7
D1
8
D0
9
CLK
11
OE
1
IC2+12V
D7
64
D6
63
D5
62
D4
61
D3
60
D2
59
D1
58
D0
57
19
Q7
18
Q6
17
Q5
16
Q4
15
Q3
14
Q2
13
Q1
12
Q0
TXD1
28
3
DIN
DOUT
6
DOUT
5
RIN
7
R IN
8
2
ROUT
RXD1
29
TP3
IC13
RS422 DRIVE
CN2
3RXD
9
RXD
7TXD
2
TXD
MA BOARD
CN105
TP4
IC1
MAIN CPU
26
RXD0
25
TXD0
27
SCK0
TP5
16
6
8
2
4
14
12
18
IC12
BUS SHIFT
5 MISO
4 MOSI
3 SCLK
6
CE2
CN5
5
13
11
17
15
7
9
3
5 MISO
4 MOSI
3 SCLK
6 CE1
CN4
20
TMCI1
1 19
ENA ENB
21
TMO1
53
A3
52
A4
51
A5
50A6
34
IOS
49
A7
RES
R
37
RD
A
1
B
2
C
3
G2A
4
G2B
5
G1
6
15Y0
TP6
IC3
HC
6
MISO
5MOSI
4SCLK
3CE2
CN201
TP204
TP203
TP202
SW OUT
Q201
CLK
14
STB
15
DATA
13
11
P1
S201
10
P2
S202
9
P3
S203
8
P4
S204
7
P5
S205
5
P6
S206
4
P7
S207
3
P8
S208
2
P9
S209
1
P10
S210
23
P11
S211
22
P12
S212
21P13
S213
POWER
DEGAUSS
NUM-1
NUM-2
NUM-3
NUM-0
NUM-4
NUM-5
NUM-6
DEL
NUM-7
NUM-8
NUM-9
CLK
14
STB
15
DATA
13
11
P1
10
P2
9P3
8P4
7P5
5P6
S214
4P7
S215
3
P8
S216
2
P9
S217
1
P10
23P11
22P12
19P15
17P16
MENU
ENTER
UP
DOWN
12
SO
D223-226
HA
LED SW
Q205,206
5MISO
4MOSI
3SCLK
6CE1
CN202
SW OUT
Q204
CLK
14
STB
15
DATA
13
11
P1
S218
10
P2
S219
9
P3
S220
8
P4
S221
2
P9
1
P10
23
P11
22
P12
COMB/B
F1/F3
F2/F4
ADD/MARKER
CLK
14
STB
15
DATA
13
11
P1
10
P2
S222
9
P3
S223
8
P4
S224
7
P5
S225
5
P6
S226
S227
19
P15
17
P16
SHIFT
MONO/R
APT/G
10:9
SYNC
B ONLY
12SO
S218-221
2
P9
1
P10
23
P11
22
P12
S222-227
21
P13
20
P14
K
ADDRESS
DECODER
IC201
S/P CONV
IC202
S/P CONV
IC204
S/P CONV
IC203
S/P CONV
ENC0
ENC0
ENC1
ENC1
ENC2
ENC2
ENC3
ENC3
ENC0
ENC0
ENC3
ENC3
ENC2
ENC2
ENC1
ENC1
1
ENCODER 0
2
ENCODER 1
3
ENCODER 2
4
ENCODER 3
5
COMMON
CN1203
5
COMMON
1
CONT
2
BRT
3
CHR
4
PHASE
CN203
(2/2)

Table of Contents

Related product manuals