EasyManua.ls Logo

Sony TRINITRON PVM-8042Q - Page 81

Sony TRINITRON PVM-8042Q
108 pages
Print Icon
To Next Page IconTo Next Page
To Next Page IconTo Next Page
To Previous Page IconTo Previous Page
To Previous Page IconTo Previous Page
Loading...
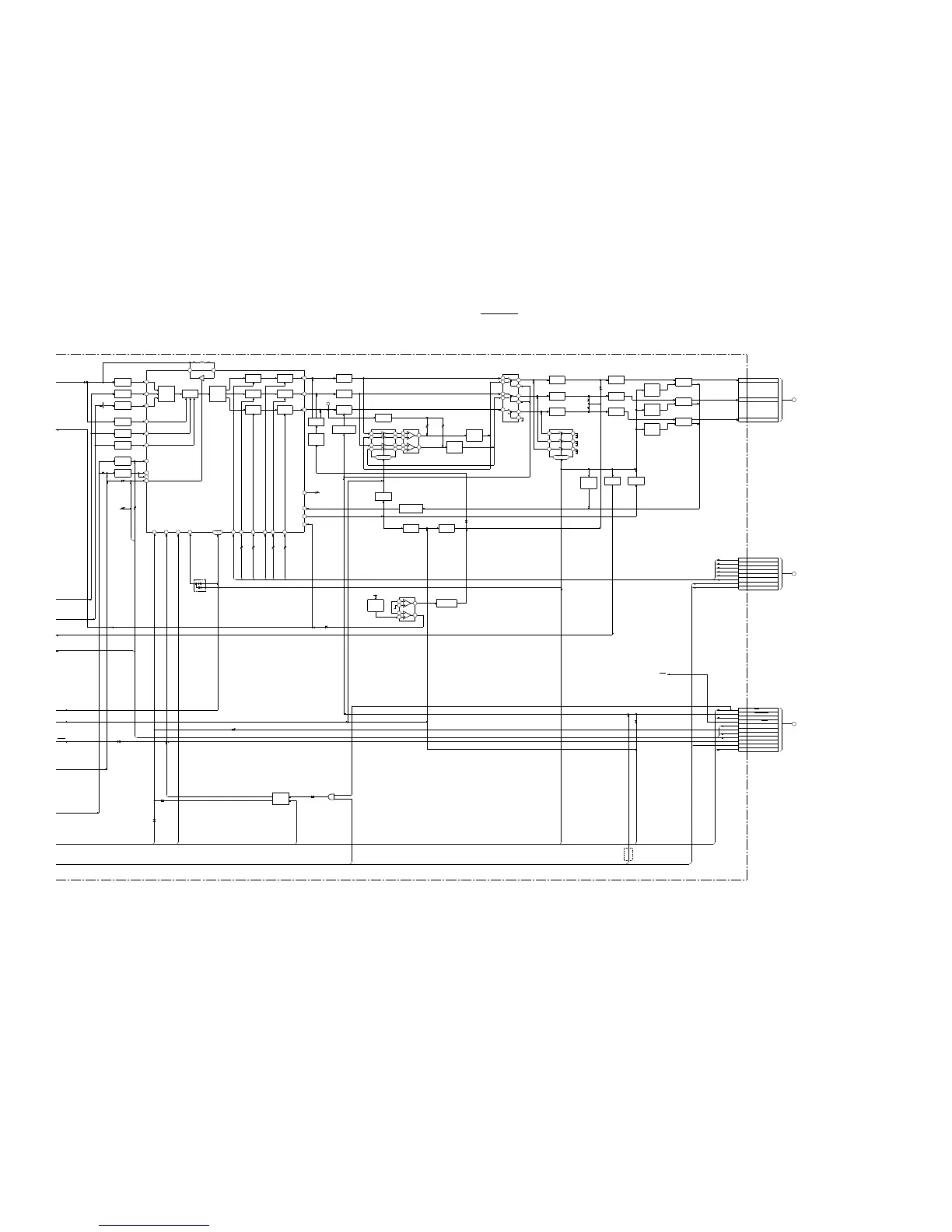
9-3 9-3
S MIC Chassis
IC124 RGB MATRIX
G C/O
D128
SW
IC1401
U/S-SW
4
SW
D1401
SW
D127
SW
D125
APT,COL,TINT
RV118
SUB BRT
D188
MODE SELECT
COL
D162
SW
HUE 48
H-BLK
ABL
ABL
Q189
PIX/BRT
HV-DL
VP
B.ONLY
ONLY
BRZ MODEL
BLUE-L
H-BLK
V-BLK
EXT-H,A-H/B-L,VOL
RGB/LINE
D147
V-BLK SW
VOL
P-LED
TINT
COL
APT
HV-DLY
UNDER-H
PIC
POWER-LED
VOL
9
10
11
RGB/LINE
BLUE-ONLY
HV-DLY
NOR/UNDER
TO
COL
BRT
APT
TINT
CN001
HA BOARD
H
CN107
4
2
3
1
7
6
5
8
1B
3G
R
TO
CN701
CA BOARD
F
CN105
6
EXT-H
A-H/B-L
G C/O5
R C/O
NOR/EXT
A/B
6
8
7
G GAIN3
B C/O4
B GAIN2
1
CN106
R GAIN
G
TO
HA BOARD
CN002
Q155,211
B-E.F.
PULSE SW
B REF
Q154
Q152,210
G-E.F.
Q151
G REF
PULSE SW
Q149,209
R-E.F.
R REF
PULSE SW
Q148
D144
BLANKING
D146
BLANKING
D145
BLANKING
Q160
R DRIVE
Q157
G DRIVE
B DRIVE
Q158
Q159
Q146,147
V GATE SW
Q109
PULSE SW
REF PULSE
SW
H-BLK
B C/O
R C/O
G C/O
R GAIN
G GAIN
B GAIN
D151
SW
+12V
D152,153
C316
SW
R GAIN
G GAIN
B GAIN
R BIAS
G BIAS
B BIAS
MUTE 21
OFF MUTE SW
Q299
Q177
BLANKING
V BLK 22
V BLK SW
Q179
REF PULSE BUFF
Q161
IK F.B 25
7
6
ON/OFF MUTE
IC129
1
2
3
5
Q164
V BLK SW
RV122
B
GAIN
GAIN
RV120
G
RV119
B C/O
RV121
21
1110
43
H-BLK-SW
IC116
5 12 13
Q173
R BUFF
Q174
G BUFF
B BUFF
Q175
BL-ONLY-
GCH-BUFF
Q172
RCH-BUFF
Q170
BL-ONLY-
BL ONLY
W/B-G
RV125
W/B-R
RV124
BL ONLY
IC127
H0LD
7
1
3
5
6
2
5 6 12 13
11
8
10
9
3
4
IC125
12
BLACK SAMPLING
4
9
5
15
2
1
10
11
14
12
13
BL-ONLY Y SW
IC126
B BUFF
Q168
BLUE ONLY SW
Q212
Q153
SLICE REF
BLACK
TP104
SLICER
D133-135
R BUFF
Q165
Q166
G BUFF
B BUFF
Q167
RV115
SUB HUE
SW
CLPHPVPPIXBRT
23 242018467 44 32 26 38 33 27
41
R
36
G
B
30
R C/O
CONT
G C/O
CONT
B C/O
CONTCONT
B GAIN
CONT
R GAIN
G GAIN
CONT
COL
APT
SUB
RV205
SHARP
OSD
VCA
85
G
B
G
COMP/RGBMATRIX
RV116
SUB
COL
RGB SW
D289
R-Y LEVEL
RV123
MATRIX
6
17
47
16
Q144
B/W SW
MODE SW
Q145
11
12
10
G BUFF
Q202
B BUFF
Q201
Q203
R BUFF
1
Q206
R-Y BUFF
2
B-Y BUFF
Q205
3
Y BUFF
Q204
MUTE
Y/G
A-H/B-L,B.ONLY,BLUE-L,EXT-H,VOL
HV-DL,V-BLK,H-BLK,UNDER-H,P-LED,ABL,VP
B/W
RGB-H
HV-DL
CLP-2
CLP-1
TINT
PULSE-2
R-Y/R
B-Y/B
B
(SIGNAL PROCESS)
B B

Table of Contents