EasyManua.ls Logo

SpacePak ESP-J - Step 5: Connecting Refrigerant Lines

SpacePak ESP-J
52 pages
Print Icon
To Next Page IconTo Next Page
To Next Page IconTo Next Page
To Previous Page IconTo Previous Page
To Previous Page IconTo Previous Page
Loading...
12
Step 5: Connecting Refrigerant Lines
Connect refrigerant lines from the outdoor condensing
unit to the fan coil unit in accordance with its
manufacturer's sizing recommendations for the length of
the piping run. Proper line sizing is critical to the operation
of the system. Always use proper brazing procedures. A
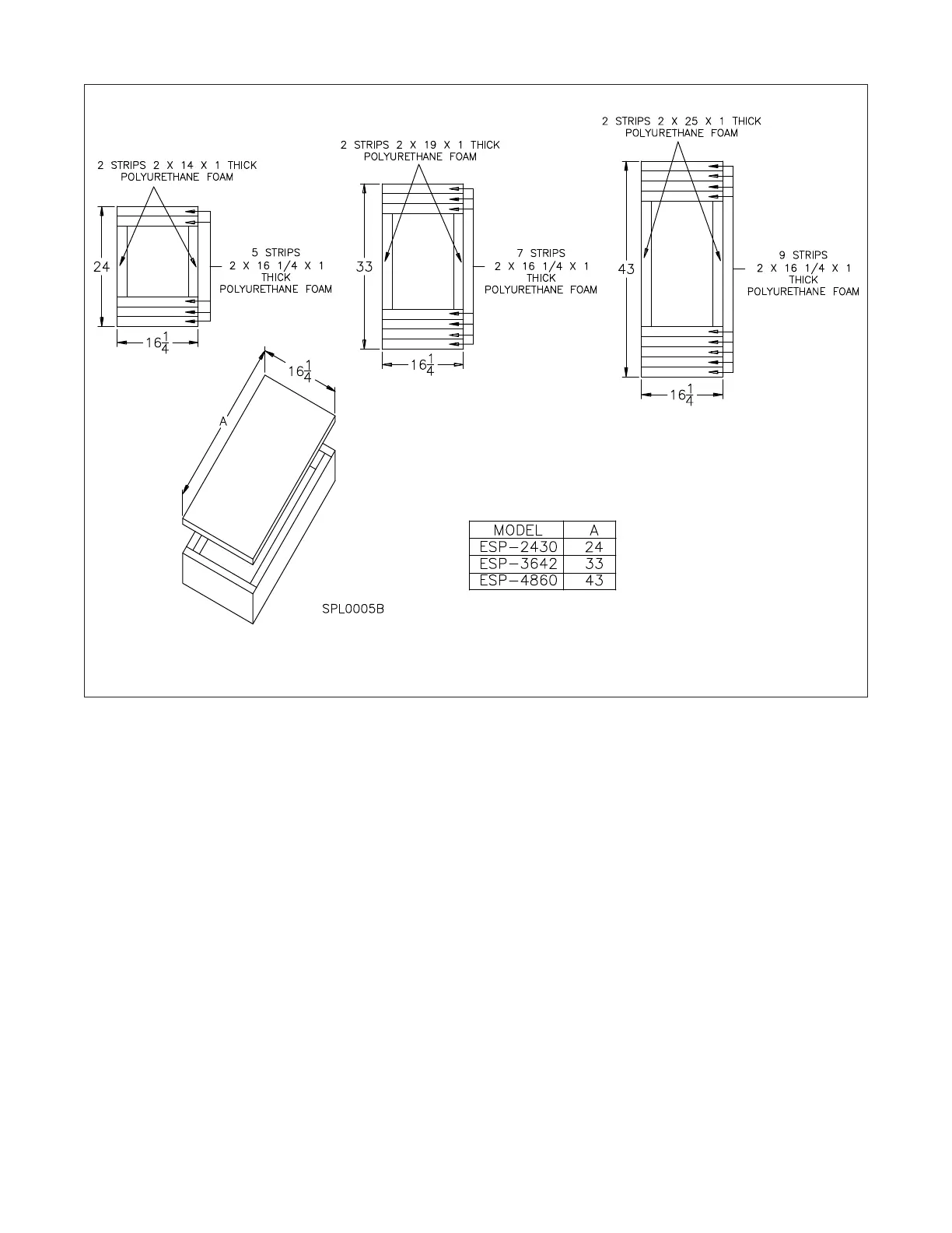
FIGURE 2.13: MOUNTING PLATFORMS FOR VERTICAL INSTALLATIONS
trickle flow (2PSI) of dry nitrogen to avoid scale or
blockage in the piping system is recommended while
brazing. SpacePak also recommends installing a sight
glass on the liquid line outside of the unit as an aid for
accurately charging the system.