EasyManua.ls Logo

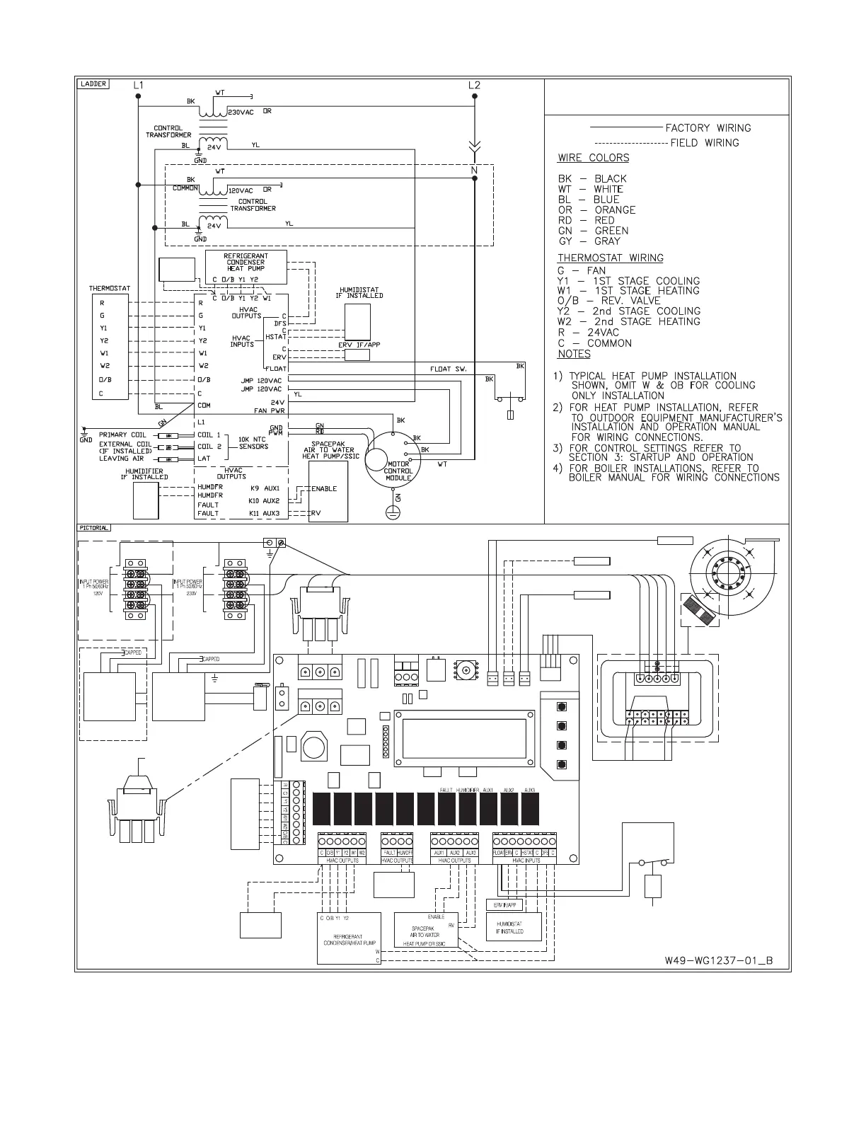
SpacePak ESP-J - Figure 2.33: Model ESP-J 230 V Standard Wiring Diagram*

SpacePak ESP-J
52 pages
Print Icon
To Next Page IconTo Next Page
To Next Page IconTo Next Page
To Previous Page IconTo Previous Page
To Previous Page IconTo Previous Page
Loading...
20
FIGURE 2.33: MODEL ESP-J 230V STANDARD WIRING DIAGRAM*
ESP & WCSP 120V/230V
J2 J3 J4 J5
K1 K2 K3 K4 K5 K6 K7 K8
K9
K10 K11
T-STAT INPUTS
24VAC
J13
JMP
FAN
120VAC
J12
J11
TEMPERATURE
LAT
COIL2
COIL1
J9
COM
G
J10
B- A+
PSI
S1
J6
PRESSURE
TAC
GND
PWM
16
15 4 13 12
11
10 9
8765432 1
54321
N
L2
120V L1
240V
R
G
Y1
Y2
W1
W2
C
THERMOSTAT
O/B
CONDENSATE FLOAT SWITCH
BLK
BLK
PRIMARY 240VAC
SEC 24VAC 24VAC
24VAC
RETURN
230VAC INPUT
HUMIDIFIER
MOTOR CONTROL
L1
L2
TB1
PRIMARY COIL
EXTERNAL COIL
LEAVING AIR
SENSOR
SENSOR
SENSOR
(IF INSTALLED)
L1
N
TB1
ALL TEMP SENSORS 10K NTC
BK
BK
GN
RD
WT
54
(FAN-5)
(FAN-4)
YL
BL
PE
OR
WT
BK
CONFIGURED FOR
PRIMARY 120VAC
SEC 24VAC
120VAC INPUT
YL
BL
OR
WT
BK
GN
BK
WT
RD
GN
BK
WT
RD
BK
BK
OR
RD
WT
BK
WT
RD
WT
BK
JUMPER
120V FIELD CONVERSION
120VAC FIELD CONVERSION
G
N
J12
IF
INSTALLED
ROUT O/B Y1 Y2 W1 W2
J1
LCD1
J8 J7
LCD BUTTONS
ESC
SEL
UP
DWN
P1
U12
U11
U13
JPG1
F2
R48 R49
C40
U9 U10
PE
TRANSFORMERTRANSFORMER
CONFIGURED FOR
TT
W1
BOILER/PUMP
C
CONTROL
TT
C
BOILER/PUMP
CONTROL
W1