EasyManua.ls Logo

SpacePak ESP-J - Step 2: Cutting Return Air Opening; Step 3: Attaching Supply Air Plenum Adapter

SpacePak ESP-J
52 pages
Print Icon
To Next Page IconTo Next Page
To Next Page IconTo Next Page
To Previous Page IconTo Previous Page
To Previous Page IconTo Previous Page
Loading...
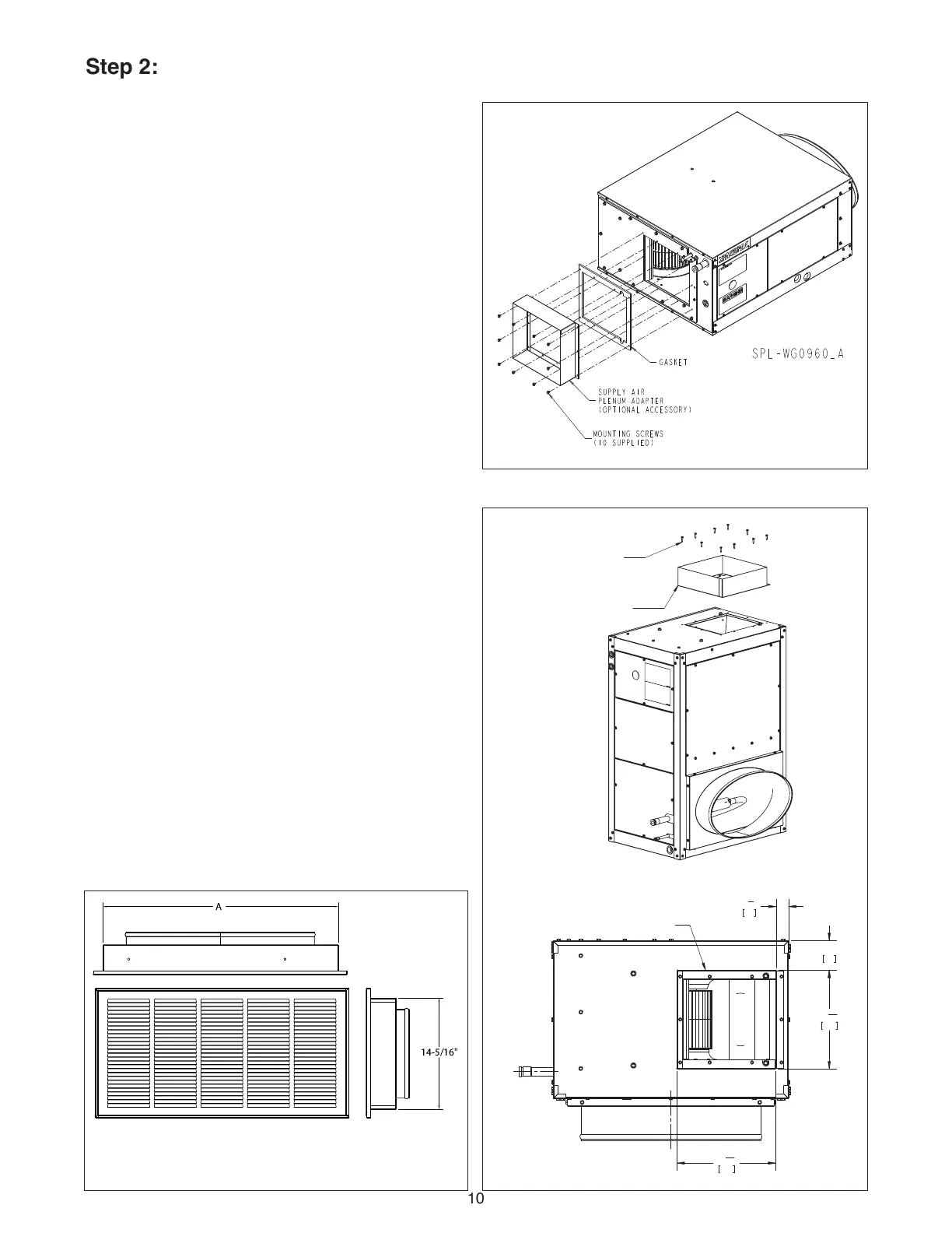
A
14-5/16"
10
Step 2: Cutting Return Air Opening
FIGURE 2.8: RETURN AIR BOX FRAME DIMENSIONS
Select exact location for return air box. Avoid installing
box in dining room, living room, kitchen, etc., unless
return air duct can be installed with at least two 90°
bends
(accomplished by splicing two return air ducts together.)
For attic installations to raise fan coil unit up through
opening, cut return air opening 14-1/2" wide by the "A"
dimension (Figure 2.8) of appropriate unit size. These
openings will accomodate the return air box with
sufficient frame lip to cover the opening (see Figure 2.8).
NOTICE: The return air adapter may need to be removed
from the unit to fit through the opening cut-out.
If joists are on 16" centers, the 14-1/2" width of the return
air box should fit between successive joists. Where joists
run in the opposite direction, or to properly center the
return, it may be necessary to cut joists and install headers.
For all wall return applications, cut the return air opening
to accomodate the return air box according to the same
dimensions. Remember, location of opening must allow
for a 90°
bend in the return air duct.
Check the opening for proper fit of the return air box. Do
not install the return air box until the installation of the
entire SpacePak system is completed, if you want to fit
materials up through this hole.
Measure return air box dimension "A" to determine
length of opening. Height = 14-5/16"
DWG0045
Step 3: Attaching Supply Air
Plenum Adapter
NOTICE: If unit is to be located in the attic and
installed through ceiling joists, attach supply plenum
adapter in attic.
A. HORIZONTAL DISCHARGE:
Refer to Figure 2.10 and duct installation in-
structions supplied with fan coil unit.
NOTICE: Allow space on sides for servicing.
FIGURE 2.9
#8 X 3/4
MOUNTING SCREWS
(10 SUPPLIED)
10 INCH SQUARE SUPPLY AIR
PLENUM ADAPTER ASSEMBLY KIT
PART NO. AC-PAJSQ
SPL-WG0986_BESP-2436 (V) SHOWN
FIGURE 2.10: PLENUM ADAPTER ASSEMBLY
1
1
4
32
10
1
16
256
10
1
16
256
3
76
10 INCH SQUARE SUPPLY AIR PLENUM ADAPTER
NOTE RELATIVE POSITION OF PLENUM
ADAPTER TO SUPPLY AIR OPENING
SPL-WG0986_B
ALL DIMENSIONS ARE IN INCHES [mm]