EasyManua.ls Logo

Spirax Sarco AEL52213 - Page 9

Spirax Sarco AEL52213
28 pages
Print Icon
To Next Page IconTo Next Page
To Next Page IconTo Next Page
To Previous Page IconTo Previous Page
To Previous Page IconTo Previous Page
Loading...
IM-P358-26 CH Issue 1
9
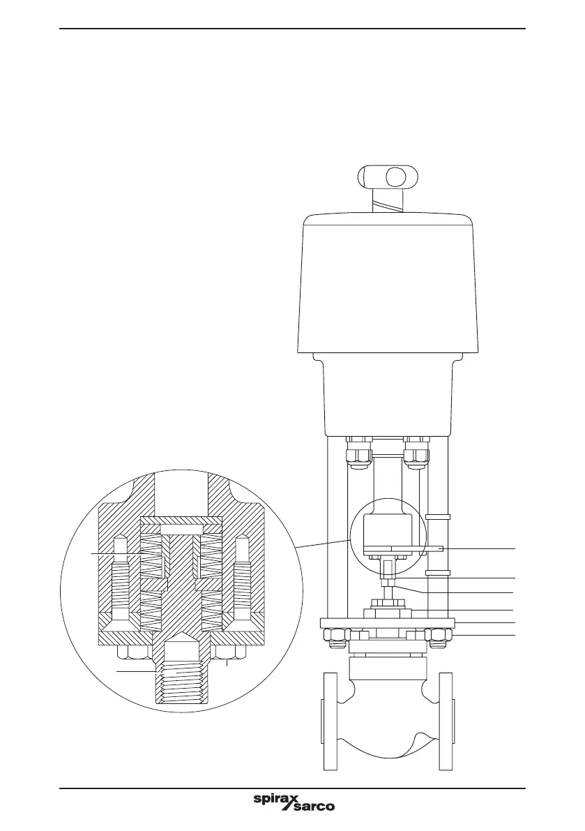
9. Using the handwheel lower the actuator stem until it touches the valve stem connecting.
10. Lift the valve stem up into the actuator stem until it comes to a stop. Screw actuator stem
onto the valve stem 12mm, then lock the lock nut.
It is important that this operation is not carried out with the valve plug on its seat.
11. Screw the 4 items (2) (8 Nm), the lock-nut (5) (15 Nm).
Fig. 2
1
3
5
7
4
6
4
8
2

Related product manuals