EasyManua.ls Logo

SteamSpa 9KW - Wiring Diagram

Default Icon
28 pages
Print Icon
To Next Page IconTo Next Page
To Next Page IconTo Next Page
To Previous Page IconTo Previous Page
To Previous Page IconTo Previous Page
Loading...
SteamSpa PHONE: 800-856-0172 FAX: 866-560-5662 http://steamspa.com info@steamspa.com
Page 12
INSTALLATION & USER GUIDE
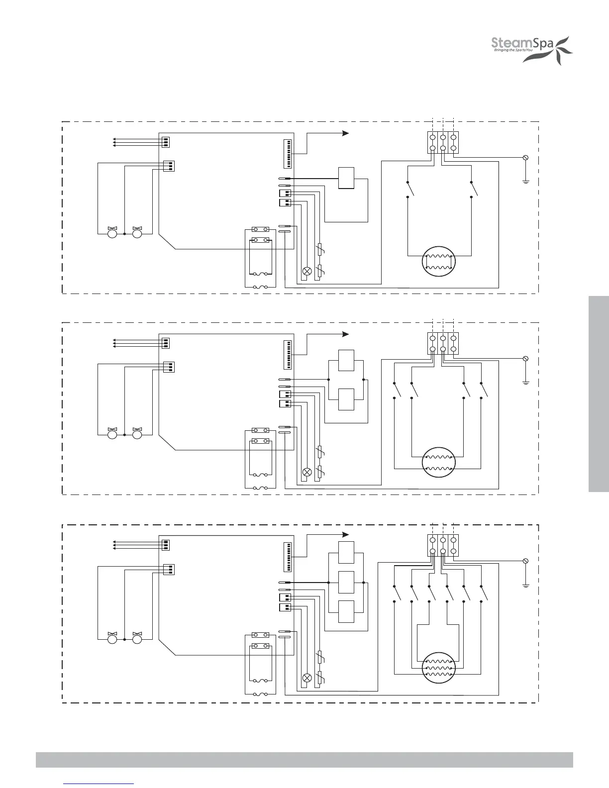
WIRING DIAGRAM
J1-1
J2-1
J2-2
J1-2
J1J2
S S
L1 G
S600
Su p p ly
Red
Black
R e d
B l a c k
Bl ack
L2
Red
Red
T o C ont rol P a ne l
Fill water valve
Drain wat er valve
Te r m i na l B l oc k
Ye l l ow / Gre e n
R e d
B l a c k
R e d
Black
White
B la c k
Yel low
R e d
B l a c k
Red
Red
Red
Red
Wa ter Le ve l Se nsor
Red ( S h o r t P i n )
Bl ack ( Lo n g P i n )
Yel l o w ( Mi d d l e P i n )
T o C ont rol P a ne l
Fill water valve
Drai n water valve
Te r m i na l B l oc k
J1-1
J2-1
J3-1
J3-2
J2-2
J1-2
J1J2J3
S S
G
Ye l l ow / Gre e n
R e d
B l a c k
Red
Black
White
Black
Yellow
R e d
B l a c k
Red
Red
Red
Red
Su p p ly
R e d
B l a c k
RedBlack
L1L2
Wa ter Le ve l Se nsor
Red ( S h o r t P i n )
Bl ack ( Lo n g P i n )
Yel l o w ( Mi d d l e P i n )
Red
Red
Red
S750 S900
Red
Red
Black
Black
Black
Black
Black
Black
Red
Bl ack
J1-1
J1-2
J1
S S
L1 G
S450
Su p p ly
Red
R e d
B l a c k
Bl ack
L2
Red
T o C ont rol P a ne l
Fill water valve
Drain water valve
Te r m i na l B l oc k
Ye l l ow / Gre e n
R e d
B l a c k
R e d
Black
White
B la c k
Yellow
R e d
B l a c k
Red
Red
Red
Red
Wa ter Le ve l Se nsor
Red ( S h o r t P i n )
Bl ack ( Lo n g P i n )
Yel l o w ( Mi d d l e P i n )
Bla ck

Related product manuals