EasyManua.ls Logo

Stel F20 - Page 28

Stel F20
Print Icon
To Next Page IconTo Next Page
To Next Page IconTo Next Page
To Previous Page IconTo Previous Page
To Previous Page IconTo Previous Page
Loading...
6947400000
28
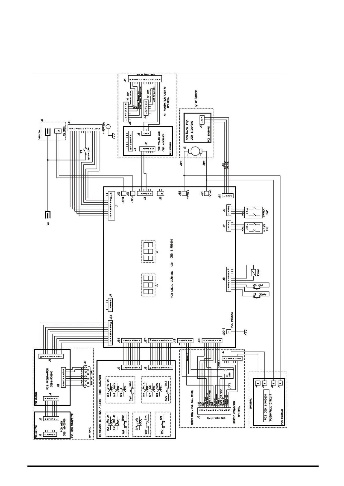
WIRING DIAGRAM F20