EasyManua.ls Logo

stex S25T - Page 24

stex S25T
48 pages
Print Icon
To Next Page IconTo Next Page
To Next Page IconTo Next Page
To Previous Page IconTo Previous Page
To Previous Page IconTo Previous Page
Loading...
< 24 >
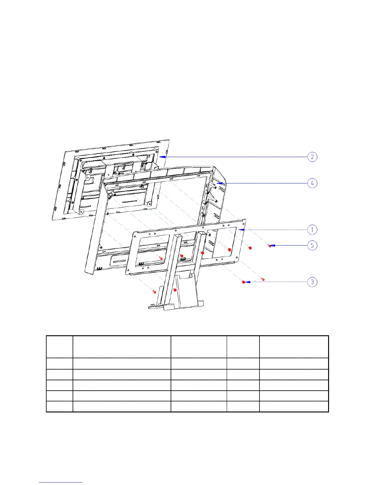
3-17-1 Assembly Display Frame S25T (#9)
3-17-1 Description
No Parts
Parts No. Q TY Remark
1 Top assembly 32M1-TSX04 1 ea
2 Top front panel assembly 21DC-TSB21 1 ea
3 Machine pan head 33T6-1B512 6 ea M5 x 12 L (SEMS)
4 Display top middle case 32M3-TS081 1 ea
5 Tapping truss head 33U6-6Z512 4 ea Φ 5 x 12 L

Related product manuals