EasyManua.ls Logo

Stulz Split-Air CST 40 - Page 50

Stulz Split-Air CST 40
77 pages
Print Icon
To Next Page IconTo Next Page
To Next Page IconTo Next Page
To Previous Page IconTo Previous Page
To Previous Page IconTo Previous Page
Loading...
E/0204/39/50
CST 40/50 CST 60/80
8. Pipe mountings have to be provided at least every 2 m. The pipe mountings are to be insulated
against vibrations. The first pipe mountings behind the indoor unit as well as upstream of the
outdoor unit should be flexible. So that the pressure lines can expand, the pipe mountings are
to be attached at least 1m from the bend.
9. All copper pipes which lead through masonry are always to be insulated in this area so that the
pipes are not attacked by the masonry and a certain flexibility is retained.
10. Make sure that all refrigerant pipes are perfectly clean and dry inside.
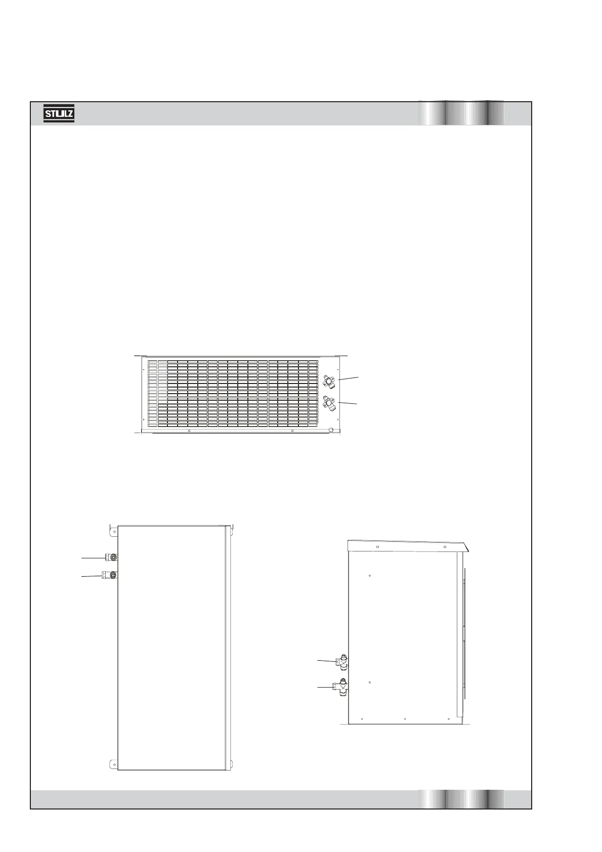
11. Connect the IN refrigerant tap of motor-condensing unit with OUT refrigerant tap of evaporating
unit (gas suction line). Connect the OUT refrigerant tap of motor-condensing unit with IN
refrigerant tap of evaporating unit (liquid line). Position of refrigerant connectors on evaporating
and motor-condensing units are shown in the following drawings.
Top
Bottom
in
out
Indoor unit:
Outdoor unit:
Front
Rear
in
out
Front
Rear
out
in

Related product manuals