EasyManua.ls Logo

Sub-Zero 611-2 - Page 20

Sub-Zero 611-2
63 pages
Print Icon
To Next Page IconTo Next Page
To Next Page IconTo Next Page
To Previous Page IconTo Previous Page
To Previous Page IconTo Previous Page
Loading...
Page 20
7-20
Component Access / Removal
Built-In
Built-In
(600-
(600-
2
2
)
)
Series
Series
#3758407 - Revision B - August, 2006
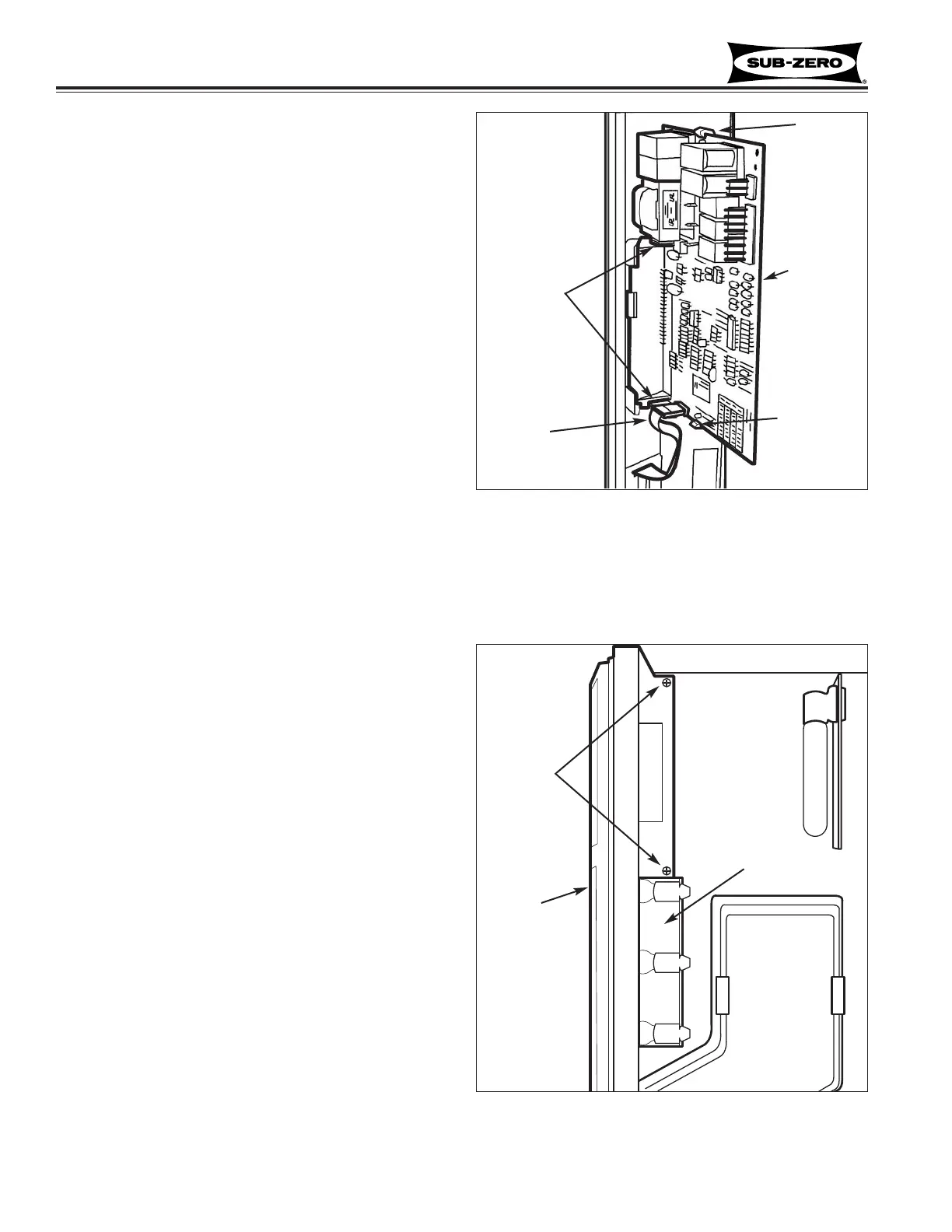
Control Board Removal (685-2, 695-2)
The control board is held in position by two sets of tabs
behind the control panel assembly. The two forward
tabs position the LCD in the control panel window, while
the other two tabs secure the middle of the control
board. The control board is then shielded by a control
enclosure, and concealed by the water reservoir tank
cover on the mullion wall.
To remove the control board, the light diffuser, upper
front panel assembly and water reservoir tank cover
must first be removed, then (See Figure 7-44)
1. Extract screws securing control enclosure to wall.
2. Pull back of enclosure away from mullion wall and
toward rear of unit.
3. Disconnect all electrical leads from control board.
NOTE: Observe orientation of membrane switch
ribbon cable so it can be reconnected correctly.
4. Expand the two tabs at middle of control board out-
ward while pulling back of board away from wall.
5. Expand the two forward tabs outward that hold LCD
in position
6. Pull control board away from wall and toward rear
of unit.
Vertical Control Panel Assembly (685-2, 695-2)
Vertical control panel assemblies are secured to the
mullion wall by screws and a sheet metal retainer.
NOTE: It is recommended, but not necessary, to dis-
connect control board from control panel assembly
before remove control panel assembly.
To remove a vertical control panel assembly, the light
diffuser, upper front panel and water reservoir tank
cover must be removed first, then (See Figure 7-45):
1. Disconnect membrane switch ribbon cable from
control board.
NOTE: Observe orientation of membrane switch
ribbon cable so it can be reconnected correctly.
2. Disconnect control board from control panel.
3. Extract screws at back of control panel assembly.
4. Pull panel assembly forward, from sheet metal
retainer.
Figure 7-44. Control Board
Tab
Forward
Tabs
Ribbon
Cable
Control
Board
Tab
Figure 7-45. Vertical Control Panel
Screws
Control
Panel
Retainer

Other manuals for Sub-Zero 611-2

Related product manuals