EasyManua.ls Logo

Sub-Zero 695-2 - Page 180

Sub-Zero 695-2
188 pages
Print Icon
To Next Page IconTo Next Page
To Next Page IconTo Next Page
To Previous Page IconTo Previous Page
To Previous Page IconTo Previous Page
Loading...
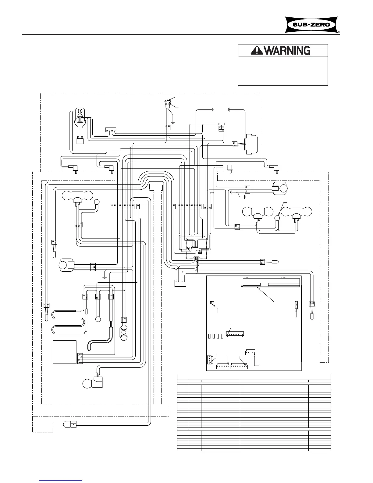
Wiring Diagrams / Schematics
Built-In
Built-In
(600-
(600-
2
2
)
)
Series
Series
PIN 1
PIN 1
PIN 1
PIN 1
0
J1
0
0
DISPLAY
J6
PIN 1
0
PIN 1
0
J7
0
J4
PIN 1
J3
J2
E2
E10
E6
E7
0
J5
PART NUMBER 3756771
SENSOR
DEFROST
TERMINATOR
(FRE CABINET)
ICEMAKER
WATER VALVE
TAN
WHITE
DRAIN
HEATER
LOWER
FREEZER
LIGHT
ICEMAKER
DEFROST HEATER
4 WHITE
1 GREEN
2 TAN
3 PINK
ORANGE
FILL
TUBE
HEATER
WHITE
SENSOR
(REF
EVAP)
(FOUND BY COMPRESSOR)
BLACK
PURPLE
PURPLE
WHITE
WHITE
WHITE
ORANGE W/RED STRIPE
GRAY W/WHITE STRIPE
GRAY W/WHITE STRIPE
BLUE W/BLACK STRIPE
BLUE W/BLACK STRIPE
BLUE W/RED STRIPE
ORANGE W/RED STRIPE
BLUE W/RED STRIPE
SENSOR
(FRE EVAPORATOR)
GRAY
W/WHITE
STRIPE
BLACK 1
BLACK 2
FREEZER
FAN
MOTOR
BLUE W/BLACK STRIPE
BLUE W/BLACK STRIPE
1 RED
3 GREEN
2 WHITE
WHITE 2
ORANGE 3
BROWN 1
PINK
WHITE 2
GRAY 2
BLUE 1
BLUE 1
GREEN
1 WHITE W/BLUE
2 WHITE
GRAY W/WHITE STRIPE
WHITE
WHITE
BLUE WHITE
TAN
ORANGE
WHITE
WHITE
TAN
1 RED
2 WHITE
3 GREEN
BROWN
ORANGE
WHITE
WHITE
RUNNING
CAPACITOR
FREEZER
FAN SWITCH
LIGHT
TERMINATOR
FREEZER
LIGHT SWITCH
WHITE
UPPER
FREEZER
LIGHTS
ORANGE
ORANGE
ORANGE
ORANGE
TAN
4
PINK
BLUE
BROWN
WHITE
WHITE W/BLUE
RED
TAN
WHITE W/BLUE
PINK
BROWN
RED
WHITE
TAN
BLUE
GRAY W/WHITE
GRAY W/WHITE STRIPE
WHITE
TAN
YELLOW
PURPLE
BROWN
RED
PURPLE
TAN
YELLOW
GREEN
GRAY
WHITE
WHITE
OVERLOAD
PROTECTOR
COMPRESSOR
STARTING
RELAY
4
CONNECTOR
321
GREEN
1 PLAIN
2 RIBBED
GRAY
GRAY
STARTING
RELAY
2 WHITE
WHITE W/BLUE STRIPE
WHITE W/RED
ORANGE W/YELLOW STRIPE
CONNECTOR
231 4
BLUE W/YELLOW STRIPE
BLUE W/WHITE STRIPE
BLUE W/WHITE STRIPE
BLACK
YELLOW
BLUE
PINK
GRAY
PURPLE
WHITE
TAN
1 ORANGE
ORANGE W/YELLOW STRIPE
BLUE W/YELLOW STRIPE
SENSOR
(REF CABINET)
ORANGE
ORANGE
ORANGE
WHITE
REFRIGERATOR
LIGHT SWITCH
1 PINK
2 WHITE
3 GREEN
REFRIGERATOR
LIGHTS
2 WHITE
1 BLACK
8 WHITE W/RED STRIPE
1 TAN
2 PURPLE
9 GRAY
6 WHITE W/BLUE STRIPE
3 PINK
7 BLUE
5 YELLOW
4
3 ORANGE
WHITE
WHITE
GREEN
RED
WHITE
WHITE W/RED STRIPE 1
CONDENSER
FAN MOTOR
YELLOW
RED
GRAY
WHITE 2
WHITE
REFRIGERATOR
FAN SWITCH
LIGHT
TERMINATOR
REFRIGERATOR
FAN MOTOR
EMBRACO
COMPRESSOR
L2
POWER
SUPLY
CORD
GREEN
L
GREEN
BROWNBROWN
BLUE/YELLOW
ORANGE/YELLOW
BLUE/WHITE
BLUE/WHITE
WHITE/BLUE
GRAY/WHITE
BLUE/BLACK
BLUE/BLACK
ORANGE/RED
ICE MAKER VALVE SENSOR
LOW VOLTAGE THERMISTOR CIRCUITS
J1-8
J1-7
J1-6
J1-4
J1-3
J1-2
J1-1
J1-5
J4-5
J4-1
J4-4
J4-3
J4-2
FRZ COMPARTMENT
FRZ COMPARTMENT
REF COMPARTMENT
DEF SENSOR
REF EVAP
REF COMPARTMENT
REF EVAP
FRZ EVAP
NOT USED(NO PIN)
REF DOOR LIGHT SENSE
FRZ DOOR LIGHT SENSE
FRZ EVAP
SENSES WATER VALVE ACTIVATION
SENSES WHEN DEF HEATER SHUTS OFF
SENSES REF CABINET
SENSES FRZ CABINET TEMP
SENSES FRZ CABINET TEMP
SENSES REF CABINET
SENSES REF EVAP TEMP
SENSES REF EVAP TEMP
SENSES IF REF DOOR OPEN
SENSES FRZ EVAP TEMP
SENSES IF FRZ DOOR OPEN
SENSES FRZ EVAP TEMP
BLUE/RED
ORANGE
BROWN
TAN
CONTROL BOARD SUMMARY
ICE MAKER ACC (FILL TUBE)
C FAN
DEF HTR
RCOMP
FCOMP
E FAN
CIRCUIT
J7-3
J7-5
J7-4
J7-7
J7-6
J7-8
J7-2
E6
J7-1
E7
E10
E2
ICE MAKER
NOT USED(NO PIN)
NOT USED
NOT USED
CONDENSER FAN
REF COMPRESSOR
POWER IN
FRZ COMPRESSOR
NEU
LITE
NEUTRAL
LIGHTS
L1
DEFROST HEATER
DESCRIPTION
120 VOLT CIRCUITS
POWERS FILL TUBE HEATER AND ACCESSORIES
POWERS CONDENSER FAN
POWERS REF COMPRESSOR
POWERS LIGHTS
POWERS ICE MAKER
POWERS FRZ COMPRESSOR
POWER INTO BOARD
NEUTRAL INTO BOARD
POWERS DEFROST CIRCUIT
FUNCTION
YELLOW
WHITE
PINK
WHITE/RED
PURPLE
GRAY
BLACK
COLOR
BLUE
J1
J7
E2 E7 E10 E6
J4
WIRING DIAGRAM
MODELS: 632-2 & 642-2
-This wiring information is provided for use by qualified
service personnel only.
-Disconnect appliance from electrical supply before
beginning service.
-Be sure all grounding devices are connected when
service is complete.
-Failure to observe the above warnings may result in
severe electrical shock.
10-12
#3758407 - Revision B - August, 2006

Table of Contents

Other manuals for Sub-Zero 695-2

Related product manuals