EasyManua.ls Logo

Sub-Zero 695-2 - Electronic Control System

Sub-Zero 695-2
188 pages
Print Icon
To Next Page IconTo Next Page
To Next Page IconTo Next Page
To Previous Page IconTo Previous Page
To Previous Page IconTo Previous Page
Loading...
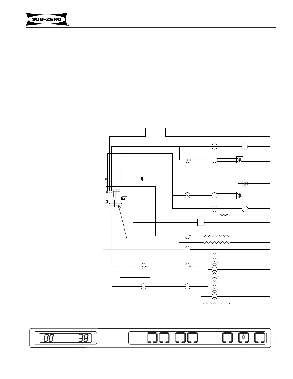
Monitor, Regulate and Display Compartment Temperatures
Temperature signals from thermistors in refrigerator and freezer compartments are monitored, then displayed on the
LCD. When a compartment reaches high offset temperature (calling for cooling), the compressor and evaporator fan
are switched on. (See Figure 3-11). When a compartment reaches low offset temperature, the compressor and
evaporator fan are switched off. Though compartment air temperature fluctuates from off and on cycles, the “aver-
age” temperature is displayed. (See Figure 3-12)
NOTE: Freezer compartment temperature range is -5°F (-21°C) to +5°F (-15°C). Refrigerator compartment temper-
ature range is +34°F (+1°C) to +45°F (+7°C).
NOTE: If average compartment temperature changes, the display will change by one degree per minute.
NOTE: A refrigerator compressor will not energize after a refrigerator off-cycle defrost unless the evaporator ther-
mistor detects temperatures 38°F (3°C), or above.
NOTE: After a freezer evaporator defrost, the freezer compressor is not energized until after the 5 minute time
delay/dwell that follows all freez-
er defrosts.
NOTE: If a refrigerator compart-
ment thermistor is faulty, the
refrigerator compressor defaults
to 20 minutes on, 40 minutes off
cycling, EE appears at right in
LCD, SERVICE flashes and
Error Code 05 is logged.
NOTE: If a refrigerator evapora-
tor thermistor is faulty, the refrig-
erator compressor will not ener-
gize until compartment air tem-
perature exceeds high offset by
5°F (3°C). SERVICE flashes
and Error Code 06 is logged.
NOTE: If a freezer compart-
ment thermistor is faulty, the
freezer compressor defaults to
20 minutes on, 20 minutes off
cycling, EE appears at left in
LCD, SERVICE flashes and
Error Code 07 is logged.
NOTE: If in Sabbath Mode, the
compartment thermistors still
control compressor operation,
except that when high offset is
reached, there is a random 15
to 25 second delay before com-
pressors are energized.
NEUTL1
FREEZER
FAN SWITCH
FREEZER
FAN MOTOR
FREEZER
COMPRESSOR
FREEZER
OVERLOAD
PROTECTOR
FREEZER
COMPRESSOR
STARTING
RELAY
RUNNING
CAPACITOR
REFRIGERATOR
COMPRESSOR
STARTING
RELAY
REFRIGERATOR
FAN MOTOR
REFRIGERATOR
FAN SWITCH
115 VOLTS
60 CYCLES
REFRIGERATOR
COMPRESSOR
REFRIGERATOR
OVERLOAD
PROTECTOR
RED
BLACK WHITE
WHITE
RED
J2
J3
E7E2 E6E10
J1
J4
J5
J7
J6
M
M
M
M
M
CONTROL
BOARD
Signal from compartment
thermistors, calling for cooling in
both compartments.
GRAY
PURPLE
Figure 3-11. Signal Trace (High Voltage Only) Regulating Temperatures
Built-In
Built-In
(600-
(600-
2
2
)
)
Series
Series
Electronic Control System
3-9
#3758407 - Revision B - August, 2006
Figure 3-12. Average Compartment Temperature Displayed on LCD
UNITICE
REFRIGERATOR
ON/OFF
ON/OFF
ON/OFF
WARMERCOLDER
FREEZER
WARMERCOLDER

Table of Contents

Other manuals for Sub-Zero 695-2

Related product manuals