EasyManua.ls Logo

Sub-Zero 700-2 Series - Page 25

Sub-Zero 700-2 Series
166 pages
Print Icon
To Next Page IconTo Next Page
To Next Page IconTo Next Page
To Previous Page IconTo Previous Page
To Previous Page IconTo Previous Page
Loading...
Page 25
Electronic Control
Integrated (
Integrated (
700-
700-
2) Series
2) Series
3-15
#3756780 - Revision D - July, 2005
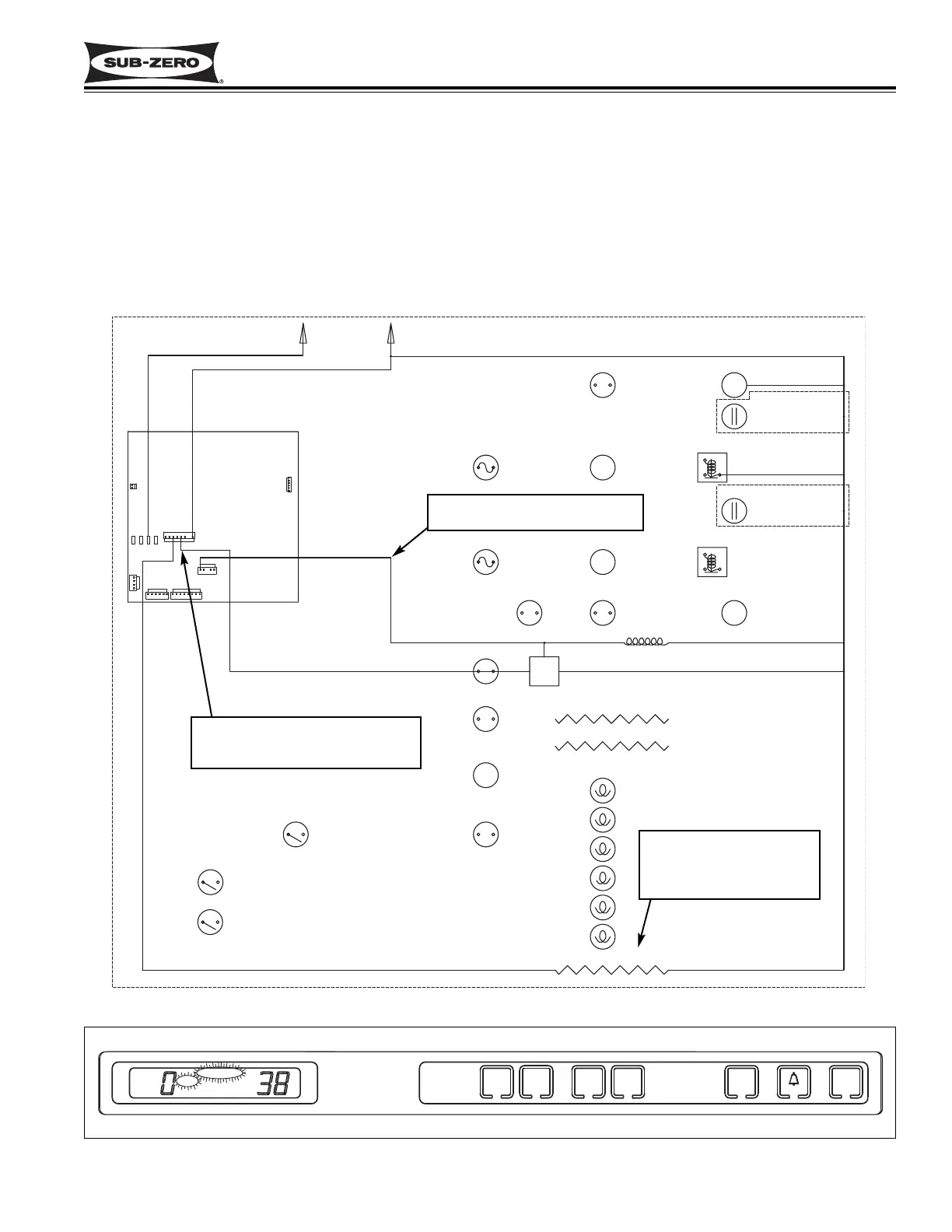
Figure 3-18. 700TC/I-2 Signal Trace Schematic (High Voltage) of Icemaker Electrical System
Figure 3-19. ICE & SERVICE Flashing if Icemaker Water Valve Solenoid Energized More Than 15 Seconds
ICE
ICE
UNIT
UNIT
ICE
ICE
WARMER
WARMER
COLDER
COLDER
REFRIGERATOR
REFRIGERATOR
ON/OFF
ON/OFF
ON/OFF
ON/OFF
ON/OFF
ON/OFF
WARMER
WARMER
COLDER
COLDER
FREEZER
FREEZER
SERVICE
SERVICE
J6
J5
J3
E2 E7 E10 E6
J2
J1
J7
J4
HIGH VOLTAGE
ICEMAKER
FILL TUBE
HEATER
NEUT
115 VOLTS
60 CYCLES
L1
WATER
VALVE
ICEMAKER
SWITCH
2300-2900 OHMS
WHITE
BLACK
TAN
PINK
WHITE/BLUE
WHITE
TAN
M
M
M
M
M
115 Volts to solenoid is monitored
by microprocessor
If signal to solenoid lasts more than
15 seconds, power to icemaker
system is disabled
Fill tube heater is energized
whenever icemaker system
is switched “ON” and ICE
appears on LCD
Monitor Icemaker System and Display If Service Is Needed
The microprocessor monitors the 115 volts supplied to the icemaker water valve solenoid. If the solenoid is ener-
gized for more than fifteen seconds, power to the icemaker system is disabled (this does not include the fill tube
heater). A signal is then sent to the SERVICE and ICE annunciators on the LCD to flash. (See Figure 3-18 & 3-19)
NOTE: To clear the SERVICE and ICE error annunciators, the problem must be corrected, then the unit must be
switched OFF and back ON.
NOTE: To allow ice to freeze fully and reduce effects of low water pressure, the electronic control system interrupts
power to the icemaker system for 45 minutes after each ice harvest. This feature is present in the tall units only.

Related product manuals