EasyManua.ls Logo

Sub-Zero 700-2 Series - Page 77

Sub-Zero 700-2 Series
166 pages
Print Icon
To Next Page IconTo Next Page
To Next Page IconTo Next Page
To Previous Page IconTo Previous Page
To Previous Page IconTo Previous Page
Loading...
Page 77
Component Access/Removal
Integrated (
Integrated (
700-
700-
2) Series
2) Series
7-10
#3756780 - Revision D - July, 2005
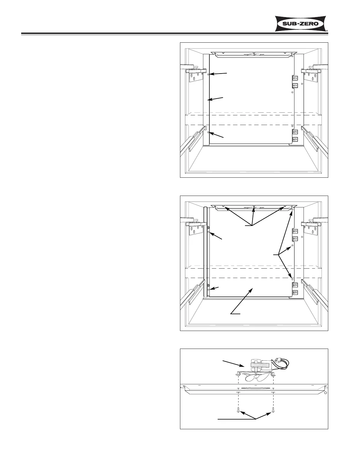
Heat Exchanger Cover Removal (All Tall Units)
The heat exchanger cover is held in the back left corner
of the lower compartment with two screws that go
through the cover and into stand-offs. (See Figure 7-22)
To access and remove the heat exchanger cover, the
two drawers will need to be removed first. Then,
extract the two mounting screws and pull the cover from
the unit.
Lower Evaporator Cover Assembly Removal
(700TR-2 Only)
NOTE: The evaporator fan assembly is attached to the
lower evaporator cover assembly in the 700TR-2.
The lower evaporator cover assembly in the 700TR-2 is
held in place with eight screws. Two screws on the left
side are hidden by the heat-exchanger cover. Three
screws on the right side secure the evaporator cover
assembly to the switch enclosure and three screws at
the top secure it to the ceiling of the lower compart-
ment. (See Figure 7-23)
To access and remove the lower evaporator cover
assembly, first remove the two drawers and the heat
exchanger cover. Then, remove the two screws that
were hidden by the heat exchanger cover. Extract the
three screws at the top and the three screws on the
right side. Pull the right top front of the evaporator
cover assembly down slightly and disconnect the evap-
orator fan electrical leads. Now, pull the assembly
through the upper drawer opening.
Lower Evaporator Fan Assembly Removal
(700TR-2 Only)
NOTE: The evaporator fan assembly is attached to the
lower evaporator cover assembly in the 700TR-2.
The lower evaporator fan assembly in the 700TR-2 is
held in place by two bolts passing through access holes
in the evaporator fan shroud, then through the top
flange of the evaporator cover and into well-nuts in the
evaporator fan bracket.
To access and remove the lower evaporator fan assem-
bly, first remove the two drawers, the heat exchanger
cover and the lower evaporator cover assembly. Then,
extract the two bolts from the well-nuts, through the
access holes. (See Figure 7-24)
The evaporator fan blade is pressed onto the shaft of
the fan motor and can be removed by simply pulling it
away from the motor.
Heat Exchanger Cover
Figure 7-22. Heat Exchanger Cover Removal
Screw
Screw
Figure 7-23. Evaporator Cover Assy Removal, TR-2
Evaporator Cover Assembly
Screw
Screws
Screws
Screw
Figure 7-24. Evaporator Fan Assy Removal, TR-2
Evap Fan Assy
Bolts through
Access Holes

Related product manuals