EasyManua.ls Logo

Sub-Zero 700 - Sealed System Components; Upper Compartment Evaporator Removal; Lower Compartment Evaporator Removal

Sub-Zero 700
24 pages
Print Icon
To Next Page IconTo Next Page
To Next Page IconTo Next Page
To Previous Page IconTo Previous Page
To Previous Page IconTo Previous Page
Loading...
Page 19
Component Removal
7-19
#7015817 - Revision A - January, 2010
INTEGRA
INTEGRA
TED
TED
(736 T
(736 T
all SWS #2970000)
all SWS #2970000)
SERIES
SERIES
SEALED SYSTEM COMPONENTS
Upper Refrigerator Compartment Evaporator
Removal (736TR, 736TCI)
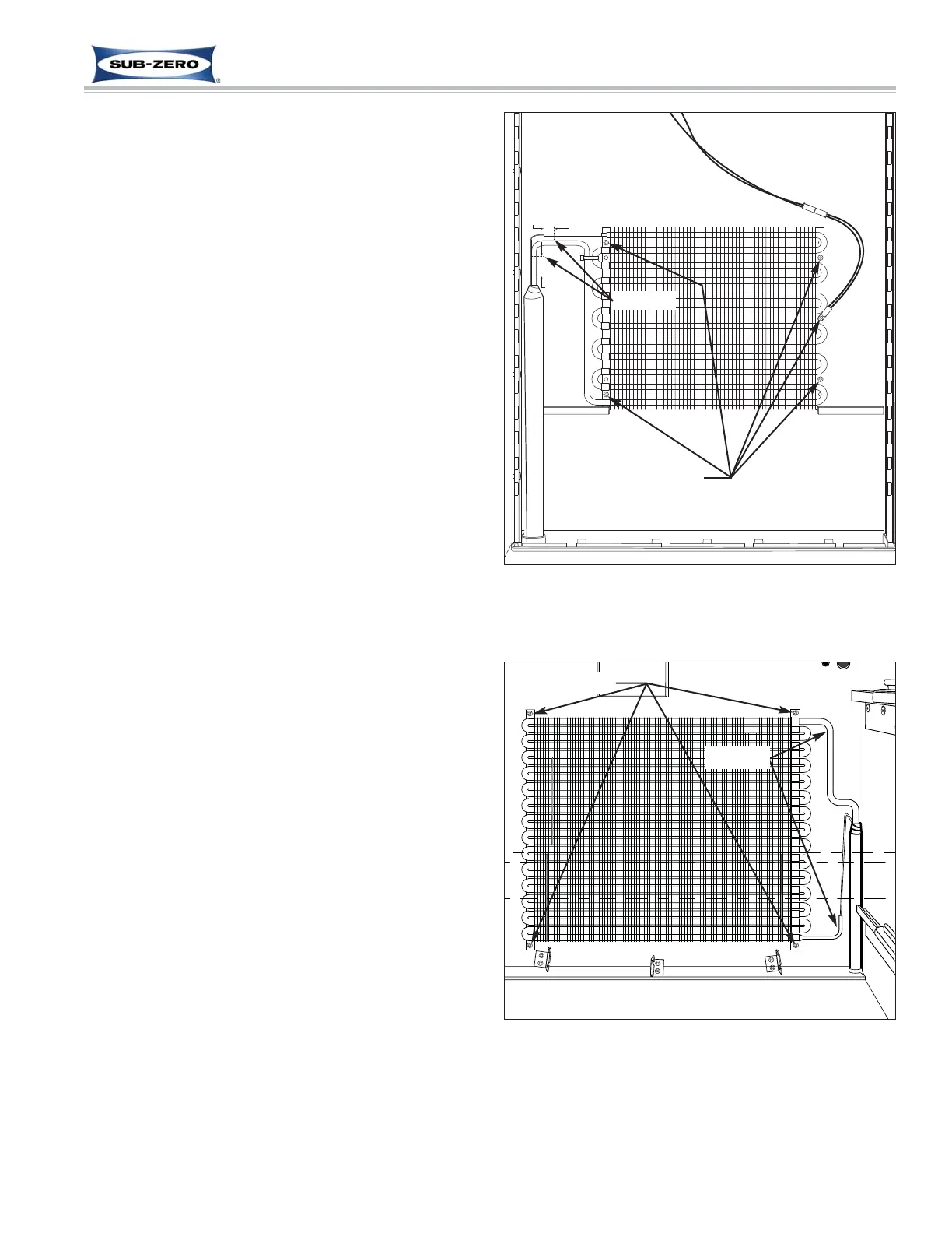
The upper evaporator is attached to the back wall with
screws.
NOTE: Before attempting to remove the evaporator,
evacuate the refrigerant from the sealed system.
To remove the upper evaporator, first remove the light
diffuser and evaporator cover, then (See Figure 7-43):
1. Extract screws securing evaporator to the back
wall.
2. With a tube cutter, cut inlet tube approximately one
inch from the end and cut the outlet tube approxi-
mately two inches from the end.
NOTE: Sweating the joints apart is not recommended
as this may induce moisture into the sealed system and
could cause a solder restriction in the capillary tube.
NOTE: When installing a new evaporator, be sure to
thoroughly clean the tubing before brazing. After brazing
and inspecting the joint for leaks, it is recommended to
apply an acrylic-based paint to the joints to protect the
exposed metals from oxidation.
Lower Compartment Evaporator Removal
The lower evaporator is attached to the back wall with
screws.
NOTE: Before attempting to remove the evaporator,
evacuate the refrigerant from the sealed system.
To remove the lower evaporator, first remove the heat
exchanger cover, evaporator cover and on the 736TCI
the wire cover. In the model 736TCI, the evaporator fan
shroud will also need to be removed, then (See Figure
7-44):
1. Extract screws securing evaporator to back wall.
2. With a tube cutter, cut the inlet tube approximately
one inch from the end.
3. With a tube cutter, cut the outlet tube approximate-
ly two inches from the end.
NOTE: Sweating the joints apart is not recommended
as this may induce moisture into the sealed system and
could cause a solder restriction in the capillary tube.
NOTE: If reusing the existing defrost heater, defrost ter-
minator and evaporator thermistor, they can be removed
from the evaporator after it is removed from the unit.
Figure 7-44. Lower Evaporator Removal
1"
2"
Figure 7-43. Upper Evaporator Removal
Remove Screws
Remove Screws
Cut here
Cut here

Related product manuals