EasyManua.ls Logo

Sub-Zero UC-24 series - Page 13

Sub-Zero UC-24 series
60 pages
Print Icon
To Next Page IconTo Next Page
To Next Page IconTo Next Page
To Previous Page IconTo Previous Page
To Previous Page IconTo Previous Page
Loading...
Electronic Control System
Under Counter (UC-24) Series
3-13
#7003933 - Revision B - November, 2007
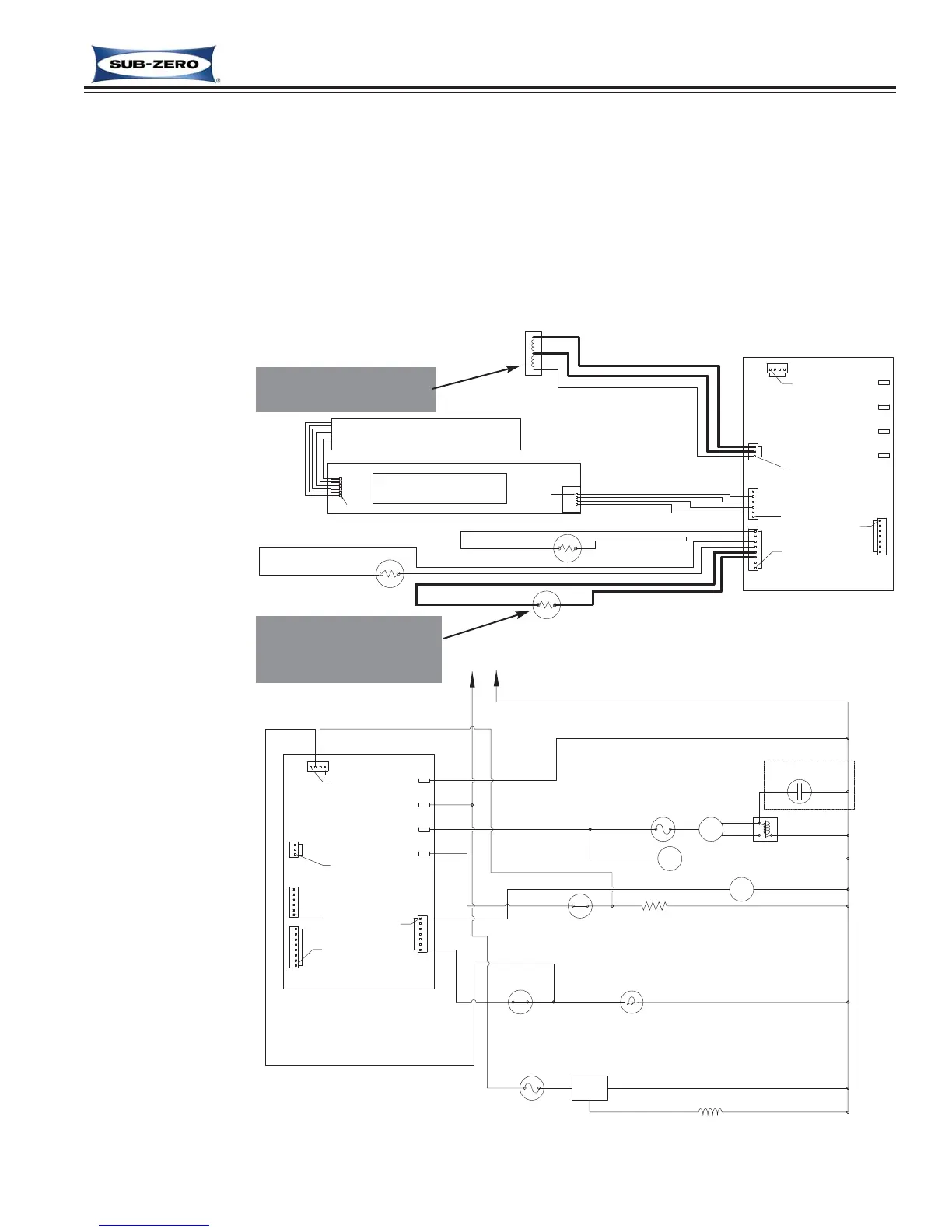
Regulate Refrigerator Zone Temperature (UC-24C Only)
When the thermistor in refrigerator compartment reaches high off-set temperature, calling for cooling, the micro-
processor sends an 18 Volt pulse signal to the air baffle control to open, regardless of operational state of the com-
pressor. When calling for cooling, the microprocessor repeats sending a pulse signal every five (5) minutes to the
air baffle control to open. (See Figure 3-19)
When the refrigerator compartment thermistor detects low off-set temperature, the microprocessor sends an 18 Volt
pulse signal to the air baffle control to close. Whenever the refrigerator compartment is not calling for cooling, the
microprocessor repeats sending a pulse signal every five (5) minutes to the air baffle control to close.
NOTES:
If compartment tem-
perature exceeds
either high or low
offset the tempera-
ture display will
change by one
degree (1°) per
minute.
If refrigerator com-
partment thermistor
is faulty, air baffle
defaults to twenty
(20) minutes open,
forty (40) minutes
closed cycling; EE
appears in right of
LCD; SERVICE
flashes and Error
Code 05 is logged.
When in Sabbath
Mode, refrigerator
compartment ther-
mistor still controls
baffle operation
except there is a
random fifteen (15)
to twenty-five (25)
second delay before
the baffle is ener-
gized.
Figure 3-19. UC-24C Signal Trace - Regulate Refrigerator Zone
YELLOW
(WHEN
USED)
CAPACITOR
COMPRESSOR
ORANGE
PURPLE
REF LIGHT SWITCH
ORANGE
WHITE
BLACK
REF FAN MOTOR
OVERLOAD
CONDENSER FAN
RED
RELAY
STARTING
RUNNING
WHITE
PIN 1
THERMISTOR
EVAPORATOR
L1
THERMISTOR CABINET/REF
DISPLAY BOARD
BLUE W/BLACK STRIPE
BLUE W/BLACK STRIPE
RED
WHITE
ORANGE W/RED STRIPE
BLUE W/RED STRIPE
PIN 1
YELLOW
ORANGE
BLUE W/WHITE STRIPE
TAN
VALVE
ICEMAKER
BLUE
ICEMAKER
WHITE
WHITE
FUSE
THERMAL
BLACK
R160 OHMS
YELLOW W/WHITE STRIPE
YELLOW W/BLACK STRIPE
YELLOW W/RED STRIPE
GRAY/WHITE
GRAY/WHITE
WHITE
WHITE
WHITE
WHITE
WHITE
J4
J5
J3
J6
J2
P3
P2
P1
P4
J5
J3
J2
J4
J6
J2
J3
P2
P1
P3
P4
M
M
M
ORANGE
PIN 1
PIN 1
PIN 1
MAIN BOARD
PIN 1
PIN 1
WHITE
REF (TOP) LIGHT
PROTECTOR
COMPRESSOR
MAIN BOARD
MEMBRANE KEYPAD
NEUTRAL
60 CYCLES
HIGH VOLTAGE SCHEMATIC
115 VOLTS
PIN 1
PIN 1
PIN 1
PIN 1
LOW VOLTAGE SCHEMATIC
PIN 1
BLUE W/WHITE STRIPE
THERMISTOR CABINET/FREEZER
R55 OHMS
DEFROST HEATER
REF AIR DUCT BAFFLE
DISPLAY
1. Refrigerator compartment
thermistor at high off-set
temp. calling for cooling.
2. Pulse signal to air baffle
control every 5 minutes.

Related product manuals