EasyManua.ls Logo

Subzero WOLF ICB WS Series - Control Compressor, Condenser Fan, Dual Refrigerant Valve and Evaporator Fan Motors

Subzero WOLF ICB WS Series
73 pages
Print Icon
To Next Page IconTo Next Page
To Next Page IconTo Next Page
To Previous Page IconTo Previous Page
To Previous Page IconTo Previous Page
Loading...
Page 23
3-11
#7013455 - Revision A - April, 2009
Electronic Control System
International W
International W
ine Storage
ine Storage
(ICBWS)
(ICBWS)
Series
Series
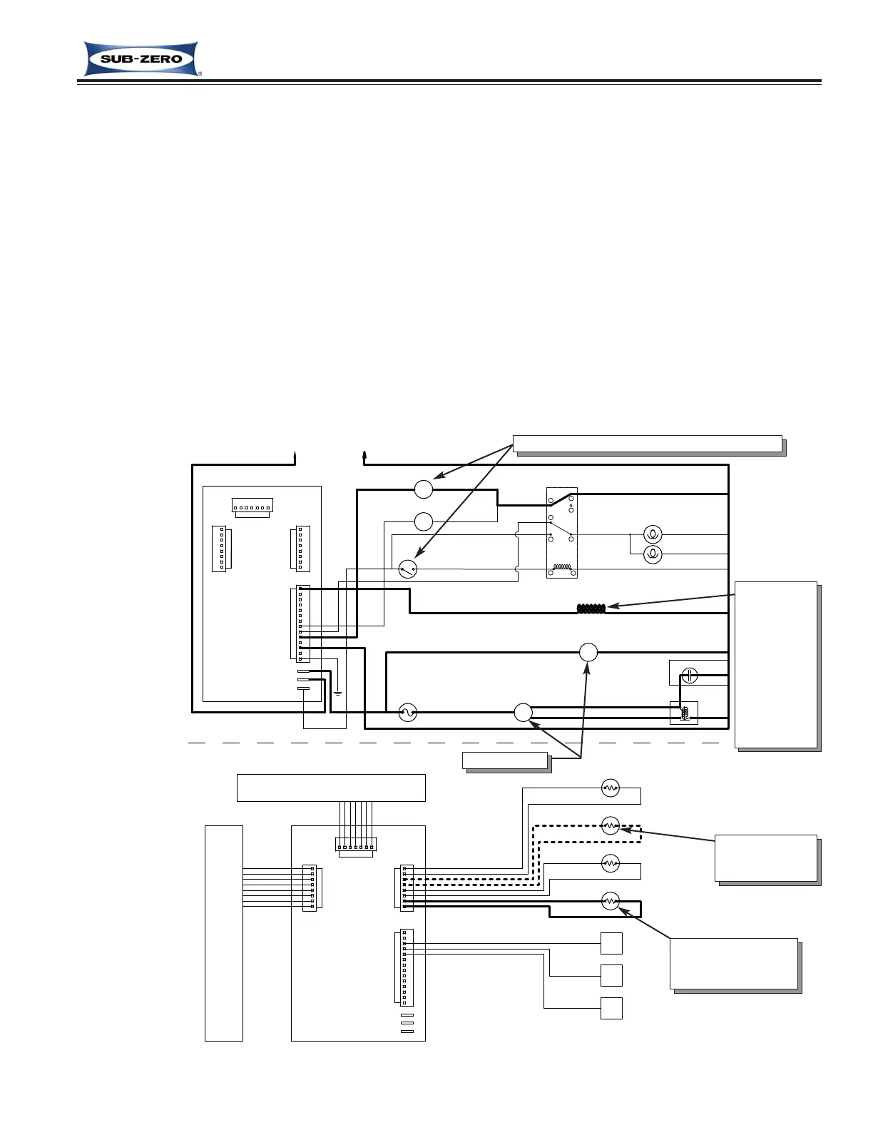
Figure 3-17. Cooling Signal Trace (Upper Evaporator at High-Offset Temperature, Calling for Cooling)
Control Compressor, Condenser Fan, Dual Refrigerant Valve and Evaporator Fan Motors
The control senses evaporator and compartment temperatures via thermistors; one on each evaporator, and one in
each compartment. High Offset (Cut-in) is governed by the evaporator temperatures; Low Offset (Cut-out) is gov-
erned by the compartment/zone temperatures. High Offset and Low Offset are based on the set-point.
If either evaporator temperature is at high offset (calling for cooling), power is supplied to the compressor and con-
denser fan motor, cycling them ON (See Figure 3-17).
Two relays on the control board, which are in series with one another, are used to control the dual refrigerant valve.
The first “pulse” relay controls the length of time the solenoid is energized (500ms / 30 pulses per 1/2 second). The
second “sine” relay controls the negative polarity, or positive polarity of the pulse supplied to the valve’s solenoid
(determined by which evaporator is calling for cooling, ( + ) = Upper Evaporator, ( - ) = Lower Evaporator). When an
evaporator calls for cooling, the bead inside the T-connection of the refrigerant valve is forced to one side or the
other, depending on the polarity of the pulse, supplying refrigerant to the appropriate evaporator (See Figure 3-17).
When the door is closed, the door switch is open, interrupting power to the relay coil, so the relay’s P1 to P5 con-
nection remains closed, keeping the neutral side of the evaporator fan motors circuits intact; depending on which
evaporator is calling for cooling, the corresponding evaporator fan relay on the control board closes, completing the
circuit and delivering power to the appropriate fan motor (See Figure 3-17).
NOTES:
When in
Sabbath
Mode, the
evaporator
thermistors
still control
cut-in,
except
there is a
random fif-
teen (15) to
twenty-five
(25) second
delay
before
power is
supplied to
cooling
compo-
nents.
1. High offset tem-
perature detected,
calling for cooling
2. Temperature
above low off-
set detected
4. AC pulse,
(+ polarity)
supplied to
solenoid,
valve
opens sup-
plying
refrigerant
to upper
evaporator
3. Energized
5. Door closed; Switch open = Fan Energized

Related product manuals