EasyManua.ls Logo

Subzero WOLF ICB WS Series - Finished Rough Opening Specifications

Subzero WOLF ICB WS Series
73 pages
Print Icon
To Next Page IconTo Next Page
To Next Page IconTo Next Page
To Previous Page IconTo Previous Page
To Previous Page IconTo Previous Page
Loading...
Page 7
2-3
#7013455 - Revision A - April, 2009
Installation Information
International W
International W
ine Storage
ine Storage
(ICBWS)
(ICBWS)
Series
Series
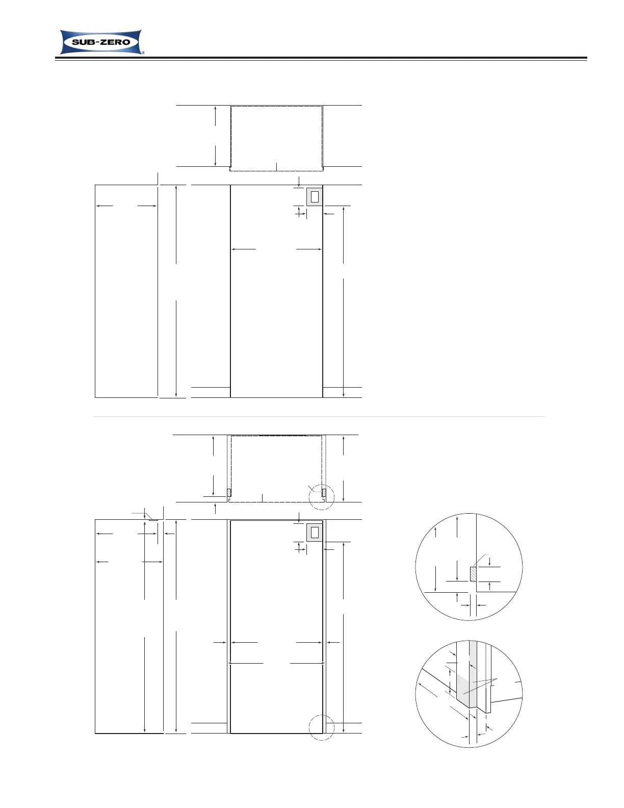
INSTALLATION SPECIFICATIONS
(MORMAL / NON-FLUSH INSET)
29
1
/
2
" (749)
75
1
/2"
(1918)
7"
(178)
6"
(152)
E
LOCATE
ELECTRICAL
WITHIN
SHADED AREA
FRONT VIEWSIDE VIEW
83
3
/4"
(2127)
OPENING
HEIGHT
OPENING WIDTH
24" (610)
OPENING
DEPTH
24" (610)
OPENING
DEPTH
OUTLINE OF
FRAMED, OVERLAY
TOP VIEW
75
1
/2"
(1918)
7"
(178)
6"
(152)
E
LOCATE
ELECTRICAL
WITHIN
SHADED AREA
24" (610)
DEPTH
TO CLEAT
26
3
/16"
(665)
FLUSH INSET
DEPTH
FRONT VIEWSIDE VIEW
TOP VIEW
84"
(2134)
FLUSH
INSET
HEIGHT
1
/4" (6)
2
3
/16"
(56)
**
1
1
/4"
(32)
1
1
/4"
(32)
2
3
/16"
(56)
**
24" (610)
DEPTH
TO CLEAT
26
3
/16" (665)
FLUSH INSET
DEPTH
OR STAINLESS
STEEL MODEL
(WITH 3/4” (19) PANEL)
83” min
(2108)
83
3
/4"
(2127)
HEIGHT
TO CLEAT
83” min
(2108)
29
1
/
2
" (749)
WIDTH TO CLEAT
32 " (749)
FLUSH INSET WIDTH
CLEAT
CLEAT
OUTLINE OF
UNIT
(WITH 3/4” (19) PANEL)
DETAIL A
DETAIL B
1
1
/
4
"
(32)
24"
(610)
OPENING
DEPTH
TO CLEAT
CLEAT
TOP VIEW
26
3
/
16
"
(665)
FLUSH
INSET
DEPTH
2
3
/
16
"
(56)
3"
(76)
typical
24"
(610)
OPENING
DEPTH TO
CLEAT
1
1
/
4
"
(32)
2
3
/
16
"
(56)
CLEAT
SHADED
AREA
MUST BE
FINISHED
3"
typical
(76)
4"
(102)
DETAIL A
DETAIL B
NOTE: Dimensions in parentheses are in
millimeters unless otherwise specified.
**ASSUMES
3
/4" (19) PANEL THICKNESS.
INSTALLATION SPECIFICATIONS
(FLUSH INSET)
NOTE: Dimensions in parentheses are in
millimeters unless otherwise specified.
Finished Rough Opening Specifications (Model WS-30)

Related product manuals