EasyManua.ls Logo

Summit BIM68OSPUMP - Drain Pump Model

Summit BIM68OSPUMP
28 pages
Print Icon
To Next Page IconTo Next Page
To Next Page IconTo Next Page
To Previous Page IconTo Previous Page
To Previous Page IconTo Previous Page
Loading...
11
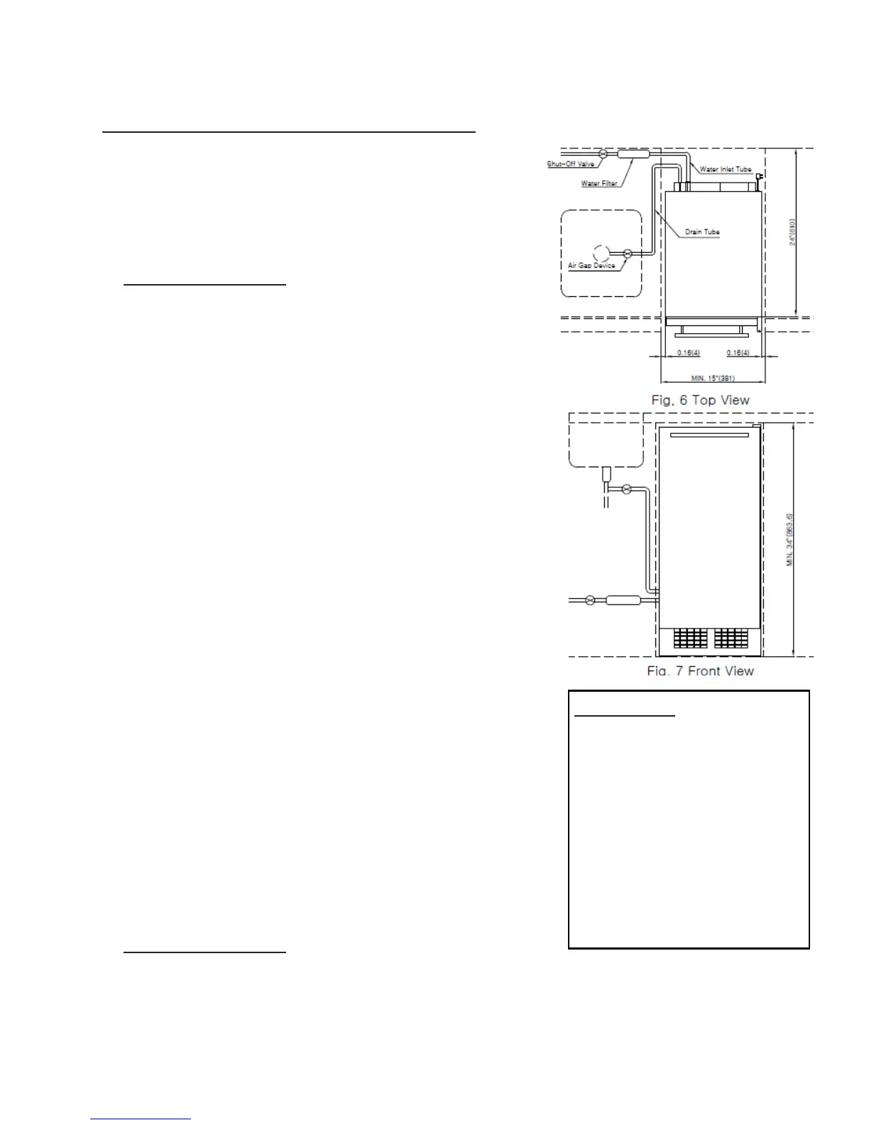
Drain Pump Model (BIM68OSPUMP)
1)
Arrange the ice maker at the front of the installation
opening.
2)
Adjust the leveling legs to the appropriate height.
3)
Install the inlet pipe (copper pipe with a diameter of
1/4”) on the wall and connect the water supply valve.
4)
Connect the drain pipe from the wall to the ice maker.
5)
Important Information:
An air gap may be required
between the drain tube of the ice maker and the
container of the drain pipe under the provision of local
laws and regulations. Refer to the accompanying
drawing.
6)
If the electric outlet is at the back of the product,
insert the plug into the electric outlet.
7)
Install the product so that the front of the product is
facing forwards.
8)
Use the inlet pipe after cutting the required length.
9)
Wash the inlet pipe. Connect the inlet pipe with the
copper pipe using the flare nut.
10)
Connect the inlet pipe with the water-supply valve of
the product using the flare nut.
11)
Cut the required length of drain tube.
12)
Connect the drain tube (with a diameter of 5/8“) with
the drain pipe at the back of the product and fix them
together using a hose clamp. If required for easy
installation, immerse the drain hose in warm water
just before connection with the fitting.
13)
Turn on the tap and check if there is any leakage.
14)
Pour 3 quarts of water into the ice container. The drain
pump should work and pump the water upwards. Check
whether the drain pump works or not. Check for any
leakage.
15)
Turn the switch to the “ICE" position.
16)
The compressor should start working in 3 to 5 minutes.
17)
Pour 3 quarts of water into the ice container and block the
drain tube while the drain pump is operating. At this time,
check whether the operation has stopped and that the
drain pump works continuously.
18)
Be sure the ice maker is level
.
Important Information:
Pipe installation should be carried
out
in accordance with all the provisions laid out by local laws and regulations.
Drain pump kit
You may order the ice maker with or
without a drain pump. In the case of
the model with no drain pump, water
is drained by gravity.
However, it is possible to install a
drain pump kit on the gravity drain
pipe model if you wish to convert the
model to a drain pump model.
You may obtain the necessary parts
for conversion from the distributor or
on the company’s website.
A detailed description of installation
is included in the kit.

Related product manuals