EasyManua.ls Logo

Summit BIM70 - Normal Sounds

Summit BIM70
32 pages
Print Icon
To Next Page IconTo Next Page
To Next Page IconTo Next Page
To Previous Page IconTo Previous Page
To Previous Page IconTo Previous Page
Loading...
16
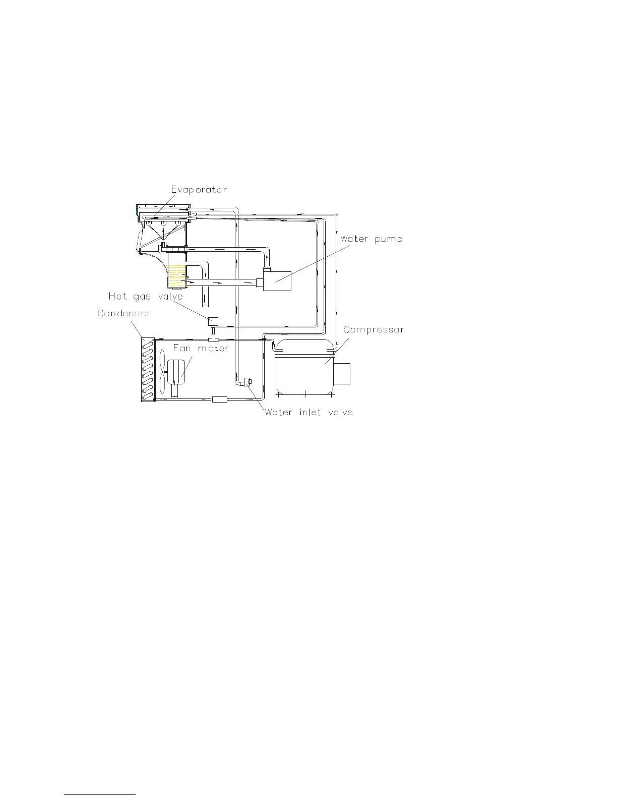
Harvest: During the harvest cycle the compressor is still operating, but the water pump has
stopped. Two other components have been energized: the hot gas valve and the water
inlet valve. These two valves open and warm up the freezing surface, allowing the
cubes to fall into the bin. The freeze cycle will restart when all the cubes have been
harvested.
How the machine uses water:
The ice maker
begins with a fixed
charge of water that
is contained in the
water sump. As the
water is sprayed
against the freezing
evaporator surface,
the portion of water
that does not contain
mineral impurities
will freeze and stick
to the ice cube molds.
The water containing
impurities falls back
into the water sump.
Gradually, during the
freezing portion of the ice-making cycle, the water in the sump will become highly
concentrated with mineral impurities.
During the harvest cycle, fresh water flows into the machine to dilute the bin water and
rinse the concentrated minerals down the drain.
Normal Sounds
Your new ice maker may make sounds that are not familiar to you. Most of the new sounds are
normal. Hard surfaces like the floor and walls can make the sounds seem louder than they
actually are. The following describes the kinds of sounds that might be new to you and what
may be making them.
You will hear a swooshing sound when the water valve opens to fill the water sump for each
cycle.
Rattling noises may come from the flow of the refrigerant or the water line. Items stored on
top of the ice maker can also make noises.
The high-efficiency compressor may make a pulsating or high-pitched sound.

Related product manuals