EasyManua.ls Logo

Sunrain YC-007TB1 - Installation of the Unit

Sunrain YC-007TB1
32 pages
Print Icon
To Next Page IconTo Next Page
To Next Page IconTo Next Page
To Previous Page IconTo Previous Page
To Previous Page IconTo Previous Page
Loading...
- 6 -
4. Installation of the unit
4.1 Installation attention
Avoid installations in such locations with mineral oil.
Avoid installation in locations where air contains salt or other corrosive gas.
Avoid installation in locations with serious power supply voltage fluctuation.
Avoid installation in an unstable place, such as car or cabin
Avoid installation near flammable items.
Avoid installation in locations with strong electromagnetic wave.
Avoid installation in locations with special harsh environmental conditions.
4.2 Installation check
Check the model, number, name etc, avoid incorrect installation.
Make sure enough space for installation and maintenance.
Make sure barrier-free for air inlet and outlet, also dry ventilated place.
Make sure the bearing surface can meet the requirement and avoid shocks.
The power supply and its capacity, wire diameter choice should be in accordance with the electrical
installation requirements.
Electrical installation must comply with the relevant technical standards of electrical equipment, and
electrical insulation work must be done.
The unit must be power on for at least eight hours before running and debugging.
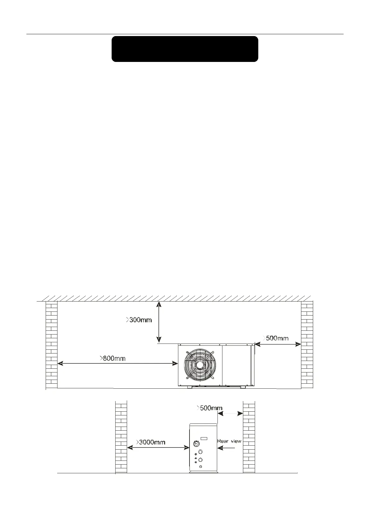
4.3 Installation space
Keep the following indicated space for operation and maintenance first before installation
Figure 2 Horizontal type installation spaceunits: mm

Related product manuals