EasyManua.ls Logo

SV2000 WV205 - Page 17

Default Icon
39 pages
Print Icon
To Next Page IconTo Next Page
To Next Page IconTo Next Page
To Previous Page IconTo Previous Page
To Previous Page IconTo Previous Page
Loading...
1-8-2
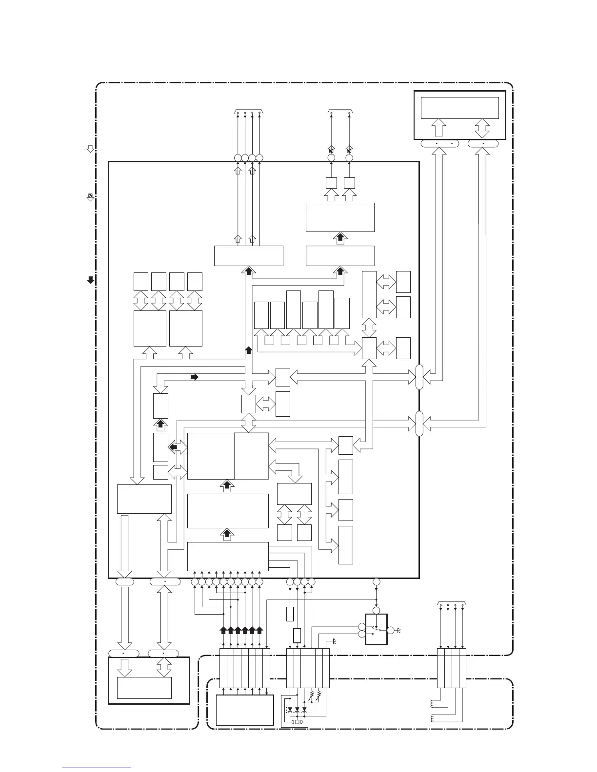
Digital Signal Process Block Diagram
E6164BLD
C16
D18
A17
B15
E14
F12
DVD-LD 8
CD-LD 10
PD-MONI 7
FS(+) 2
FS(-) 3
TS(+) 1
TS(-) 4
CN201
CN201
CN201
IC201
(SW)
IC101 (MICRO CONTROLLER)
FS
FS(+)
CD/DVD
FS(-)
TS(+)
TS(-)
TS
DETECTOR
CD/DVD 19
Q251,Q252
CD DVD
AMP
Q253,Q254
AMP
4
1 3
6
GND(DVD-PD)
6
GND(CD-PD)
5
GND(LD)
9
RF
SIGNAL
PROCESS
CIRCUIT
DVD/CD
FORMATTER
AUDIO
I/F
VIDEO
I/F
NTSC/PAL
ENCODER
DMA
BCU
INST.
ROM
32BIT
CPU
DATA
RAM
INTERRUPT
CONTROLLER
WATCH DOG
TIMER
CPU
I/F
TIMER
DECODER
I/F
CPU
I/F
READ
MEMORY
DATA
RAM
DSP
DECODER
I/O
PROCESSOR
INST.
ROM
DATA
RAM
INST.
ROM
SERIAL
D/A
GENERAL
I/O
INTERRUPT
CONTROLLER
TIMER
WATCH DOG
TIMER
REMOTE
CONTROL
32BIT CPU
STREAM
I/F
EXTERNAL
MEMORY
I/F
SDRAM
ECC
UMAC
114
115
116
117
132
131
134
133
129
130
126
124
125
123
83
DEBUG
BCU
INST
RAM
DATA
RAM
D/A
149
158
Y(I/P)
C
VIDEO-Y(I/P)
VIDEO-C
177
SPDIF
170
PCM-BCK
171
PCM-DATA
169
PCM-LRCLK
23~51
SDRAM ADDRESS(0-10)
IC103 (FLASH ROM)
FLASH
ROM
29
36
38
45
~
~
DATA(VIDEO/AUDIO) SIGNAL VIDEO SIGNAL
DATA(AUDIO) SIGNAL
FDQ (0-15)
~
1
9
16
25
48
~
192~212
FADR (0-19)
SDRAM DATA(0-15)
PICK-UP
UNIT
TO SYSTEM
CONTROL/SERVO
BLOCK DIAGRAM
DVD MAIN CBA UNIT
TO
VIDEO
/AUDIO
BLOCK
DIAGRAM
TO
VIDEO
/AUDIO
BLOCK
DIAGRAM
IC501, IC502 (SDRAM)
SDRAM DATA(0-15)
SDRAM ADDRESS(0-10)
217
238
~
1
18
252
256
~~
2
12
39
49
~
~
20
24
27
32
~~

Related product manuals