EasyManua.ls Logo

swepac FB 430 - Hydraulic Diagram and Components (FB450;FB510); Hydraulic System Component Identification; Hydraulic Diagram Explanation

swepac FB 430
24 pages
Print Icon
To Next Page IconTo Next Page
To Next Page IconTo Next Page
To Previous Page IconTo Previous Page
To Previous Page IconTo Previous Page
Loading...
16
FB 430 / FB 450 / FB 500 / FB 510
Dok: 101498D-GB 2103
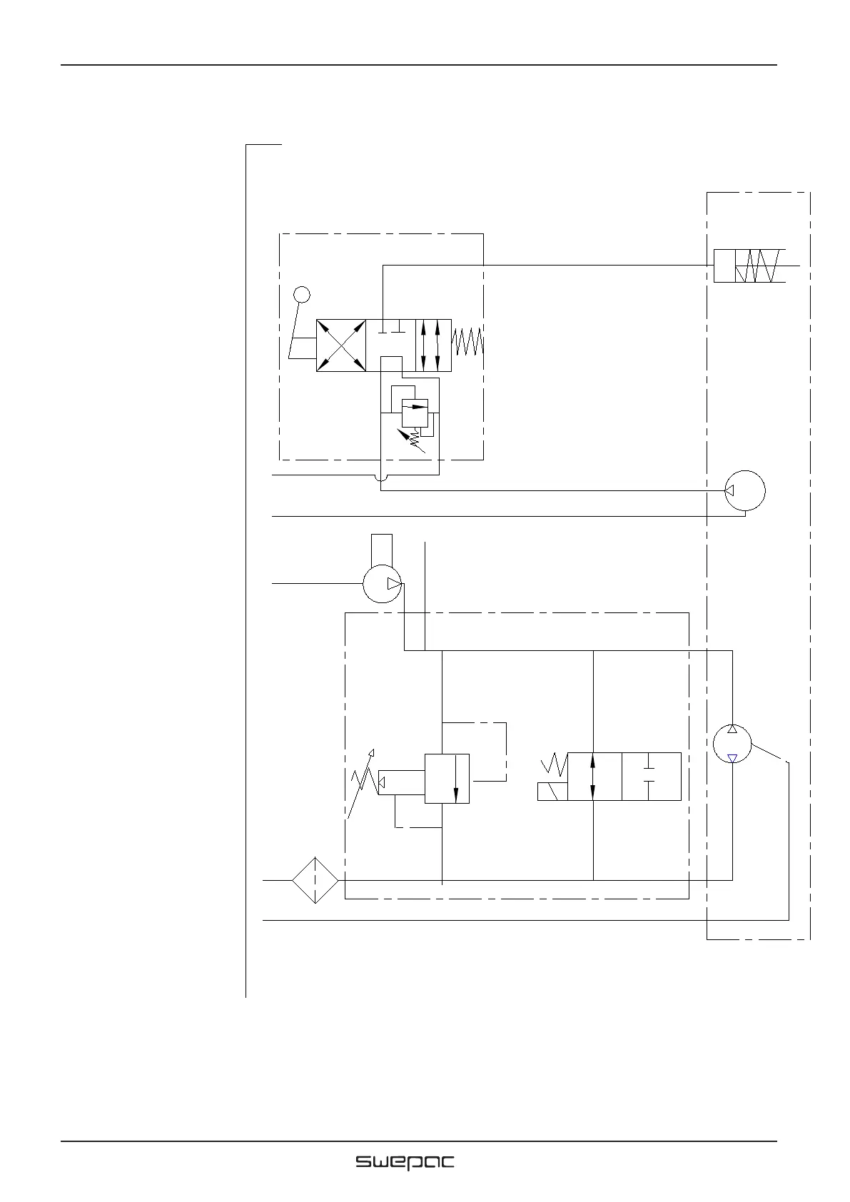
Hydraulic diagram FB450 / FB510
M
X
1
2
3
4
5
6
7
8
9
max 22Bar
22bar
A
P
T
1) Hydraulic pump 6.14 cc 3000 rpm (Yanmar) 6.45 cc 2900 rpm (Hatz)
2) Pressure relief valve max 200 Bar
3) Solenoid valve vibration On / O󰀨
4) Hydraulic Motor 4.09 4300rpm
5) Hydraulic cylinder Front / Back
6) Measuring point
7) Return oil lter
8) Hydraulic pump conversion 0.75 cc 4300 rpm
9) Valve block conversion
VIBRATIONS UNIT
TANK