EasyManua.ls Logo

Sylvania DVC860E - Connection to a TV (for VIDEO); Front & Rear Terminals

Sylvania DVC860E
28 pages
Print Icon
To Next Page IconTo Next Page
To Next Page IconTo Next Page
To Previous Page IconTo Previous Page
To Previous Page IconTo Previous Page
Loading...
DIGITAL
AUDIO OUT
COAXIAL
ANT-OUT
ANT-IN
ANT-OUT
ANT-IN
AUDIO
OUT
DVD VCR
DVD/VCR
S-VIDEO
OUT
COMPONENT
VIDEO OUT
AUDIO IN
VIDEO IN
AUDIO OUT
VIDEO OUT
L
LYL
RR
R
C
B
/
P
B
C
R
/
P
R
DIGITAL
AUDIO OUT
COAXIAL
AUDIO
OUT
DVD
DVD/VCR
VCR
S-VIDEO
OUT
COMPONENT
VIDEO OUT
AUDIO OUT
VIDEO OUT
AUDIO IN
VIDEO IN
L
L
Y
C
B
/
P
B
C
R
/
P
R
L
R
R
R
7
EN
Setup
AUDIO IN jacks
Connect audio cables coming
from the audio out jacks of a
camcorder, another VCR, or an
audio source here.
DVD ANALOG AUDIO OUT
jacks
Connect the supplied audio
cables here through the Audio
In jacks of a television or other
audio equipment (DVD only).
DVD/VCR AUDIO OUT jacks
Connect the supplied audio
cables here through the Audio
In jacks of a television or other
audio equipment.
ANT IN jack
Connect your antenna
or cable box here.
ANT OUT jack
Connect the RF
cable (supplied)
to the antenna
input jack on
your TV.
DVD/VCR VIDEO OUT jack
Connect the yellow video
cable (supplied) here
through the TV’s Video In
jack.
COAXIAL jack
Connect an optional coaxial
digital audio cable here
through the Coaxial Digital
Audio In jack of a decoder or
audio receiver.
VIDEO IN jack
Connect a cable com-
ing from the video out
jack of a camcorder,
another VCR, or an
audio-visual source
(laser disc player, video
disc player, etc.) here.
S-VIDEO OUT jack
Connect an optional
S-Video cable here
through the S-Video
In jack of a television.
(DVD only)
COMPONENT VIDEO
OUT jacks
Connect optional component
video cables here through
the component Video In
jacks of a television.
Front & Rear Terminals
DIGITAL
AUDIO OUT
COAXIAL
ANT-OUT
ANT-IN
AUDIO
OUT
DVD VCR
DVD/VCR
S-VIDEO
OUT
COMPONENT
VIDEO OUT
AUDIO IN
VIDEO IN
AUDIO OUT
VIDEO OUT
L
LY
C
B/
P
B
C
R/
P
R
L
RR
R
RL
VCRDVD/VCR
AUDIO IN
VIDEO IN
AUDIO OUT
VIDEO OUT
L
L
R
R
DIGITAL
AUDIO OUT
COAXIAL
AUDIO
OUT
DVD
S-VIDEO
OUT
COM
VIDE
L
R
VIDEO IN
VCRDVD/VCR
AUDIO IN
VIDEO IN
AUDIO OUT
VIDEO OUT
L
L
R
R
CBYCR
COMPONENT
VIDEO IN
or
DIGITAL
AUDIO OUT
COAXIAL
AUDIO
OUT
DVD
S-VIDEO
OUT
COMPONENT
VIDEO OUT
L
R
Y
PBYPR
C
B/
P
B
C
R/
P
R
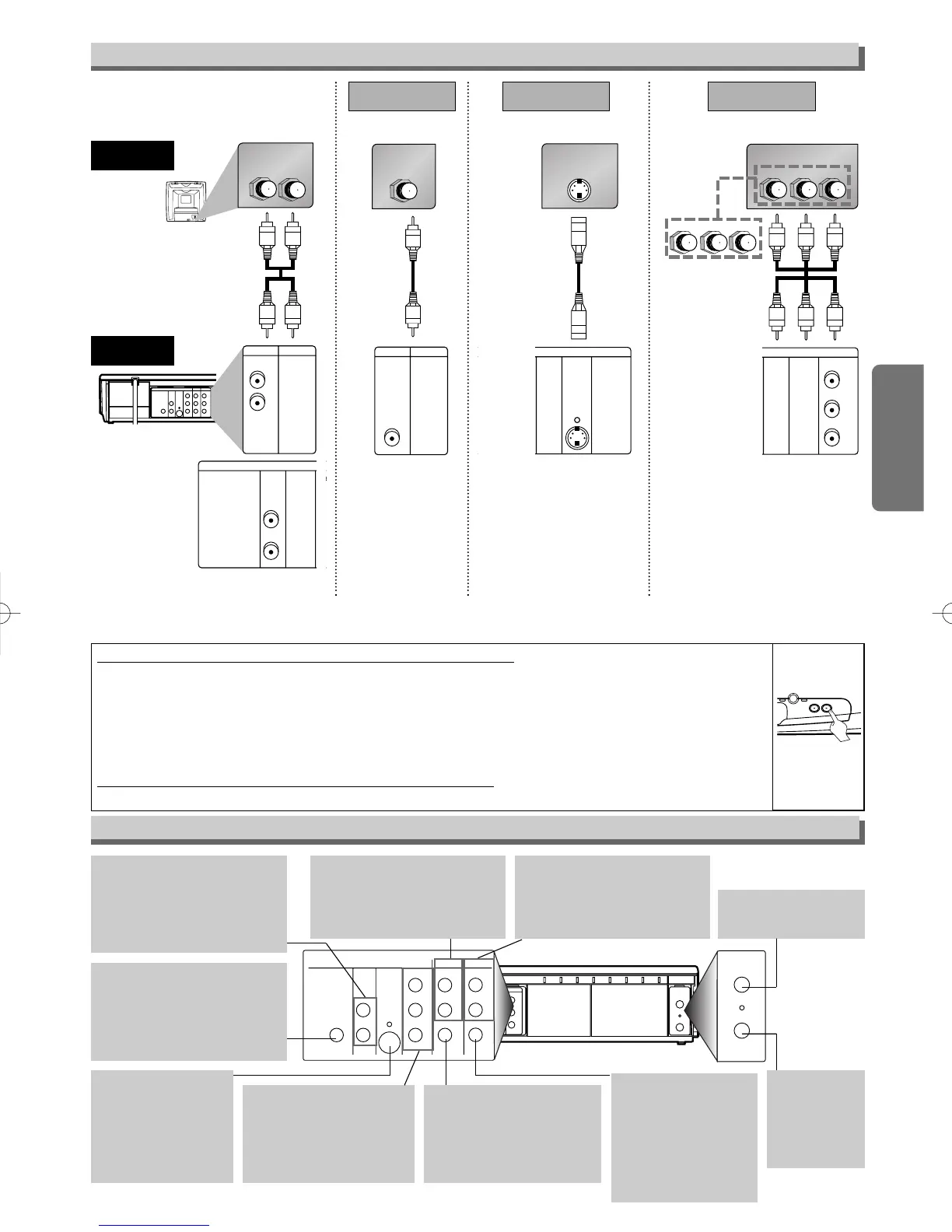
Analog Audio out
Video out
TV
Method 1
Good pictureBasic Audio
Method 2 Method 3
Better picture Best picture
S-Video out Component Video out
Video
cable
(supplied)
Audio cable
(supplied)
S-Video
cable
(commercially
available)
Component
Video cables
(commercially
available)
Notes
Connect this unit directly to the TV. If the A/V cables are connected to a VCR, pictures may be distorted due to the copy protection system.
The video signal is not output from the VIDEO OUT jack when connecting with S-VIDEO OUT or COMPONENT VIDEO OUT jacks.
DVD/VCR
Connection to a TV (for VIDEO)
If your TV is compatible with progressive scanning (480p);
Connect the TV to the COMPONENT VIDEO OUT jacks of this unit, and set to the progressive scanning mode by
pressing the PLAY button for more than 5 seconds on the front of the DVD/VCR. “P-SCAN” will appear on display
of the DVD/VCR.
To set to the interlace mode, press the PLAY button for more than 5 seconds on the front of the DVD/VCR.
“P-SCAN” will disappear on display of the DVD/VCR.
When the progressive scanning mode is selected, no video signal will be output from the VIDEO OUT or S-VIDEO
OUT jacks.
If your TV is not compatible with progressive scanning;
Keep this unit to the interlace mode (Make sure that “P-SCAN” on display of the DVD/VCR lights off).
STOP
OUTPUT
DVD
PLAY
VCR
more than
5 seconds
[DVD/VCR]
H9600UD(EN)v1.qx33 03.12.8 10:50 AM Page 7

Table of Contents

Related product manuals