EasyManua.ls Logo

Synrad FH FLYER 3D - Page 196

Default Icon
250 pages
Print Icon
To Next Page IconTo Next Page
To Next Page IconTo Next Page
To Previous Page IconTo Previous Page
To Previous Page IconTo Previous Page
Loading...
SYNRAD FH Series Flyer Operator’s Manual Version 3.4
166
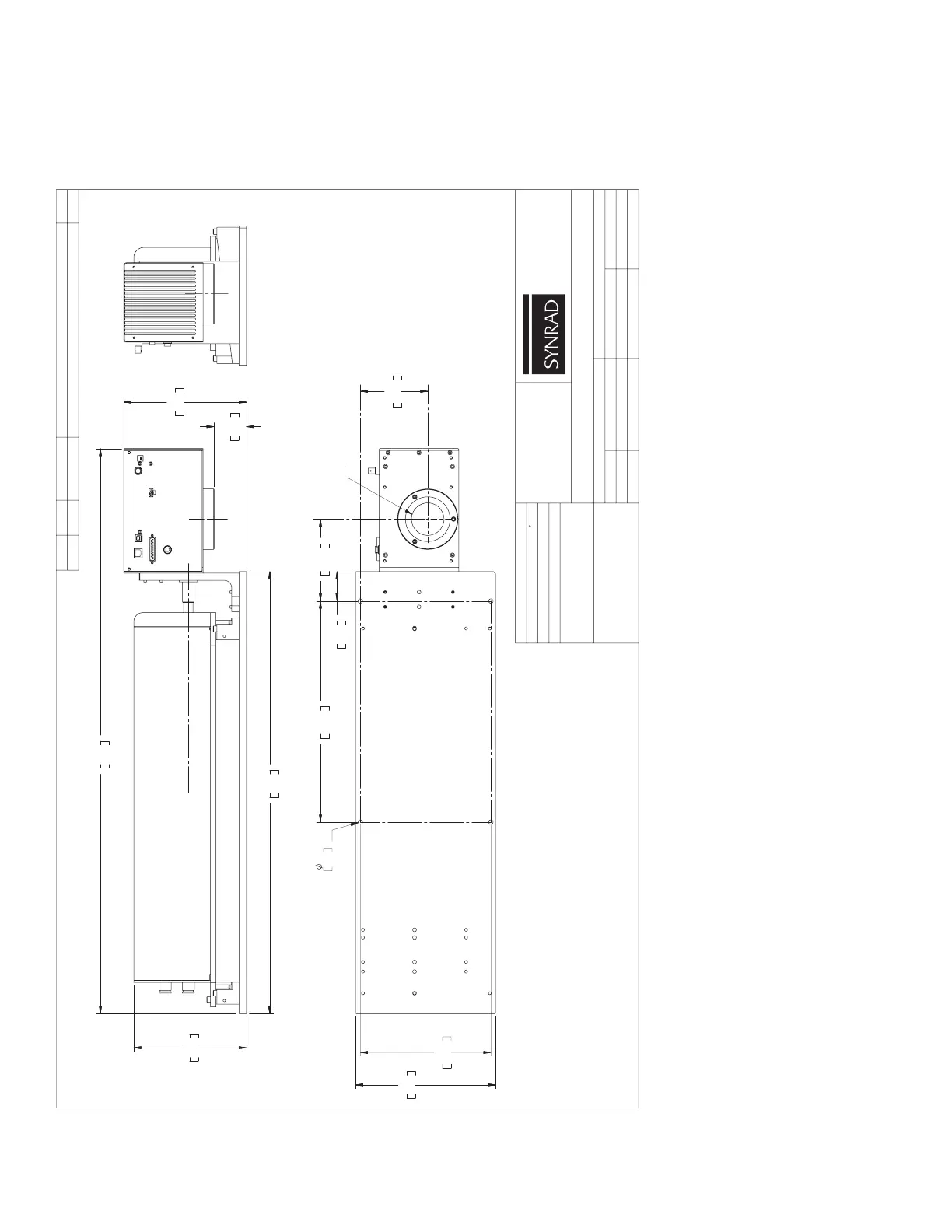
FH Flyer/Model 48-1/48-2
package outline drawings
Figure 6-23
FH Flyer/Model 48-1/48-2 package outline and mounting dimensions
Sheet 2 of 2
:ETON
.SRETEMILLIM ERA ] [ STEKCARB NI SNOISNEMID
5753
NOITCUDORP OT DESAELER
70-guA-03
A
:NOITPIRCSED
:HSINIF
:LAIRETAM
VER
OCE
ETAD
NOITPIRCSED
BD
:DETON SSELNU SECNARELOT
± = ELGNA
1.0
± = x.
10.0
± = xx.
500.0
± = xxx.
5.0
sehcnI
I
1
.CNIDARNYSFONOISSIMREP
:REBMUN TRAP
:REBMUN ELIF/GWD
TEEHS
:GNE
:YB NWARD
:ETAD
:STINU
:YROGETAC
:YB DEKCEHC
:ETAD
B :EZIS
:SSALC HSINIF
:YB DEVORPPA
:ETAD
NETTIRWTUOHTIWTRAPNIRO
ELOHWNIDESOLCSIDRODESU
EBTONLLAHSDNA.CNIDARNYS
OT YRATEIRPORPSIGNIWARD SIHT
7663-943)524( :xaF
001F ,REYLF - GNITNUOM & ENITUO
70-yaM-13
001-67691-003
1
001-67691-003
fo
YRATEIRPORP
.CNI DARNYS
ecalP supmaC 0064
57289 AW ,oetlikuM
0053-943)524( :enohP
A
1.491
46.7
33.8
5.112
53.83
0.479
36.55
091.2
00.03
0.267
TIXE MAEB
003.
GNITNUOM
655.5
21.141
068.8
40.522
00.183
575.4
02.611
000.51
3.142
05.9
26.7
SELOH
X4
000.2
08.05

Table of Contents

Related product manuals