EasyManua.ls Logo

Systec DE-45 - Page 116

Default Icon
219 pages
Print Icon
To Next Page IconTo Next Page
To Next Page IconTo Next Page
To Previous Page IconTo Previous Page
To Previous Page IconTo Previous Page
Loading...
V/D
S
ERIES
E
LECTRICAL ASSEMBLIES
4-6 Revision: 2.1
Q.C1
12
87 11 12
13
9
356 4
10
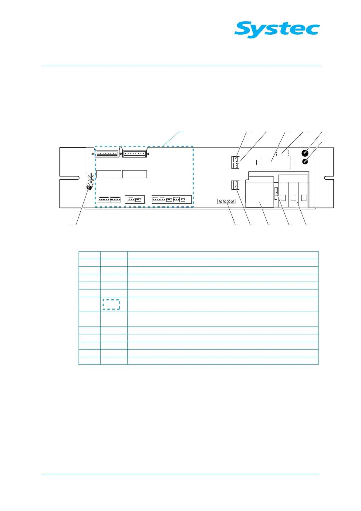
Fig. 4: Underside of the E-Box (V/D 65 l – 200 l)
1 Circuit breaker (F1 – F3)
2 Neutral terminal (N)
3 Heater contactor (K1)
4 JP3 AC_T1, 230 V AC input
5 AC-1 connector
6 12 V DC terminal strip
7
Connections on analogue circuit board AS1002 (see Fig. 6:
unterhalb)
8 JP7
AC_T1, 230 V output for water feed pump /
AC_T1, 230 V output for air compressor
9 JP4 Vacuum pump (M2)
10 Solid state relay for circulation pump
11 Switching transistor for air compressor output
12 10 A control fuse (F4)
13 Radial fan circuit-breaker (F11)

Table of Contents

Related product manuals